Verkocht

Thorbeckestraat 5

Vraagprijs € 629.500 k.k.

  • 212 m2
  • 908 m3
  • 7 kamers

Omschrijving

Op loopafstand van het het bruisende centrum van Arnhem in een prachtige populaire vooroorlogse woonwijk, ligt deze helft van dubbel woonhuis. Laat u verrassen door de hoeveelheid ruimte die deze woning te bieden heeft. Naast de vijf royale slaapkamers is de woning ook voorzien van een groot souterrain met een stahoogte van 2m, twee prachtige balkons en grote garage met ruime oprit.

Let op: 212m2 woonoppervlakte is inclusief souterrain van 58m2.

Bouwjaar: 1949 Inhoud: 835 m³

Bijzonderheden:
- Op een toplocatie gelegen;
- Parkeren op eigen terrein;
- 5 royale slaapkamers;
- Garage en souterrain;…

Op loopafstand van het het bruisende centrum van Arnhem in een prachtige populaire vooroorlogse woonwijk, ligt deze helft van dubbel woonhuis. Laat u verrassen door de hoeveelheid ruimte die deze woning te bieden heeft. Naast de vijf royale slaapkamers is de woning ook voorzien van een groot souterrain met een stahoogte van 2m, twee prachtige balkons en grote garage met ruime oprit.

Let op: 212m2 woonoppervlakte is inclusief souterrain van 58m2.

Bouwjaar: 1949 Inhoud: 835 m³

Bijzonderheden:
- Op een toplocatie gelegen;
- Parkeren op eigen terrein;
- 5 royale slaapkamers;
- Garage en souterrain;

Indeling:
Entree, hal, meterkast, trapopgang, provisieruimte, toegang keuken en woonkamer. Dichte keuken, met 4 pits-gaskookplaat, afzuigkap, koelkast en veel kastruimte, woonkamer met veel lichtinval, openslaande deuren naar de tuin, gezellige gashaard en royale zithoek.

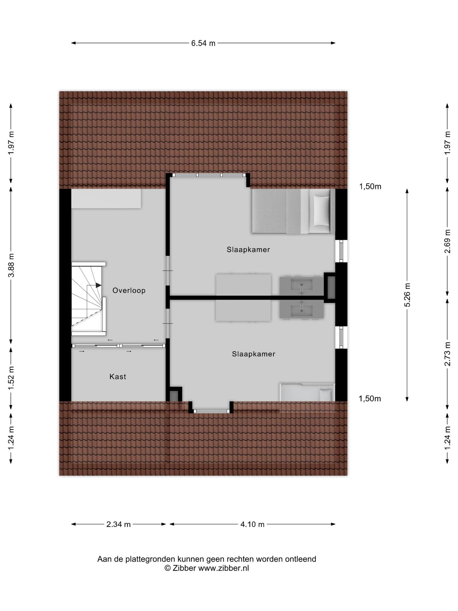
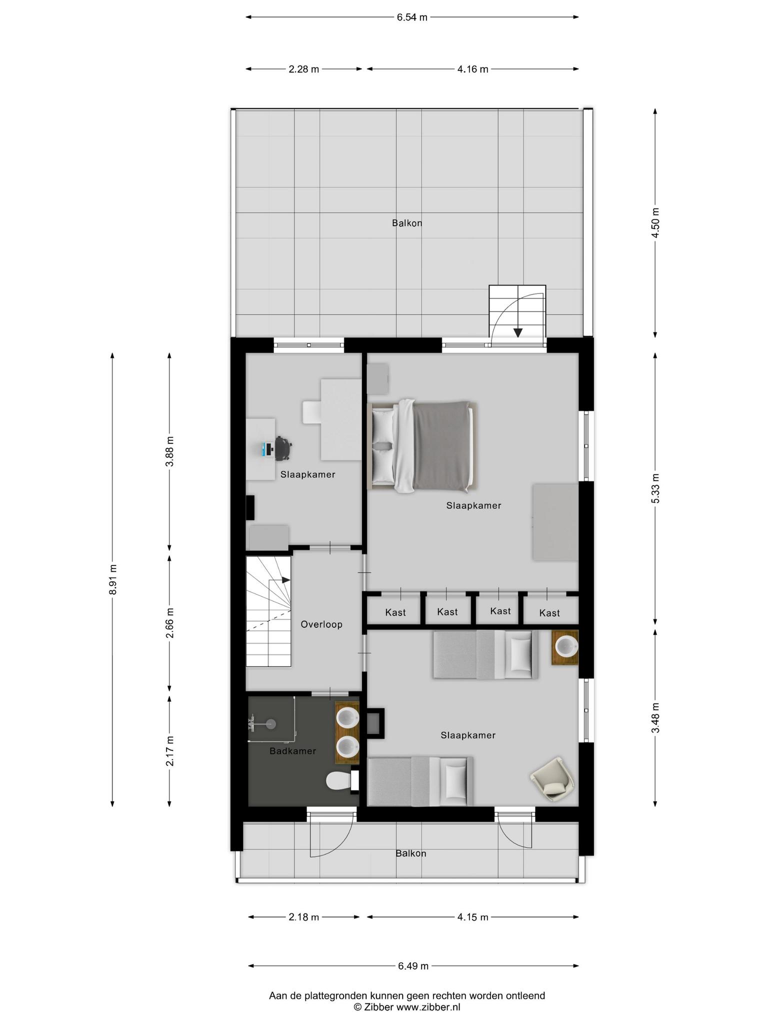
1e verdieping: overloop, 3 royale slaapkamers waarvan 2 met balkon, iedere kamer is voorzien van een wastafel. Badkamer, met bad/douche combinatie, tweede toilet, wastafel en toegang tot het balkon.

2e verdieping: overloop, 2 slaapkamers, ook met eigen wastafel, grote vaste kastenwand, en veel praktische bergruimte achter de knieschotten, en praktische vliering.

Souterrain; ruim souterrain met een stahoogte van 2m, bereikbaar vanuit de garage, er is ruimte voor een wasmachine en droger, ideaal ook als speelruimte, hobby ruimte of atelier.

Garage; vrijstaande stenen garage met smeerput en toegang tot het souterrain.

Locatie:
De Thorbeckestraat ligt op de grens van het Statenkwartier en het Spijkerkwartier, twee wijken met voornamelijk karakteristieke stadspanden. Een ideale plek vlakbij winkels, cafés en restaurants, kunstgalerieën en een theater. De gezellige, gemoderniseerde Steenstraat en het centrum van Arnhem zijn om de hoek. Het NS station Velperpoort en het Centraal Station Arnhem liggen op loop- en fietsafstand. Het openbaar vervoer en de snelwegen in de regio zijn snel te bereiken.

Lees verder

Kenmerken

Overdracht

  • Status Verkocht
  • Vraagprijs € 629.500 k.k.
  • Aanvaarding In overleg

Bouwvorm & onderhoud

  • Soort object Twee onder een kapwoning
  • Soort woning Eengezinswoning
  • Bouwjaar 1949
  • Bouwvorm Bestaande bouw
  • Bouwtype Woonhuis
  • Tuin kwaliteit Normaal
  • Ligging In centrum, in woonwijk

Parkeergelegenheid

  • Parkeerfaciliteiten Openbaar parkeren, op eigen terrein
  • Garage Vrijstaand steen

Overig

  • Onderhoud binnen Goed
  • Onderhoud buiten Redelijk tot goed
  • Permanente bewoning Ja
  • Huidig gebruik Woonruimte
  • Huidige bestemming Woonruimte

Indeling

  • Woonoppervlakte ± 212 m2
  • Inhoud ± 908 m3
  • Aantal kamers 7 kamers
  • Aantal slaapkamers 5 slaapkamers
  • Aantal badkamers 1 badkamer
  • Badkamervoorzieningen Toilet, douche, wastafel
  • Aantal woonlagen 4 woonlagen
  • Overige inpandige ruimte ± 31 m2

Buitenruimte

  • Tuintype Achtertuin, voortuin, zijtuin
  • Kwaliteit tuin Normaal

Energie

  • Energielabel F
  • Isolatie Gedeeltelijk dubbel glas
  • Verwarming Cv ketel
  • Warm water Cv ketel
  • C.V.-ketel type Gas
  • C.V.-ketel bouwjaar 2016
  • Energie einddatum 12 jun 2031

Voorzieningen

  • Voorzieningen Mechanische ventilatie, tv kabel

Kadastrale gegevens

  • Gemeente Arnhem
  • Sectie Q
  • Eigendom Volle eigendom
  • Perceeloppervlakte 252 m2

Media

Informatie over de buurt

Burgerlijke staat

Gehuwd
Ongehuwd
Gescheiden
Verweduwd
  • Gehuwd
  • Ongehuwd
  • Gescheiden
  • Verweduwd

Leeftijd in gemeente

0 - 15 jaar
15 - 25 jaar
25-45 jaar
45 - 65 jaar
65+ jaar
  • 0 - 15 jaar
  • 15 - 25 jaar
  • 25 - 45 jaar
  • 45 - 65 jaar
  • 65+ jaar

Leeftijd buurtbewoners

0 - 15 jaar
15 - 25 jaar
25-45 jaar
45 - 65 jaar
65+ jaar
  • 0 - 15 jaar
  • 15 - 25 jaar
  • 25 - 45 jaar
  • 45 - 65 jaar
  • 65+ jaar

In de buurt

Filter

      Downloads

      Download hier de brochure van deze woning.

      Dit veld is bedoeld voor validatiedoeleinden en moet niet worden gewijzigd.
      bolletjes

      WILLEMSEN MAKELAARS ZOEKT VOOR U

      Maak een zoekopdracht aan

      makelaar Martijn Joyce