Verkocht

St. janskerkstraat 78

Vraagprijs € 400.000 k.k.

  • 1906

Omschrijving

Wij mogen u aanbieden een keurig onderhouden 3 op zich zelf staande micro appartementen welke in verhuurde staat zullen worden verkocht. Gelegen aan de rijk historische St. Janskerkstraat in het altijd gezellig Klarendal. Supermarkten, de binnenstad en uitvalswegen zijn in de directe nabijheid. Kortom een pracht van een plek met alle voorzieningen nabij.

De appartementen kenmerken zich door de efficiënte indeling, de hoogwaardige afwerking, houtlook laminaatvloer, draai-kiepramen met plisségordijnen, sfeervolle details en complete gedeelde riante wasruimte met wasmachine, -droger en strijkapparatuur + stofzuiger.

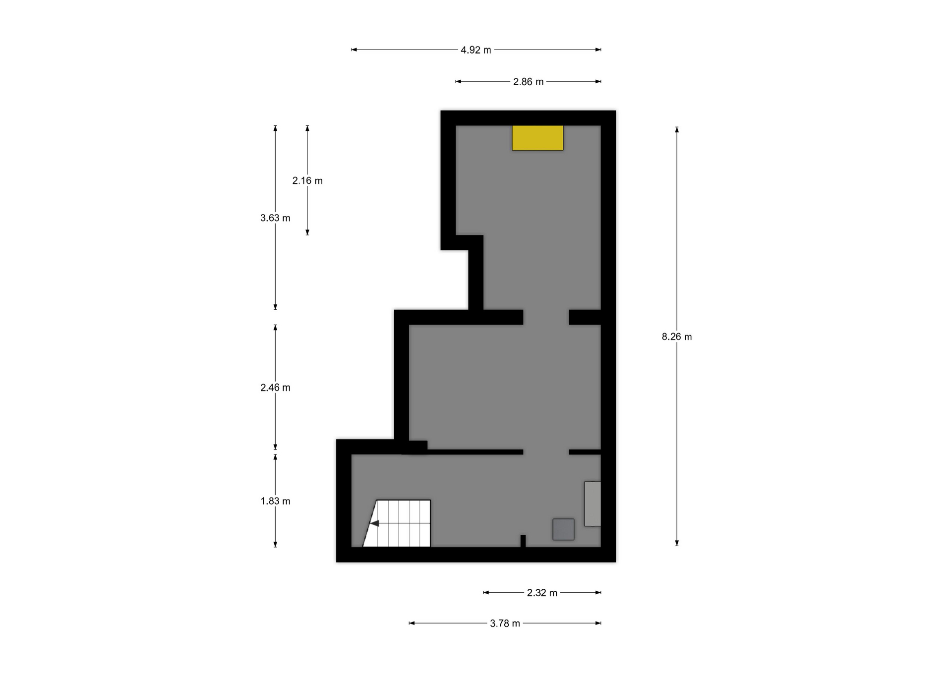
Indeling:

Begane grond:
Entree, hal, toegang naar de kelder die is opgedeeld in drie units…

Wij mogen u aanbieden een keurig onderhouden 3 op zich zelf staande micro appartementen welke in verhuurde staat zullen worden verkocht. Gelegen aan de rijk historische St. Janskerkstraat in het altijd gezellig Klarendal. Supermarkten, de binnenstad en uitvalswegen zijn in de directe nabijheid. Kortom een pracht van een plek met alle voorzieningen nabij.

De appartementen kenmerken zich door de efficiënte indeling, de hoogwaardige afwerking, houtlook laminaatvloer, draai-kiepramen met plisségordijnen, sfeervolle details en complete gedeelde riante wasruimte met wasmachine, -droger en strijkapparatuur + stofzuiger.

Indeling:

Begane grond:
Entree, hal, toegang naar de kelder die is opgedeeld in drie units waar iedere appartement haar berging heeft.
Wasruimte inclusief wasmachine, droger en strijkapparatuur, cv-ketel zijn ook vanuit de hal te betreden alsmede twee appartementen en een buitenruimte. Aan de buitenruimte grenst het derde appartement.

Alle drie de appartementen zijn voorzien van:
Houtlook laminaatvloer, keuken met inductie kookplaat, oven, wasbak, koelkast en afzuigkap. Douche met glazen schuifdeur, wastafel en opbergmeubel de badkamer is af te sluiten met een sfeervolle schuifdeur.
De woonkamer is voorzien van een hoogslaper met kasttrap en grote raampartijen met draai/kiepramen.
Ook hebben alle appartementen een eigen thermostaat en toiletruimte tot hun beschikking.

De huuropbrengsten zijn € 570,-, € 550,- en € 600,- (kale huur).
Er is geen brochure aanwezig.

Doordat de appartementen hoog zijn is er slim gebruik gemaakt van de ruimte. De bedden zijn hoogslapers waardoor eronder voldoende ruimte is voor diverse mogelijkheden.

Een eeuw geleden werd Klarendal gezien als een uitgesproken volkswijk. Gekenmerkt door veelal kleine woningen gebouwd in cottagestijl. Waar de wijk vroeger roerige tijden kende, is Klarendal de laatste jaren sterk ontwikkeld tot een creatieve wijk. Veel panden kregen andere bestemmingen waardoor de buurten floreerden. Tegenwoordig is de wijk een verzameling van typische buurten vol met charmante hofjes. Wie door Klarendal heen wandelt, zal het unieke karakter van de wijk dan ook direct opvallen: steegjes, verborgen boerderijen en juwelen van vroegere sociale woningbouwprojecten, zoals de Mussenwijk. Deze huizen worden afgewisseld door diverse nieuwbouwwoningen.

Lees verder

Kenmerken

Overdracht

  • Status Verkocht
  • Servicekosten -

Bouwvorm & onderhoud

  • Hoofdfunctie Belegging
  • Soort bouw Bestaande bouw
  • Bouwjaar 1906

Indeling

Energie

  • Energielabel A

Overig

  • Onderhoud binnen Goed tot uitstekend
  • Onderhoud buiten Goed tot uitstekend

Media

Informatie over de buurt

Burgerlijke staat

Gehuwd
Ongehuwd
Gescheiden
Verweduwd
  • Gehuwd
  • Ongehuwd
  • Gescheiden
  • Verweduwd

Leeftijd in gemeente

0 - 15 jaar
15 - 25 jaar
25-45 jaar
45 - 65 jaar
65+ jaar
  • 0 - 15 jaar
  • 15 - 25 jaar
  • 25 - 45 jaar
  • 45 - 65 jaar
  • 65+ jaar

Leeftijd buurtbewoners

0 - 15 jaar
15 - 25 jaar
25-45 jaar
45 - 65 jaar
65+ jaar
  • 0 - 15 jaar
  • 15 - 25 jaar
  • 25 - 45 jaar
  • 45 - 65 jaar
  • 65+ jaar

In de buurt

Filter

      bolletjes

      WILLEMSEN MAKELAARS ZOEKT VOOR U

      Maak een zoekopdracht aan

      makelaar Martijn Joyce