Beschikbaar

Willem Barendszstraat 22 1

Vraagprijs € 250.000 k.k.

  • 51 m2
  • 169 m3
  • 3 kamers

Omschrijving

Deze nette jaren ’30 woning bestaande uit twee verdiepingen, 1e verdieping met een totale woonoppervlakte van ca. 51,1 m2 heb je hier een centrale locatie op steenworp afstand van het centrum van Arnhem. De 2e verdieping beschikt over een dakkapel en Velux dakraam. De woning geeft nieuwe bewoners de mogelijkheid om de woning volledig naar eigen smaak te maken.

Alles dichtbij:
Deze woning is gelegen in de wijk “Het Broek”. Met slechts enkele minuten fietsen een supermarkt binnen bereik, en op een kwartiertje lopen of een korte busrit ben je al in de binnenstad. Met de bushalte om…

Deze nette jaren ’30 woning bestaande uit twee verdiepingen, 1e verdieping met een totale woonoppervlakte van ca. 51,1 m2 heb je hier een centrale locatie op steenworp afstand van het centrum van Arnhem. De 2e verdieping beschikt over een dakkapel en Velux dakraam. De woning geeft nieuwe bewoners de mogelijkheid om de woning volledig naar eigen smaak te maken.

Alles dichtbij:
Deze woning is gelegen in de wijk “Het Broek”. Met slechts enkele minuten fietsen een supermarkt binnen bereik, en op een kwartiertje lopen of een korte busrit ben je al in de binnenstad. Met de bushalte om de hoek kun je makkelijk naar de binnenstad of richting Presikhaaf/Velp. Bovendien zijn er in de buurt diverse voorzieningen, zoals winkels, speeltuintjes en scholen.

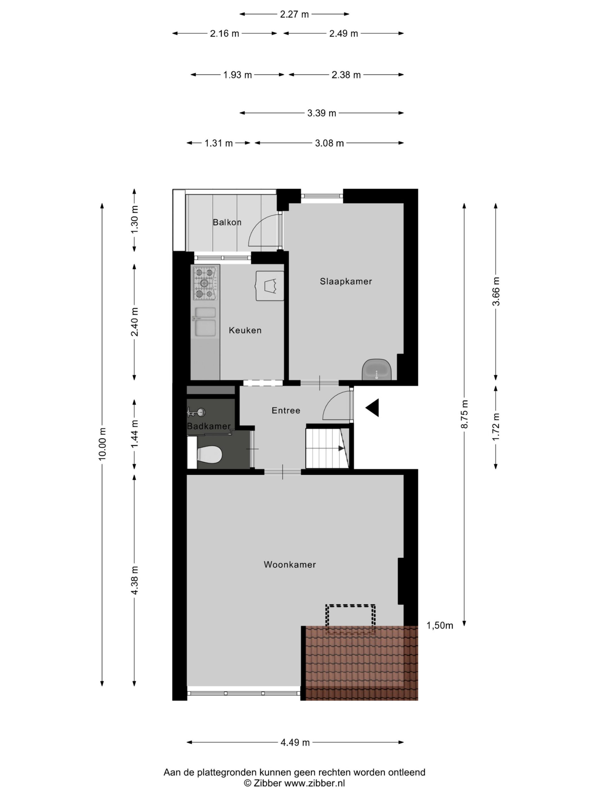
Indeling:
Entree, trapopgang, entree 2e trapopgang, overloop, woonkamer met dakkapel en velux dakraam, de woonkamer is voorzien van laminaat, badkamer met douche en toilet, slaapkamer met deur naar balkon, keuken met 5 pits gas kookplaat, afzuigkap en wasmachine opstelling.
2e verdieping: grote zolder met dakkapel van formaat. Deze ruimte is voor diverse doeleinden geschikt. Natuurlijk ook perfecte slaapplek, CV ketelplaats Remeha HR (25-07-2017

Bijzonderheden:
- Woonoppervlakte van 51,1 m2
- Energielabel E
- Het appartement is voorzien van dubbel glas
- Aanvaarding op korte termijn
- Gezamenlijke buitenberging aanwezig voor de fietsen
- Actieve VvE

LET OP: Bieden van af: € 250.000,- k.k.

Lees verder

Kenmerken

Overdracht

  • Status Beschikbaar
  • Vraagprijs € 250.000 k.k.
  • Aanvaarding Direct

Bouwvorm & onderhoud

  • Bouwjaar 1937
  • Bouwvorm Bestaande bouw
  • Bouwtype Appartement
  • Appartement soort Bovenwoning
  • Ligging Aan rustige weg, in woonwijk

Parkeergelegenheid

  • Parkeerfaciliteiten Openbaar parkeren, betaald parkeren, parkeervergunningen
  • Garage Geen garage

Overig

  • Onderhoud binnen Goed
  • Onderhoud buiten Goed
  • Permanente bewoning Ja
  • Huidig gebruik Woonruimte
  • Huidige bestemming Woonruimte

Indeling

  • Woonoppervlakte ± 51 m2
  • Inhoud ± 169 m3
  • Aantal kamers 3 kamers
  • Aantal slaapkamers 2 slaapkamers
  • Aantal badkamers 1 badkamer
  • Badkamervoorzieningen Toilet, douche
  • Aantal woonlagen 2 woonlagen
  • Externe bergruimte ± 2 m2

Bergruimte

  • Schuur / berging Vrijstaand hout

Energie

  • Energielabel E
  • Isolatie Dakisolatie, dubbel glas
  • Verwarming Cv ketel
  • Warm water Cv ketel
  • C.V.-ketel type Gas
  • C.V.-ketel bouwjaar 2017
  • Energie einddatum 22 dec 2035

Voorzieningen

  • Voorzieningen Rookkanaal, dakraam

Kadastrale gegevens

  • Gemeente Arnhem
  • Sectie Q
  • Eigendom Volle eigendom
  • Index 9

Dak

  • Soort dak Zadeldak
  • Soort materiaal Pannen, bitumineuze dakbedekking

Media

Informatie over de buurt

Burgerlijke staat

Gehuwd
Ongehuwd
Gescheiden
Verweduwd
  • Gehuwd
  • Ongehuwd
  • Gescheiden
  • Verweduwd

Leeftijd in gemeente

0 - 15 jaar
15 - 25 jaar
25-45 jaar
45 - 65 jaar
65+ jaar
  • 0 - 15 jaar
  • 15 - 25 jaar
  • 25 - 45 jaar
  • 45 - 65 jaar
  • 65+ jaar

Leeftijd buurtbewoners

0 - 15 jaar
15 - 25 jaar
25-45 jaar
45 - 65 jaar
65+ jaar
  • 0 - 15 jaar
  • 15 - 25 jaar
  • 25 - 45 jaar
  • 45 - 65 jaar
  • 65+ jaar

In de buurt

Filter

      bolletjes

      WILLEMSEN MAKELAARS ZOEKT VOOR U

      Maak een zoekopdracht aan

      makelaar Martijn Joyce