Beschikbaar

Westervoortsedijk 36

Vraagprijs € 675.000 k.k.

  • 159 m2
  • 560 m3
  • 6 kamers

Omschrijving

Exclusief wonen aan de Rijn: moderne vierlaagse stadswoning (2023) met 159 m² woonoppervlakte, panoramisch uitzicht, high-end keuken, energielabel A+++ en eigen parkeerplaats (laadvoorziening voorbereid).

Aan de Westervoortsedijk 36 in Arnhem ligt deze hoogwaardig afgewerkte, instapklare stadswoning van ca. 160 m², verdeeld over vier volwaardige woonlagen. Gelegen in het nieuwe en geliefde Kadekwartier, woon je hier modern, duurzaam en toekomstbestendig, met een uniek panoramisch uitzicht over de Rijn en de iconische John Frostbrug.
Een woning waar architectuur, comfort en locatie naadloos samenkomen.

Licht, ruimte & hoogwaardige afwerking
Dankzij de grote raampartijen aan zowel de voor- als achterzijde op iedere…

Exclusief wonen aan de Rijn: moderne vierlaagse stadswoning (2023) met 159 m² woonoppervlakte, panoramisch uitzicht, high-end keuken, energielabel A+++ en eigen parkeerplaats (laadvoorziening voorbereid).

Aan de Westervoortsedijk 36 in Arnhem ligt deze hoogwaardig afgewerkte, instapklare stadswoning van ca. 160 m², verdeeld over vier volwaardige woonlagen. Gelegen in het nieuwe en geliefde Kadekwartier, woon je hier modern, duurzaam en toekomstbestendig, met een uniek panoramisch uitzicht over de Rijn en de iconische John Frostbrug.
Een woning waar architectuur, comfort en locatie naadloos samenkomen.

Licht, ruimte & hoogwaardige afwerking
Dankzij de grote raampartijen aan zowel de voor- als achterzijde op iedere verdieping is de woning uitzonderlijk licht en ruimtelijk. De gehele woning is voorzien van een strakke gietvloer, wat zorgt voor een rustige, moderne en luxe uitstraling.
Daarnaast beschikt de woning over:
- Touch-lichtschakelaars
- Kindveilige stopcontacten
- Uitgebreid lichtplan op alle verdiepingen
- Op maat gemaakte houten jaloezieën bij alle ramen

Luxe woonkeuken – het kloppend hart van de woning
De woonkeuken op de begane grond vormt het centrale punt van het huis en is uitgevoerd met een exclusieve Siematic keuken met royaal kookeiland — perfect voor koken, borrelen en samenkomen.
Voorzien van hoogwaardige inbouwapparatuur:
- BORA X Pure inductiekookplaat
- Quooker Combi+ (7 liter)
- SteamPro oven met stoomreiniging
- CombiQuick heteluchtoven met magnetron
- Ingebouwd koffieapparaat
- Wijnklimaatkast
- Koelkast (172 cm) en vriezer (172 cm)
- Vaatwasser
- En dankzij de CW6-waterinstallatie is gelijktijdig warmwatergebruik met meerdere personen geen enkel probleem.

Comfortabele & slimme indeling
Begane grond: luxe woonkeuken
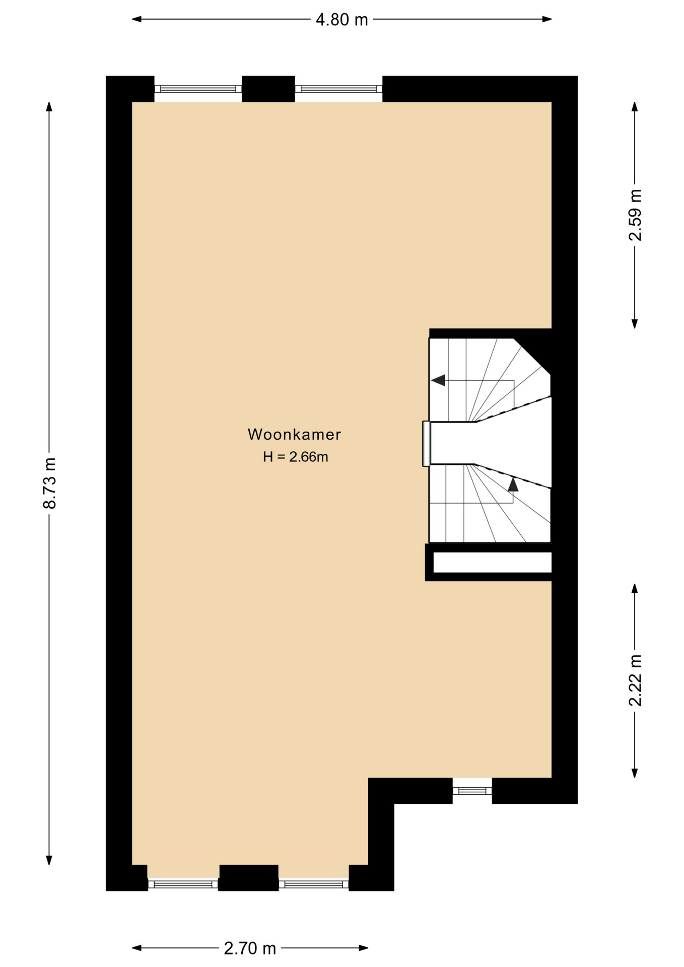
1e verdieping: royale woonkamer
2e verdieping: twee comfortabele slaapkamers en een moderne badkamer
3e verdieping: zeer royale master bedroom met separate wasruimte
De indeling biedt volop flexibiliteit voor gezinnen, thuiswerken of gasten.

Duurzaam, energiezuinig & toekomstbestendig
Deze woning is gebouwd met oog voor de toekomst en beschikt over:
- Energielabel A+++
- Stadsverwarming
- Vloerverwarming op begane grond en 1e verdieping
- 10 zonnepanelen
- Dit resulteert in optimaal wooncomfort en lage energielasten.

Kindvriendelijk wonen & parkeren op eigen terrein
Midden op het Gashoudersplein bevindt zich een speeltuin, waardoor de woning zeer geschikt is voor gezinnen.
Aan de achterzijde beschik je over een privé parkeerplaats op afgesloten terrein. De bekabeling voor een elektrische laadpaal is reeds aangelegd, waardoor deze eenvoudig geplaatst kan worden.

Wonen in het Kadekwartier
Een dynamische en populaire woonomgeving met alles binnen handbereik: Rijnkade en wandelroutes langs het water, binnenstad van Arnhem op korte fietsafstand, uitstekende verbindingen richting A12 en A50, station Arnhem Centraal snel bereikbaar en restaurants, cafés, terrassen, supermarkten, scholen en sportvoorzieningen in de omgeving.

Samenvatting:
- Bouwjaar 2023
- Ca. 160 m² woonoppervlak
- Vier volwaardige woonlagen
- Panoramisch uitzicht op Rijn & John Frostbrug
- Luxe Siematic woonkeuken
- Energielabel A+++
- Stadsverwarming & vloerverwarming
- 10 zonnepanelen
- Eigen parkeerplaats (laadvoorziening voorbereid)
- Instapklaar & hoogwaardig afgewerkt
- Mandeligterrein voor de parkeerplaats, €10,- per maand;

Een zeldzame combinatie van luxe, duurzaamheid en locatie.
Plan snel een bezichtiging en laat je verrassen door deze uitzonderlijke stadswoning.

Lees verder

Kenmerken

Overdracht

  • Status Beschikbaar
  • Vraagprijs € 675.000 k.k.
  • Aanvaarding In overleg

Bouwvorm & onderhoud

  • Soort object Tussenwoning
  • Soort woning Eengezinswoning
  • Bouwjaar 2023
  • Bouwvorm Bestaande bouw
  • Bouwtype Woonhuis
  • Tuin kwaliteit Fraai aangelegd
  • Tuin achterom 1
  • Ligging Aan rustige weg, in centrum, in woonwijk, open ligging

Parkeergelegenheid

  • Parkeerfaciliteiten Betaald parkeren, parkeervergunningen, op eigen terrein
  • Garage Geen garage

Overig

  • Onderhoud binnen Uitstekend
  • Onderhoud buiten Uitstekend
  • Permanente bewoning Ja
  • Huidig gebruik Woonruimte
  • Huidige bestemming Woonruimte

Indeling

  • Woonoppervlakte ± 159 m2
  • Inhoud ± 560 m3
  • Aantal kamers 6 kamers
  • Aantal slaapkamers 3 slaapkamers
  • Aantal badkamers 1 badkamer
  • Badkamervoorzieningen Toilet, wastafel, inloopdouche
  • Aantal woonlagen 4 woonlagen
  • Externe bergruimte ± 5 m2

Buitenruimte

  • Hoofdtuin Achtertuin
  • Tuintype Achtertuin, voortuin
  • Oppervlakte hoofdtuin 38 m2
  • Ligging hoofdtuin Noordwest
  • Kwaliteit tuin Fraai aangelegd

Bergruimte

  • Schuur / berging Vrijstaand hout
  • Aantal schuren / bergingen 1
  • Voorzieningen Voorzien van elektra

Energie

  • Energielabel A+++
  • Isolatie Volledig geisoleerd
  • Verwarming Stadsverwarming
  • Warm water Stadsverwarming
  • Energie einddatum 12 sep 2033

Voorzieningen

  • Voorzieningen Mechanische ventilatie, airconditioning, glasvezel kabel, zonnepanelen, natuurlijke ventilatie

Kadastrale gegevens

  • Gemeente Arnhem
  • Sectie D
  • Eigendom Volle eigendom
  • Perceeloppervlakte 98 m2

Dak

  • Soort dak Plat dak

Media

Informatie over de buurt

Burgerlijke staat

Gehuwd
Ongehuwd
Gescheiden
Verweduwd
  • Gehuwd
  • Ongehuwd
  • Gescheiden
  • Verweduwd

Leeftijd in gemeente

0 - 15 jaar
15 - 25 jaar
25-45 jaar
45 - 65 jaar
65+ jaar
  • 0 - 15 jaar
  • 15 - 25 jaar
  • 25 - 45 jaar
  • 45 - 65 jaar
  • 65+ jaar

Leeftijd buurtbewoners

0 - 15 jaar
15 - 25 jaar
25-45 jaar
45 - 65 jaar
65+ jaar
  • 0 - 15 jaar
  • 15 - 25 jaar
  • 25 - 45 jaar
  • 45 - 65 jaar
  • 65+ jaar

In de buurt

Filter

      Downloads

      Download hier de brochure van deze woning.

      Dit veld is bedoeld voor validatiedoeleinden en moet niet worden gewijzigd.
      bolletjes

      WILLEMSEN MAKELAARS ZOEKT VOOR U

      Maak een zoekopdracht aan

      makelaar Martijn Joyce