Verkocht onder voorbehoud

Velperweg 52

Vraagprijs € 1.195.000 k.k.

  • 520 m2
  • 1.927 m3
  • 15 kamers

Omschrijving

Monumentale villa vol grandeur aan de Velperweg 52 – wonen in stijl op een mooie locatie in Arnhem

Stap binnen in een wereld van karakter, ruimte en historie aan de Velperweg 52 in Arnhem. Deze indrukwekkende villa uit circa 1880 is niet alleen een monument, maar ook een uitgesproken kans om te wonen in een pand dat elegantie en functionaliteit moeiteloos combineert. Een unieke kans om hier je nieuwe thuis van te maken. De mogelijkheden zijn eindeloos.

Met een royale woonoppervlakte van maar liefst 520m², verdeeld over vijf woonlagen en gelegen op een perceel van 528m², biedt deze woning een…

Monumentale villa vol grandeur aan de Velperweg 52 – wonen in stijl op een mooie locatie in Arnhem

Stap binnen in een wereld van karakter, ruimte en historie aan de Velperweg 52 in Arnhem. Deze indrukwekkende villa uit circa 1880 is niet alleen een monument, maar ook een uitgesproken kans om te wonen in een pand dat elegantie en functionaliteit moeiteloos combineert. Een unieke kans om hier je nieuwe thuis van te maken. De mogelijkheden zijn eindeloos.

Met een royale woonoppervlakte van maar liefst 520m², verdeeld over vijf woonlagen en gelegen op een perceel van 528m², biedt deze woning een uitzonderlijke leefomgeving in één van de meest gewilde delen van Arnhem.

Karakter & authenticiteit

Zodra je binnenkomt, proef je de rijke geschiedenis van het pand. Hoge plafonds, prachtige ornamenten, originele paneeldeuren en andere klassieke details zijn met liefde behouden. De stijlvolle uitstraling wordt versterkt door de indeling in maar liefst 15 kamers, waarvan meerdere geschikt zijn als woonkamer, kantoor, hobbyruimte of slaapkamer.

Er zijn drie keukens en drie badkamers aanwezig, wat dit pand uitermate geschikt maakt voor dubbele bewoning, een kangoeroewoning, praktijk aan huis, of het combineren van wonen en werken.

Indeling:

Souterrain
Het souterrain beschikt over een inpandige berging, riante kamer aan de voorzijde die geschikt is als werk- of hobbyruimte en voorzien is van een vaste schuifwand. Daarnaast is er een trapkast en een ruime kamer grenzend aan de tuin, een eenvoudige badkamer met toilet, douche en wastafel, en een keuken met basisapparatuur. Deze verdieping biedt mogelijkheden voor bijvoorbeeld dubbele bewoning of gebruik als zelfstandige verdieping.

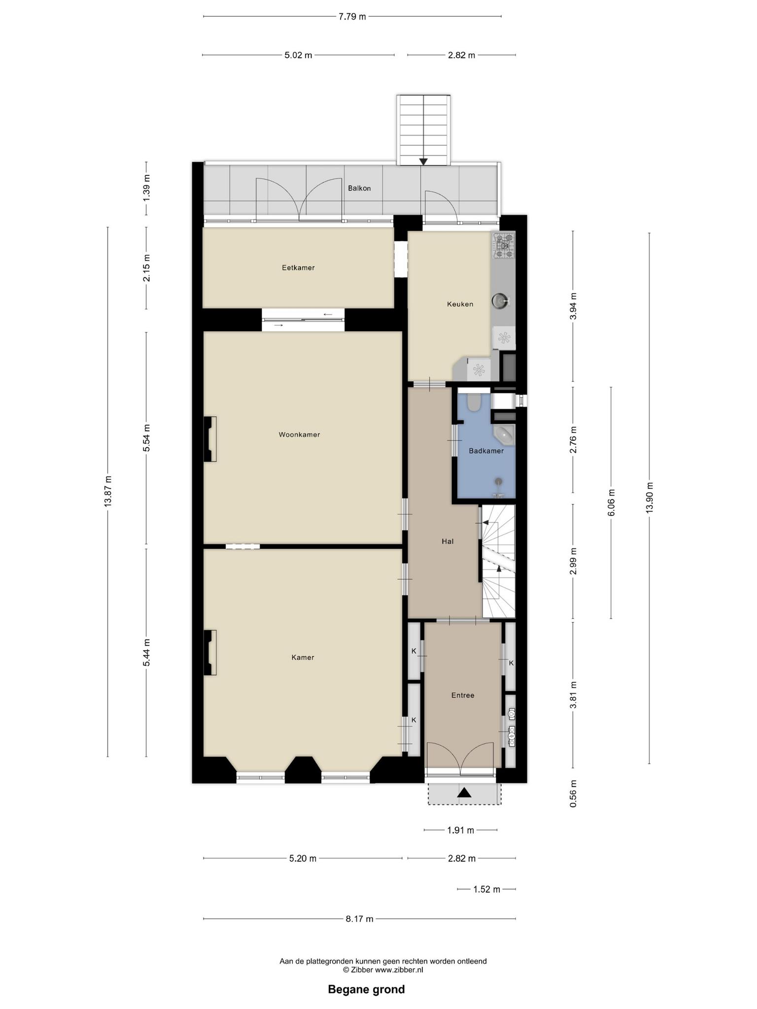
Beletage:
Via de vestibule kom je in de ruime centrale hal met trappenhuis. Op deze woonlaag bevinden zich twee aparte woonkamers, beide met een originele schouw. Aan de achterzijde ligt een serre met toegang tot het balkon. Verder is er een keuken en een badkamer met douche, toilet en wastafel. De indeling is ruim opgezet en biedt diverse gebruiksmogelijkheden.

Eerste verdieping:
De overloop geeft toegang tot een toilet en een kleinere slaapkamer aan de voorzijde, voorzien van een vaste wastafel en een klein balkon. De verdieping beschikt daarnaast over een woonkamer en-suite met karakteristieke houten schuifdeuren, een serre, een tweede slaapkamer met wastafel en een kamer met aansluiting voor wasapparatuur.

Tweede verdieping:
Op deze verdieping bevindt zich een overloop met separaat toilet, een woonkamer met halfopen keuken (voorzien van apparatuur), een slaapkamer met een aansluitende badkamer voorzien van douche, hoekbad, dubbele wastafel en toilet. Ook hier is sprake van een praktische indeling met potentie voor herinrichting.

Derde verdieping:
De bovenste etage bestaat uit een overloop, twee kleinere kamers (waarvan één met toegang tot een dakterras) en een grote open ruimte met cv-opstelling. Daarnaast is er een vliering, geschikt voor extra bergruimte. Deze verdieping kan naar eigen inzicht worden ingedeeld of verbouwd.

Buitenleven in de stad

Aan de voorzijde staat een prachtige monumentale boom die direct karakter toevoegt aan het straatbeeld. De diepe, zonnige achtertuin biedt volop privacy en rust — een zeldzaam bezit in deze stedelijke omgeving. De perfecte plek om te ontspannen of te genieten van lange zomeravonden, met de reuring van de stad slechts een paar meter verderop.

Parkeren & Bereikbaarheid

Parkeer je auto gewoon op eigen terrein — een absolute luxe op deze locatie. Station Velperpoort ligt op 5 minuten lopen, en met de Albert Heijn aan de overzijde en diverse andere winkels, horeca en voorzieningen op loopafstand, is gemak hier vanzelfsprekend.

De locatie: levendig én rustig

De ligging aan de Velperweg biedt het beste van twee werelden. Aan de voorzijde voel je de levendigheid van de stad, terwijl je aan de achterzijde juist complete rust en privacy ervaart. Het centrum van Arnhem of één van de nabijgelegen parken, zoals Sonsbeek of Klarenbeek zijn op loopafstand.

Samengevat:

- Monument uit ca. 1880
- 520 m² woonoppervlakte | perceel 528 m²
- 5 woonlagen, 15 kamers
- 3 keukens en 3 badkamers
- Monumentale boom en zonnige achtertuin
- Parkeren op eigen terrein
- Originele details
- Voorzien van zonnepanelen
- Geschikt voor dubbele bewoning, praktijk aan huis of wonen/werken
- Centrum, station, winkels en parken op loopafstand

Lees verder

Kenmerken

Overdracht

  • Status Verkocht onder voorbehoud
  • Vraagprijs € 1.195.000 k.k.
  • Aanvaarding In overleg

Bouwvorm & onderhoud

  • Soort object Twee onder een kapwoning
  • Soort woning Herenhuis
  • Bouwjaar 1880
  • Bouwvorm Bestaande bouw
  • Bouwtype Woonhuis
  • Tuin kwaliteit Normaal
  • Ligging In woonwijk

Parkeergelegenheid

  • Parkeerfaciliteiten Op eigen terrein
  • Garage Geen garage

Overig

  • Onderhoud binnen Redelijk
  • Onderhoud buiten Redelijk tot goed
  • Bijzonderheden Monumentaal pand, dubbele bewoning mogelijk, dubbele bewoning aanwezig
  • Permanente bewoning Ja
  • Huidig gebruik Woonruimte
  • Huidige bestemming Woonruimte

Indeling

  • Woonoppervlakte ± 520 m2
  • Inhoud ± 1.927 m3
  • Aantal kamers 15 kamers
  • Aantal slaapkamers 8 slaapkamers
  • Aantal badkamers 3 badkamers
  • Badkamervoorzieningen Toilet, douche, wastafel, toilet, douche, wastafel, ligbad, toilet, douche, wastafel
  • Aantal woonlagen 5 woonlagen
  • Externe bergruimte ± 9 m2

Buitenruimte

  • Hoofdtuin Achtertuin
  • Tuintype Achtertuin, voortuin
  • Oppervlakte hoofdtuin 270 m2
  • Ligging hoofdtuin Zuid
  • Kwaliteit tuin Normaal

Bergruimte

  • Schuur / berging Vrijstaand hout
  • Aantal schuren / bergingen 1

Energie

  • Verwarming Cv ketel
  • Warm water Cv ketel
  • C.V.-ketel type Gas

Voorzieningen

  • Voorzieningen Tv kabel, zonnepanelen, natuurlijke ventilatie

Kadastrale gegevens

  • Gemeente Arnhem
  • Sectie Q
  • Eigendom Volle eigendom
  • Perceeloppervlakte 528 m2

Dak

  • Soort dak Samengesteld dak
  • Soort materiaal Pannen, bitumineuze dakbedekking

Media

Informatie over de buurt

Burgerlijke staat

Gehuwd
Ongehuwd
Gescheiden
Verweduwd
  • Gehuwd
  • Ongehuwd
  • Gescheiden
  • Verweduwd

Leeftijd in gemeente

0 - 15 jaar
15 - 25 jaar
25-45 jaar
45 - 65 jaar
65+ jaar
  • 0 - 15 jaar
  • 15 - 25 jaar
  • 25 - 45 jaar
  • 45 - 65 jaar
  • 65+ jaar

Leeftijd buurtbewoners

0 - 15 jaar
15 - 25 jaar
25-45 jaar
45 - 65 jaar
65+ jaar
  • 0 - 15 jaar
  • 15 - 25 jaar
  • 25 - 45 jaar
  • 45 - 65 jaar
  • 65+ jaar

In de buurt

Filter

      Downloads

      Download hier de brochure van deze woning.

      Dit veld is bedoeld voor validatiedoeleinden en moet niet worden gewijzigd.
      bolletjes

      WILLEMSEN MAKELAARS ZOEKT VOOR U

      Maak een zoekopdracht aan

      makelaar Martijn Joyce