Verkocht

Roerdompstraat 81

Vraagprijs € 399.000 k.k.

  • 118 m2
  • 417 m3
  • 5 kamers

Omschrijving

Dé kans voor de handige klusser!
Op een schitterende locatie in Velp, direct nabij het prachtige Landgoed Biljoen, staat deze heerlijk lichte hoekwoning met oprit en ruime schuur. Een woning met potentie, welke je volledig naar eigen smaak kunt moderniseren en inrichten.

Wonen op een toplocatie
De woning ligt op een aantrekkelijk formaat perceel en profiteert van een ideale situering: een zonnige tuin op het zuiden, privacy, rust én alle voorzieningen binnen handbereik. Dankzij de hoekligging geniet je van extra lichtinval en een vrij gevoel in en om het huis.

Comfortabel en onderhoudsvrij wonen
De buitenzijde van…

Dé kans voor de handige klusser!
Op een schitterende locatie in Velp, direct nabij het prachtige Landgoed Biljoen, staat deze heerlijk lichte hoekwoning met oprit en ruime schuur. Een woning met potentie, welke je volledig naar eigen smaak kunt moderniseren en inrichten.

Wonen op een toplocatie
De woning ligt op een aantrekkelijk formaat perceel en profiteert van een ideale situering: een zonnige tuin op het zuiden, privacy, rust én alle voorzieningen binnen handbereik. Dankzij de hoekligging geniet je van extra lichtinval en een vrij gevoel in en om het huis.

Comfortabel en onderhoudsvrij wonen
De buitenzijde van de woning is grotendeels onderhoudsvrij, waardoor je je vooral kunt richten op het creëren van je droominterieur. De ruime schuur en eigen oprit bieden volop praktische mogelijkheden.

Pak deze unieke kans en maak van deze woning jouw ideale thuis!

Indeling:
Begane grond: Entree, gang, toilet met fonteintje, meterkast, ruime woonkamer met toegang naar de achtertuin en half open keuken voorzien van inbouwapparatuur.

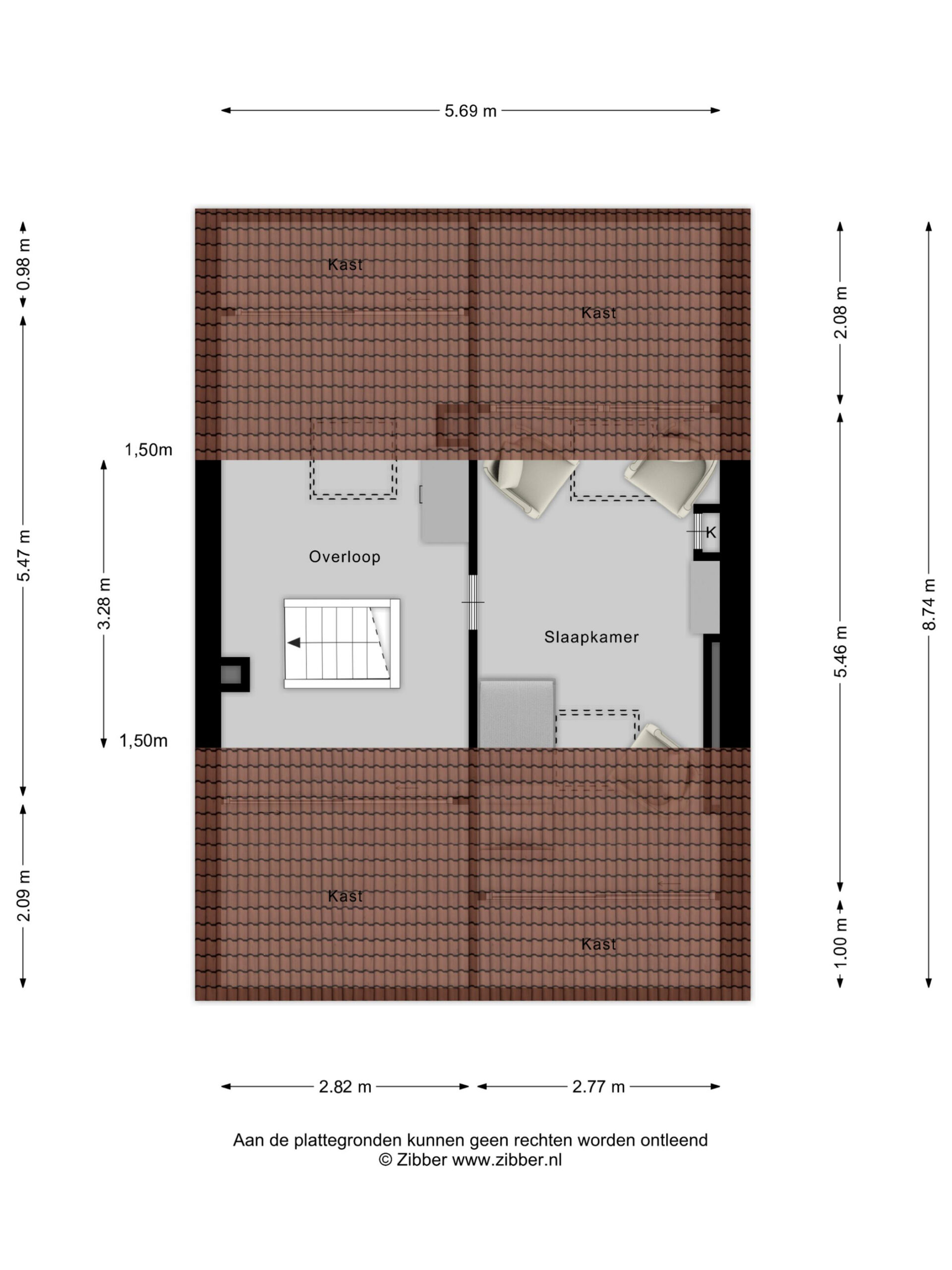
1e Verdieping: Overloop, 3 slaapkamers en een badkamer met ligbad, douche, toilet en wastafel, vaste trap naar…

2e Verdieping: Overloop met 4e slaapkamer.

Locatie:
De woning is op een bijzondere plek gesitueerd in zuidoost Velp. Voorbij de landerijen van Biljoen ligt een toegang voor wandelaars en fietsers die langs de vijvers van het kasteel loopt. Het dorpscentrum, (basis)scholen, busverbindingen & diverse uitvalswegen zijn nabij gelegen. Het Nationale Park De Hoge Veluwe, kastelen & bossen zijn recreatiemogelijkheden in de directe omgeving. Het centrum van Arnhem is binnen enkele fietsminuten bereikbaar. Door de gunstige ligging is Velp een zeer aantrekkelijke woonplaats.

Bijzonderheden:
- Rustig gelegen ideaal voor gezinnen;
- Woning die klaar is voor inrichting en modernisering, een unieke kans!
- Veel slaapkamers en zolder vol mogelijkheden;
- Buitenzijde uitstekend onderhouden en onderhoudsvrij;
- Gevel, vloer en dakisolatie;
- Dakpannen zijn vernieuwd;
- Voorzien van HR ++ glas;
- Hele woning voorzien van horren;
- Heerlijke tuin op het zuiden;
- Ruime schuur en achterom;
- Eigen oprit;
- Nabij natuurgebied de Posbank;
- Alle voorzieningen binnen handbereik en nabij diverse uitvalswegen.

Lees verder

Kenmerken

Overdracht

  • Status Verkocht
  • Vraagprijs € 399.000 k.k.
  • Aanvaarding In overleg

Bouwvorm & onderhoud

  • Soort object Hoekwoning
  • Soort woning Eengezinswoning
  • Bouwjaar 1970
  • Bouwvorm Bestaande bouw
  • Bouwtype Woonhuis
  • Tuin kwaliteit Normaal
  • Tuin achterom 1
  • Ligging Aan rustige weg, in woonwijk

Parkeergelegenheid

  • Parkeerfaciliteiten Openbaar parkeren
  • Garage Geen garage

Overig

  • Onderhoud binnen Redelijk
  • Onderhoud buiten Goed
  • Permanente bewoning Ja
  • Huidig gebruik Woonruimte
  • Huidige bestemming Woonruimte

Indeling

  • Woonoppervlakte ± 118 m2
  • Inhoud ± 417 m3
  • Aantal kamers 5 kamers
  • Aantal slaapkamers 4 slaapkamers
  • Aantal badkamers 1 badkamer
  • Badkamervoorzieningen Ligbad, toilet, douche, wastafel
  • Aantal woonlagen 3 woonlagen
  • Externe bergruimte ± 17 m2

Buitenruimte

  • Hoofdtuin Achtertuin
  • Tuintype Achtertuin, voortuin, zijtuin
  • Oppervlakte hoofdtuin 156 m2
  • Ligging hoofdtuin Zuid
  • Kwaliteit tuin Normaal

Bergruimte

  • Schuur / berging Vrijstaand steen
  • Aantal schuren / bergingen 1
  • Voorzieningen Voorzien van elektra

Energie

  • Energielabel C
  • Isolatie Dakisolatie, muurisolatie, vloerisolatie, dubbel glas
  • Verwarming Hete lucht verwarming, open haard
  • Warm water Geiser eigendom, elektrische boiler eigendom
  • Energie einddatum 06 nov 2035

Voorzieningen

  • Voorzieningen Buitenzonwering, schuifpui, dakraam, glasvezel kabel

Kadastrale gegevens

  • Gemeente Velp gelderland
  • Sectie C
  • Eigendom Volle eigendom
  • Perceeloppervlakte 247 m2

Dak

  • Soort dak Zadeldak
  • Soort materiaal Pannen

Media

Informatie over de buurt

Burgerlijke staat

Gehuwd
Ongehuwd
Gescheiden
Verweduwd
  • Gehuwd
  • Ongehuwd
  • Gescheiden
  • Verweduwd

Leeftijd in gemeente

0 - 15 jaar
15 - 25 jaar
25-45 jaar
45 - 65 jaar
65+ jaar
  • 0 - 15 jaar
  • 15 - 25 jaar
  • 25 - 45 jaar
  • 45 - 65 jaar
  • 65+ jaar

Leeftijd buurtbewoners

0 - 15 jaar
15 - 25 jaar
25-45 jaar
45 - 65 jaar
65+ jaar
  • 0 - 15 jaar
  • 15 - 25 jaar
  • 25 - 45 jaar
  • 45 - 65 jaar
  • 65+ jaar

In de buurt

Filter

      Downloads

      Download hier de brochure van deze woning.

      Dit veld is bedoeld voor validatiedoeleinden en moet niet worden gewijzigd.
      bolletjes

      WILLEMSEN MAKELAARS ZOEKT VOOR U

      Maak een zoekopdracht aan

      makelaar Martijn Joyce