Beschikbaar

Reinaldstraat 18

Vraagprijs € 585.000 k.k.

  • 219 m2
  • 834 m3
  • 2 kamers

Omschrijving

Op een fraaie en centrale locatie in Velp staat dit half vrijstaande herenhuis met karakter aan de Reinaldstraat 18. Dit royale pand biedt niet alleen een charmante uitstraling, maar ook een zee aan mogelijkheden en een unieke kans voor wie een oud herenhuis met modern comfort wil realiseren.
Dit echte kluspand, is bij uitstek geschikt voor een handige koper met verfijnde ideeën en diegene die eigen stempel op het woonplan willen drukken. Met de juiste afwerking biedt dit object volop potentie voor een combinatie van wonen en werken.

Deze totale renovatie zal grotendeels binnen plaatsvinden. Zo heeft verkoper gezamenlijk…

Op een fraaie en centrale locatie in Velp staat dit half vrijstaande herenhuis met karakter aan de Reinaldstraat 18. Dit royale pand biedt niet alleen een charmante uitstraling, maar ook een zee aan mogelijkheden en een unieke kans voor wie een oud herenhuis met modern comfort wil realiseren.
Dit echte kluspand, is bij uitstek geschikt voor een handige koper met verfijnde ideeën en diegene die eigen stempel op het woonplan willen drukken. Met de juiste afwerking biedt dit object volop potentie voor een combinatie van wonen en werken.

Deze totale renovatie zal grotendeels binnen plaatsvinden. Zo heeft verkoper gezamenlijk met de buren reeds het volledig dak opnieuw opgebouwd. Hierbij is het volledige dak met alle aanbouwdelen opnieuw opgebouwd en vervangen. Hierbij zijn het dakbeschot, dakpannen, hoekkepers, balken, goten en alle ramen en kozijnen vervangen. Hierbij is ook gedacht aan het aanbrengen van dakisolatie (rc 6,4), HR++ glas in alle beweegbare kozijnen en triple glas in de nieuwe vaste kozijnen. Ook heeft verkoper een fraaie moderne dakkapel geplaatst met aluminium kozijn. Het dak is voorzien van een extra staal constructie voor de isolatie en alle inwendige staalconstructies zijn ook reeds uitgevoerd. Daarbij zijn ook alle kozijnen op de eerste verdieping en de zolder vernieuwd. Kortom een mooie solide moderne basis die enkel nog in eigen stijl dient te worden afgebouwd.

Bijzonder is dat het object beschikt over een extra perceel van 58 m2 waar 3 eigen parkeerplaatsen, extra buitenplaats of de ontwikkeling tot een schuur kunnen worden gerealiseerd (apart perceelnummer, geen vergunning voor schuur aanwezig). Een waardevol pluspunt, zeker in deze gewilde buurt van Velp.

Locatie & Ligging

Gelegen in een rustige, groene straat nabij het centrum van Velp, profiteer je hier van een uitstekende bereikbaarheid en een prettige woonomgeving. Op loopafstand vind je diverse winkels, supermarkten, horecagelegenheden en scholen. Het treinstation van Velp is binnen enkele minuten te bereiken, net als uitvalswegen richting Arnhem, Nijmegen en de A12.
De Reinaldstraat ligt op de grens van stad en natuur: dichtbij het prachtige Nationaal Park Veluwezoom, maar ook vlak bij alle stedelijke voorzieningen van Arnhem. Een ideale combinatie voor wie centraal én rustig wil wonen en werken.

Kenmerken:

* Halfvrijstaande herenhuis met karakter

* Volledige dak renovatie en isolatie waarbij alles op de spanten na is vervangen met originele materialen en behoud van authenticiteit.

* Fraaie moderne dakkapel.

* Ramen en kozijnen op de eerste verdieping en zolder zijn vernieuwd.

* Alle staalconstructies zijn aangebracht of bestaande vernieuwd,

* Drie eigen parkeerplaatsen op eigen perceel

* Gelegen op een aantrekkelijke locatie in Velp

* Nabij centrum, station en uitvalswegen

* Herenhuis die geheel naar eigen idee en behoefte kan worden ingedeeld en ingericht.

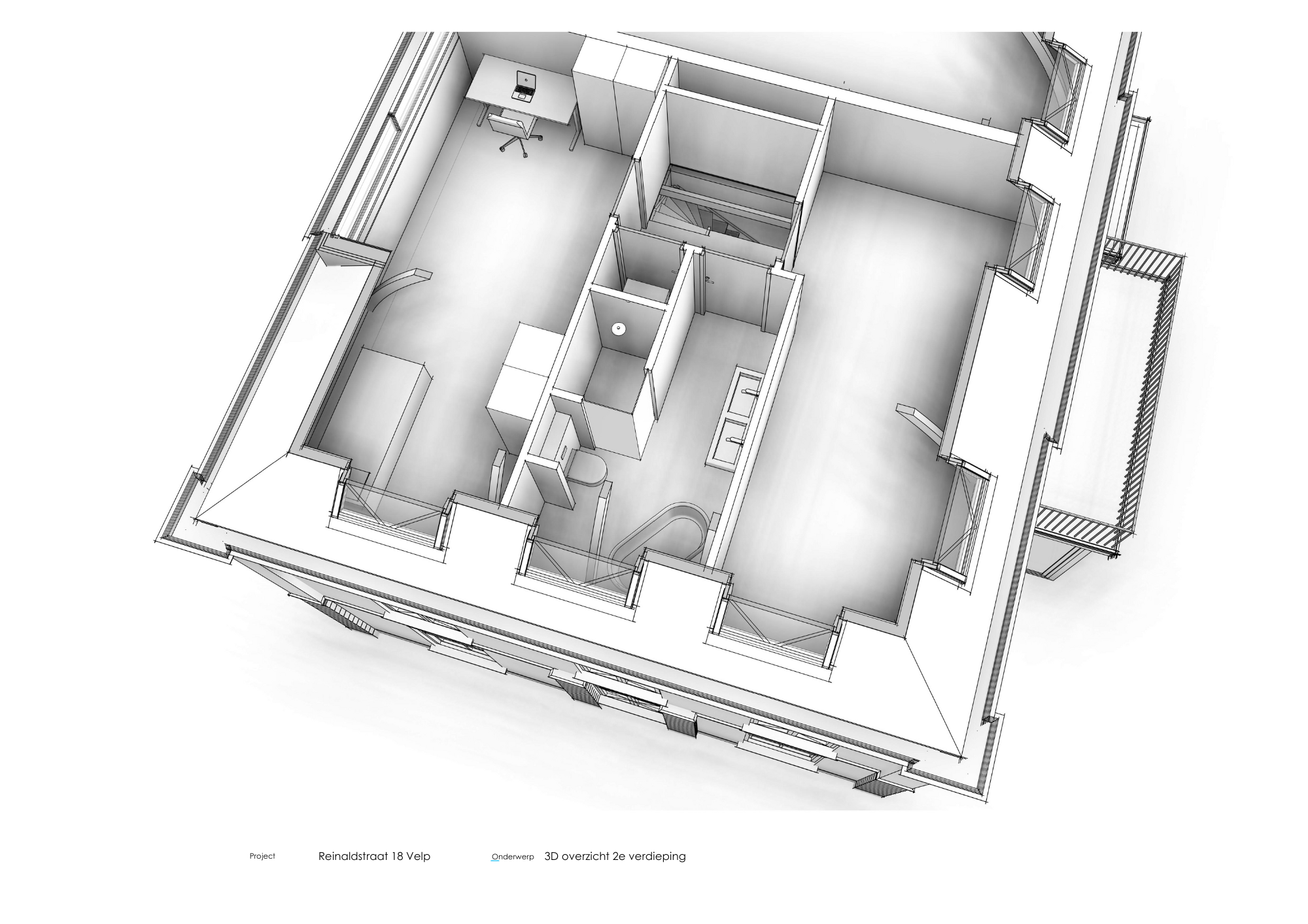
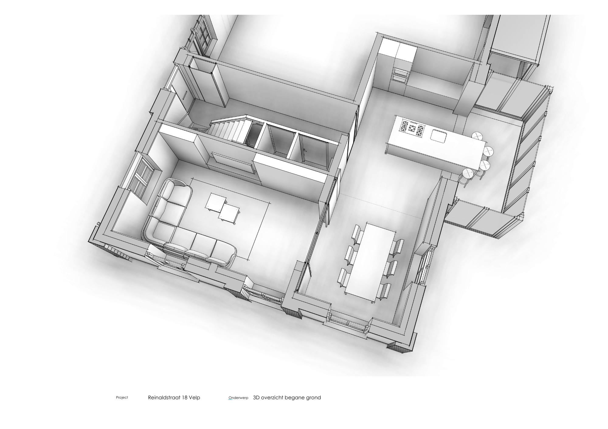
* 3D tekeningen in Revit en Archicad beschikbaar

* Architecten tekeningen voor een concept woonhuis

* Vergunning conform bouwtekeningen voor 3 appartementen (tekeningen en eisen zijn aanwezig).

Lees verder

Kenmerken

Overdracht

  • Status Beschikbaar
  • Vraagprijs € 585.000 k.k.
  • Aanvaarding In overleg

Bouwvorm & onderhoud

  • Soort object Halfvrijstaande woning
  • Soort woning Herenhuis
  • Bouwvorm Bestaande bouw
  • Bouwtype Woonhuis
  • Tuin kwaliteit Aan te leggen
  • Ligging Aan rustige weg, in woonwijk, in bosrijke omgeving

Parkeergelegenheid

  • Parkeerfaciliteiten Openbaar parkeren, op eigen terrein
  • Garage Parkeerplaats, geen garage
  • Parkeercapaciteit 3

Overig

  • Onderhoud binnen Matig
  • Onderhoud buiten Redelijk
  • Bijzonderheden Dubbele bewoning mogelijk, kluswoning
  • Permanente bewoning Ja
  • Huidig gebruik Gemengd-2
  • Huidige bestemming Gemengd-2

Indeling

  • Woonoppervlakte ± 219 m2
  • Inhoud ± 834 m3
  • Aantal kamers 2 kamers
  • Aantal woonlagen 2 woonlagen

Buitenruimte

  • Tuintype Voortuin, plaats
  • Kwaliteit tuin Aan te leggen

Energie

  • Energielabel G
  • Isolatie Dakisolatie, gedeeltelijk dubbel glas
  • Energie einddatum 20 apr 2030

Kadastrale gegevens

  • Gemeente Velp gelderland
  • Sectie H
  • Eigendom Volle eigendom, volle eigendom
  • Perceeloppervlakte 224 m2
  • Perceelnummer(s) 3795, 3796

Dak

  • Soort dak Samengesteld dak
  • Soort materiaal Pannen

Media

Informatie over de buurt

Burgerlijke staat

Gehuwd
Ongehuwd
Gescheiden
Verweduwd
  • Gehuwd
  • Ongehuwd
  • Gescheiden
  • Verweduwd

Leeftijd in gemeente

0 - 15 jaar
15 - 25 jaar
25-45 jaar
45 - 65 jaar
65+ jaar
  • 0 - 15 jaar
  • 15 - 25 jaar
  • 25 - 45 jaar
  • 45 - 65 jaar
  • 65+ jaar

Leeftijd buurtbewoners

0 - 15 jaar
15 - 25 jaar
25-45 jaar
45 - 65 jaar
65+ jaar
  • 0 - 15 jaar
  • 15 - 25 jaar
  • 25 - 45 jaar
  • 45 - 65 jaar
  • 65+ jaar

In de buurt

Filter

      Downloads

      Download hier de brochure van deze woning.

      Dit veld is bedoeld voor validatiedoeleinden en moet niet worden gewijzigd.
      bolletjes

      WILLEMSEN MAKELAARS ZOEKT VOOR U

      Maak een zoekopdracht aan

      makelaar Martijn Joyce