Verkocht onder voorbehoud

Lange Wal 104

Vraagprijs € 225.000 k.k.

  • 78 m2
  • 261 m3
  • 4 kamers

Omschrijving

Te koop: Ruim en licht maisonnette-appartement aan de Lange Wal 104, Arnhem

Ben je op zoek naar een woning die je volledig naar eigen smaak kunt moderniseren? Dan is deze maisonnettewoning aan de Lange Wal 104 in Arnhem absoluut het bekijken waard.
Separaat wordt er een garagebox in de onderbouw verkocht voor € 15.000,-

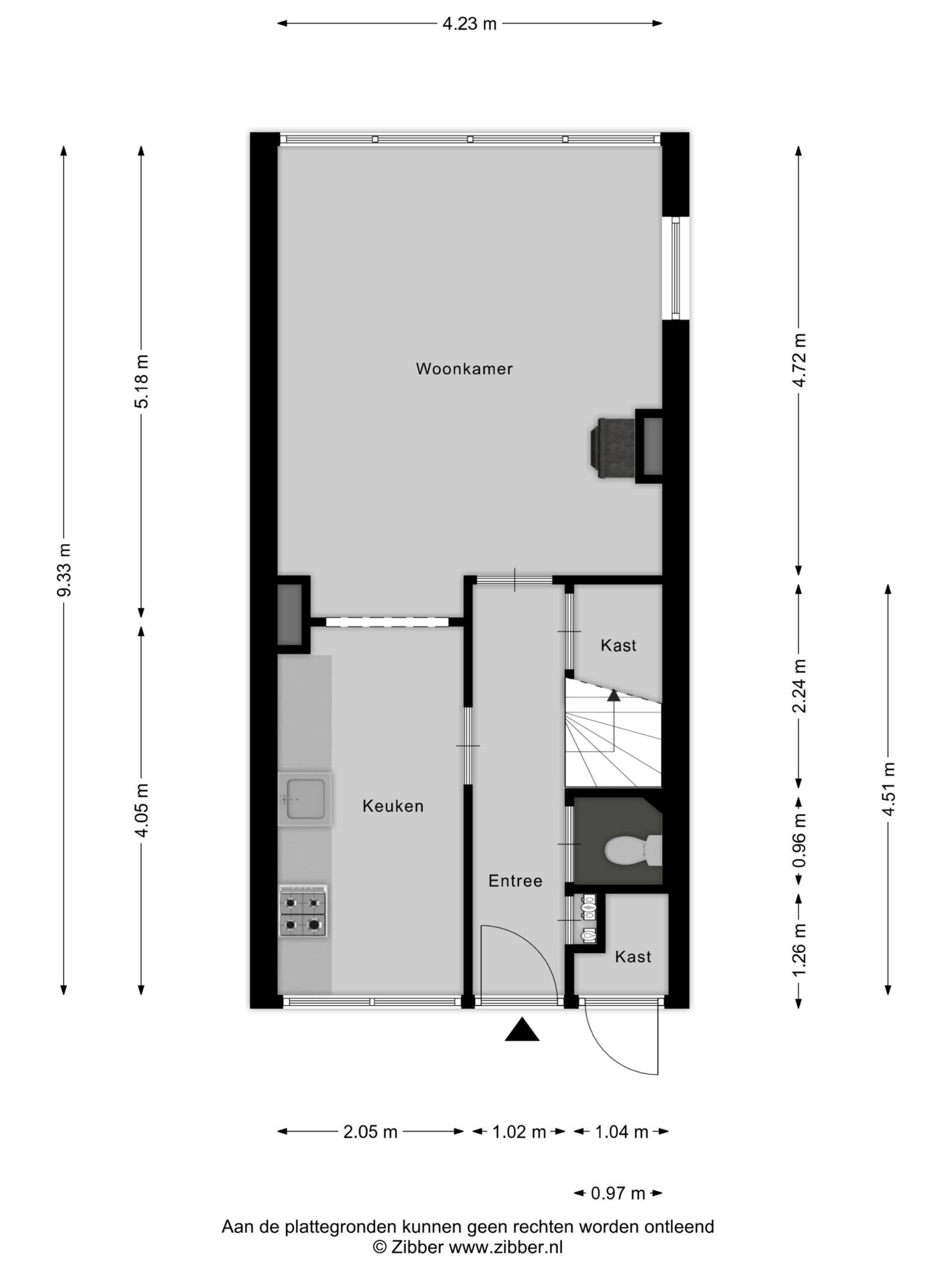
De woning is verdeeld over twee woonlagen. Via een centraal bellentableau tref je de trapopgang naar het appartement. Bij de galerij tref je naast de voordeur een opbergkast.
Via de hal van het appartement heb je toegang tot het toilet, de trap naar de…

Te koop: Ruim en licht maisonnette-appartement aan de Lange Wal 104, Arnhem

Ben je op zoek naar een woning die je volledig naar eigen smaak kunt moderniseren? Dan is deze maisonnettewoning aan de Lange Wal 104 in Arnhem absoluut het bekijken waard.
Separaat wordt er een garagebox in de onderbouw verkocht voor € 15.000,-

De woning is verdeeld over twee woonlagen. Via een centraal bellentableau tref je de trapopgang naar het appartement. Bij de galerij tref je naast de voordeur een opbergkast.
Via de hal van het appartement heb je toegang tot het toilet, de trap naar de tweede verdieping en het woongedeelte. De woonkamer is erg licht van binnen, dit komt doordat het appartement op de hoek is gelegen en beschikt over een extra raam.
Aansluitend vind je de basis opgestelde open keuken.
Deze verdieping vormt een fijne leefruimte met volop mogelijkheden om er een eigentijdse woonverdieping van te maken.

Op de tweede verdieping bevinden zich maar liefst drie slaapkamers, wat de woning zeer geschikt maakt voor gezinnen, starters of mensen die extra werk- of hobbyruimte zoeken.
De badkamer is voorzien van een douche, en wastafel met spiegel. Tevens is er vanuit de hal toegang tot een bergkast.

Tevens vind je in de onderbouw een ruime berging.

Kortom: een ruime maisonnette met een praktische indeling, drie slaapkamers en volop mogelijkheden om er jouw ideale thuis van te maken, gelegen op een centrale locatie in Arnhem.

Bijzonderheden;
- Ruime maisonnette woning
- Dubbel glas, kunststof en houten kozijnen
- Ideaal voor de handige klusser
- Garage te koop voor € 15.000,-
- Ruime berging in de onderbouw
- Nabij overdekte winkelcentrum voor de dagelijkse boodschappen
- Niet zelfbewoningsclausule van toepassing

Lees verder

Kenmerken

Overdracht

  • Status Verkocht onder voorbehoud
  • Vraagprijs € 225.000 k.k.
  • Aanvaarding In overleg

Bouwvorm & onderhoud

  • Bouwjaar 1962
  • Bouwvorm Bestaande bouw
  • Bouwtype Appartement
  • Appartement soort Maisonnette
  • Ligging Aan rustige weg, in woonwijk, vrij uitzicht, open ligging

Parkeergelegenheid

  • Parkeerfaciliteiten Openbaar parkeren
  • Garage Inpandig
  • Garage oppervlakte ± 9 m2

Overig

  • Onderhoud binnen Redelijk
  • Onderhoud buiten Goed
  • VVE Bijdrage € 143
  • Permanente bewoning Ja
  • Huidig gebruik Woonruimte
  • Huidige bestemming Woonruimte
  • VVE kosten 143

Indeling

  • Woonoppervlakte ± 78 m2
  • Inhoud ± 261 m3
  • Aantal kamers 4 kamers
  • Aantal slaapkamers 3 slaapkamers
  • Aantal woonlagen 2 woonlagen
  • Externe bergruimte ± 15 m2
  • Overige inpandige ruimte ± 1 m2

Bergruimte

  • Schuur / berging Box
  • Aantal schuren / bergingen 1
  • Voorzieningen Voorzien van elektra

Energie

  • Energielabel G
  • Isolatie Muurisolatie, dubbel glas, hr glas
  • Verwarming Gaskachels
  • Warm water Geiser eigendom
  • Energie einddatum 19 nov 2030

Voorzieningen

  • Voorzieningen Tv kabel, natuurlijke ventilatie

Kadastrale gegevens

  • Gemeente Arnhem
  • Sectie T
  • Eigendom Volle eigendom
  • Index 22

Dak

  • Soort dak Zadeldak
  • Soort materiaal Bitumineuze dakbedekking

Media

Informatie over de buurt

Burgerlijke staat

Gehuwd
Ongehuwd
Gescheiden
Verweduwd
  • Gehuwd
  • Ongehuwd
  • Gescheiden
  • Verweduwd

Leeftijd in gemeente

0 - 15 jaar
15 - 25 jaar
25-45 jaar
45 - 65 jaar
65+ jaar
  • 0 - 15 jaar
  • 15 - 25 jaar
  • 25 - 45 jaar
  • 45 - 65 jaar
  • 65+ jaar

Leeftijd buurtbewoners

0 - 15 jaar
15 - 25 jaar
25-45 jaar
45 - 65 jaar
65+ jaar
  • 0 - 15 jaar
  • 15 - 25 jaar
  • 25 - 45 jaar
  • 45 - 65 jaar
  • 65+ jaar

In de buurt

Filter

      Downloads

      Download hier de brochure van deze woning.

      Dit veld is bedoeld voor validatiedoeleinden en moet niet worden gewijzigd.
      bolletjes

      WILLEMSEN MAKELAARS ZOEKT VOOR U

      Maak een zoekopdracht aan

      makelaar Martijn Joyce