Verkocht

Hugo de Grootstraat 12

Vraagprijs € 445.000 k.k.

  • 115 m2
  • 409 m3
  • 4 kamers

Omschrijving

Instapklare tussenwoning met verrassend veel ruimte aan de Hugo de Grootstraat 12 – Arnhem

Ben je op zoek naar een sfeervolle, uitgebouwde woning met extra veel leefruimte én comfort? Dan is deze tussenwoning aan de Hugo de Grootstraat 12 in Arnhem absoluut een bezichtiging waard!

Deze goed onderhouden woning biedt alles wat je nodig hebt: een royale uitbouw aan de achterzijde, drie volwaardige slaapkamers, een ruime badkamer, een aparte wasruimte en een keurig verzorgde achtertuin op het westen. En dat is nog niet alles – de woning is voorzien van rolluiken rondom, wat zorgt voor optimale privacy, verduistering én extra…

Instapklare tussenwoning met verrassend veel ruimte aan de Hugo de Grootstraat 12 – Arnhem

Ben je op zoek naar een sfeervolle, uitgebouwde woning met extra veel leefruimte én comfort? Dan is deze tussenwoning aan de Hugo de Grootstraat 12 in Arnhem absoluut een bezichtiging waard!

Deze goed onderhouden woning biedt alles wat je nodig hebt: een royale uitbouw aan de achterzijde, drie volwaardige slaapkamers, een ruime badkamer, een aparte wasruimte en een keurig verzorgde achtertuin op het westen. En dat is nog niet alles – de woning is voorzien van rolluiken rondom, wat zorgt voor optimale privacy, verduistering én extra isolatie.

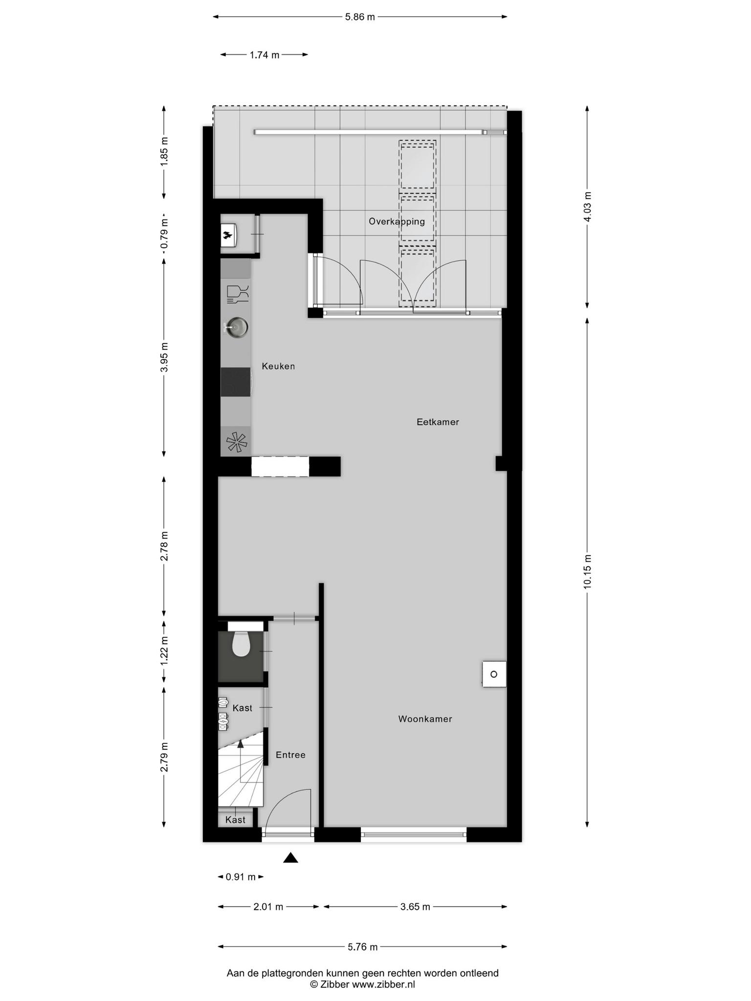
Indeling:

Begane grond:
Je komt binnen in een lichte hal met trapopgang en toegang tot het toilet. De uitgebouwde woonkamer is heerlijk ruim en biedt volop mogelijkheden voor een comfortabele zithoek én een royale eethoek. Dankzij de uitbouw aan de achterzijde is er een fijne, open sfeer ontstaan met veel natuurlijk licht. De open keuken is functioneel ingericht en bevindt zich aan de achterzijde van de woning.

Eerste verdieping:
Op de eerste verdieping bevinden zich twee ruime slaapkamers, een moderne badkamer met douche en wastafel, en een aparte wasruimte. Praktisch én comfortabel ingericht.

Tweede verdieping:
De zolderverdieping is een echte verrassing: hier vind je een grote dakkapel (middels nokverlenging) die de ruimte transformeert tot een volwaardige extra slaapkamer of werkkamer. De airco zorgt voor aangename temperaturen, zelfs tijdens warme zomerdagen.

Tuin:
Goed verzorgde achtertuin welke is gelegen op het westen. Tevens is er een veranda aan de woning gerealiseerd waardoor je ook met regenachtige dagen heerlijk buiten kunt genieten.

Pluspunten op een rij:

* Uitgebouwde woonkamer voor extra leefruimte
* 3 volwaardige slaapkamers
* Aparte wasruimte
* Groot dakkapel op zolder met airco
* Rolluiken rondom (voor comfort en veiligheid)
* Gelegen in een rustige, kindvriendelijke buurt
* Nabij winkels, scholen en uitvalswegen

Deze woning combineert comfort, ruimte én praktische indeling in een gezellige woonwijk van Arnhem. Perfect voor starters, jonge gezinnen of iedereen die graag instapklaar wil wonen!

Nieuwsgierig geworden? Neem snel contact met ons op voor een bezichtiging. Deze woning is sneller verkocht dan je denkt!

Lees verder

Kenmerken

Overdracht

  • Status Verkocht
  • Vraagprijs € 445.000 k.k.
  • Aanvaarding In overleg

Bouwvorm & onderhoud

  • Soort object Tussenwoning
  • Soort woning Eengezinswoning
  • Bouwjaar 1948
  • Bouwvorm Bestaande bouw
  • Bouwtype Woonhuis
  • Tuin kwaliteit Verzorgd
  • Tuin achterom 1
  • Ligging Aan rustige weg, in woonwijk, vrij uitzicht

Parkeergelegenheid

  • Parkeerfaciliteiten Openbaar parkeren
  • Garage Geen garage

Overig

  • Onderhoud binnen Goed
  • Onderhoud buiten Goed
  • Permanente bewoning Ja
  • Huidig gebruik Woonruimte
  • Huidige bestemming Woonruimte

Indeling

  • Woonoppervlakte ± 115 m2
  • Inhoud ± 409 m3
  • Aantal kamers 4 kamers
  • Aantal slaapkamers 3 slaapkamers
  • Aantal badkamers 1 badkamer
  • Badkamervoorzieningen Ligbad, toilet, douche, wastafel, wastafelmeubel
  • Aantal woonlagen 3 woonlagen
  • Externe bergruimte ± 5 m2

Buitenruimte

  • Hoofdtuin Achtertuin
  • Tuintype Achtertuin, voortuin
  • Oppervlakte hoofdtuin 69 m2
  • Ligging hoofdtuin West
  • Kwaliteit tuin Verzorgd

Bergruimte

  • Schuur / berging Vrijstaand hout
  • Aantal schuren / bergingen 1
  • Voorzieningen Voorzien van elektra

Energie

  • Energielabel C
  • Isolatie Dakisolatie, muurisolatie, dubbel glas, hr glas
  • Verwarming Cv ketel, pelletkachel
  • Warm water Cv ketel
  • C.V.-ketel type Gas
  • C.V.-ketel bouwjaar 2021
  • Energie einddatum 02 jun 2035

Voorzieningen

  • Voorzieningen Rolluiken, tv kabel, airconditioning, glasvezel kabel

Kadastrale gegevens

  • Gemeente Arnhem
  • Sectie Q
  • Eigendom Volle eigendom
  • Perceeloppervlakte 180 m2

Dak

  • Soort dak Zadeldak
  • Soort materiaal Pannen

Media

Informatie over de buurt

Burgerlijke staat

Gehuwd
Ongehuwd
Gescheiden
Verweduwd
  • Gehuwd
  • Ongehuwd
  • Gescheiden
  • Verweduwd

Leeftijd in gemeente

0 - 15 jaar
15 - 25 jaar
25-45 jaar
45 - 65 jaar
65+ jaar
  • 0 - 15 jaar
  • 15 - 25 jaar
  • 25 - 45 jaar
  • 45 - 65 jaar
  • 65+ jaar

Leeftijd buurtbewoners

0 - 15 jaar
15 - 25 jaar
25-45 jaar
45 - 65 jaar
65+ jaar
  • 0 - 15 jaar
  • 15 - 25 jaar
  • 25 - 45 jaar
  • 45 - 65 jaar
  • 65+ jaar

In de buurt

Filter

      Downloads

      Download hier de brochure van deze woning.

      Dit veld is bedoeld voor validatiedoeleinden en moet niet worden gewijzigd.
      bolletjes

      WILLEMSEN MAKELAARS ZOEKT VOOR U

      Maak een zoekopdracht aan

      makelaar Martijn Joyce