Beschikbaar

Hommelseweg 169 2

Vraagprijs € 509.000 k.k.

  • 92 m2
  • 324 m3
  • 4 kamers

Omschrijving

Sfeervol wonen in een uniek voormalig schoolgebouw - Hommelseweg 169-2, Arnhem

Welkom bij deze bijzondere en charmante tussenwoning, gelegen in een prachtig getransformeerd voormalig schoolgebouw. Een woning die karakter en modern wooncomfort moeiteloos combineert. Met twee volwaardige verdiepingen, een hoogwaardige afwerking en een energielabel A is dit een instapklare woning waar je zó in kunt trekken. Inclusief eigen parkeerplaats!

Licht, ruimte en hoogwaardige afwerking
De woning valt direct op door de stijlvolle afwerking en het gevoel van ruimte en licht.
De begane grond biedt een royale open leefruimte met een stijlvolle visgraatvloer en comfortabele vloerverwarming. De moderne…

Sfeervol wonen in een uniek voormalig schoolgebouw - Hommelseweg 169-2, Arnhem

Welkom bij deze bijzondere en charmante tussenwoning, gelegen in een prachtig getransformeerd voormalig schoolgebouw. Een woning die karakter en modern wooncomfort moeiteloos combineert. Met twee volwaardige verdiepingen, een hoogwaardige afwerking en een energielabel A is dit een instapklare woning waar je zó in kunt trekken. Inclusief eigen parkeerplaats!

Licht, ruimte en hoogwaardige afwerking
De woning valt direct op door de stijlvolle afwerking en het gevoel van ruimte en licht.
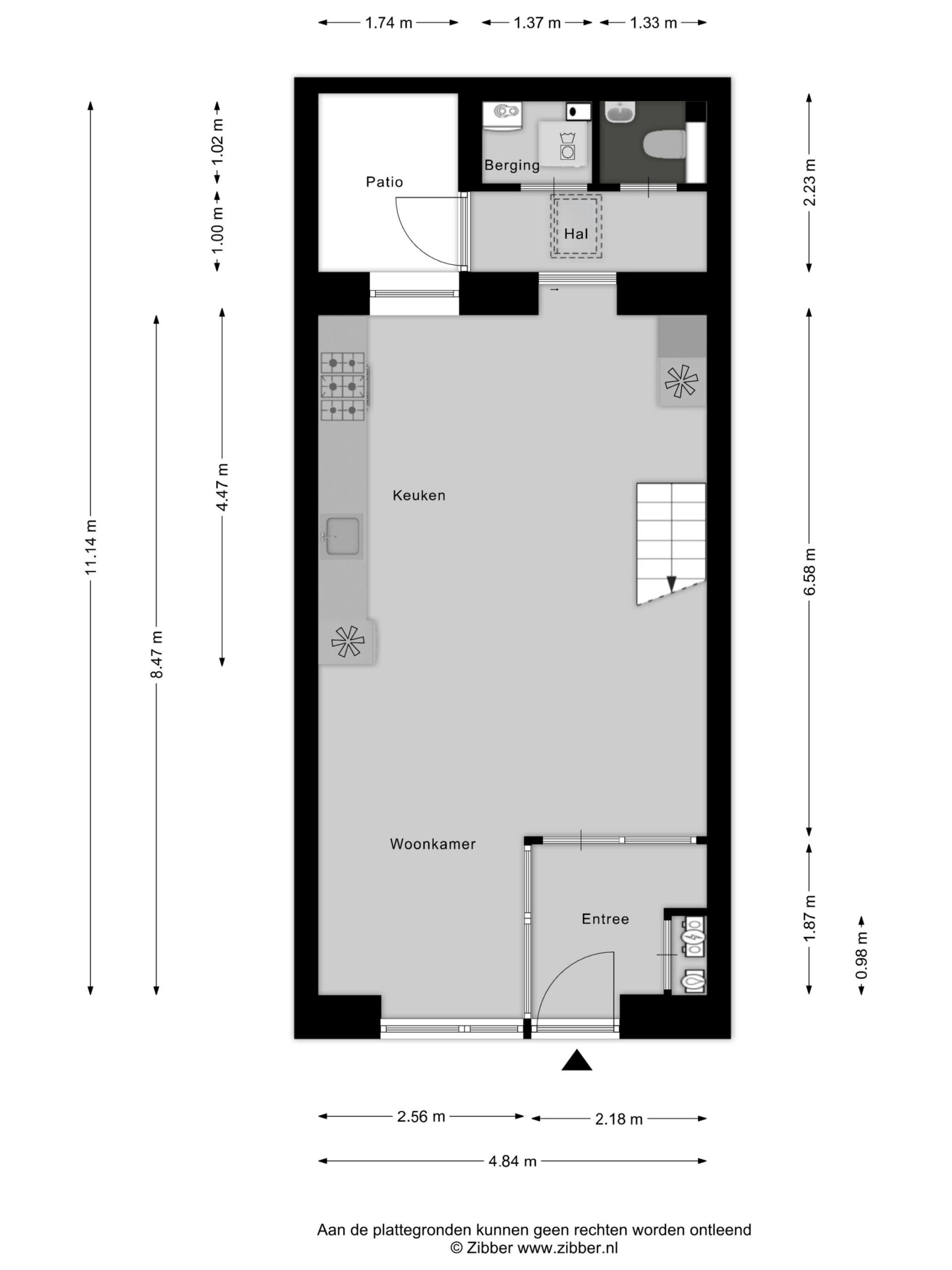
De begane grond biedt een royale open leefruimte met een stijlvolle visgraatvloer en comfortabele vloerverwarming. De moderne open keuken is uitgerust met hoogwaardige inbouwapparatuur (Smeg, Bosch en Quooker) en beschikt over een sfeervolle coffee corner. De woning is in 2017 gerealiseerd en in 2023/2024 volledig gemoderniseerd. Aan de achterzijde bevindt zich een hal met apart toilet en een praktische ruimte voor de wasmachine, droger en cv-installatie. Vanuit hier bereik je tevens een knusse, beschutte patio; een fijne plek om even tot rust te komen.

Aan de voorzijde geniet je van een prachtig verzorgde tuin op het zuiden, waar je heerlijk kunt ontspannen in de zon. Perfect ingericht met ruimte voor een loungebank en een zithoek.

Op de eerste verdieping bevinden zich drie slaapkamers en een badkamer, die bereikbaar zijn via de overloop. Ideaal voor gezinnen of voor wie een extra werk- of hobbyruimte zoekt. De moderne badkamer is compleet uitgerust met een tweede toilet, inloopdouche en een wastafel met meubel, strak en verzorgd.

De woning is volledig geïsoleerd en voorzien van energielabel A, wat zorgt voor een comfortabel en energiezuinig leefklimaat.

Daarnaast profiteer je van een afgesloten binnenterrein met slagbomen, waar je beschikt over een eigen, ruime parkeerplaats. Ook is er een separate berging aanwezig voor extra opslagruimte. Het geheel ligt aan een fraai aangelegd binnenplein met een groen parkje, wat zorgt voor een rustige en prettige woonomgeving.

Ligging
De woning is gelegen aan een rustig, sfeervol en autoluw hofje, met alle voorzieningen binnen handbereik. Binnen enkele minuten bereik je het bruisende centrum van Arnhem, met een breed aanbod aan winkels, gezellige cafés en fijne koffietentjes. Ook het prachtige park Sonsbeek en Klarenbeek ligt op korte afstand, waar je kunt genieten van natuur, wandelroutes en ontspanning. Een perfecte combinatie van rust, groen en stedelijke levendigheid. Station Arnhem Centraal en Station Velperpoort zijn met enkele minuten aan te fietsen. De A12 en A325 zijn beide binnen circa 10 minuten te bereiken. Een oase van rust midden in de stad.

Buitenruimte & extra’s:
- Verzorgde tuin op het zuiden
- Extra patio aan de achterzijde
- Eigen parkeerplaats, op afgesloten terrein met slagbomen (uniek in de wijk!)
- Separate berging
- Een unieke kans om te wonen in een karakteristiek pand met alle gemakken van nu!
- De binnenstad van Arnhem, parken, uitvalswegen en stations zijn binnen enkele minuten te bereiken
- Energielabel A
- Instapklaar en hoogwaardig afgewerkt
- Kosten voor het onderhoud van het mandelig terrein € 60,- per maand
- Kosten berging € 20,- per maand

Een woning als deze komt zelden op de markt. Ervaar zelf de unieke sfeer en plan een bezichtiging!

Lees verder

Kenmerken

Overdracht

  • Status Beschikbaar
  • Vraagprijs € 509.000 k.k.
  • Aanvaarding In overleg

Bouwvorm & onderhoud

  • Soort object Tussenwoning
  • Soort woning Eengezinswoning
  • Bouwjaar 1901
  • Bouwjaar toelichting 2017 getransformeerd naar wonen
  • Bouwvorm Bestaande bouw
  • Bouwtype Woonhuis
  • Tuin kwaliteit Fraai aangelegd
  • Ligging Aan rustige weg, vrij uitzicht, beschutte ligging

Parkeergelegenheid

  • Parkeerfaciliteiten Op afgesloten terrein
  • Garage Geen garage

Overig

  • Onderhoud binnen Goed tot uitstekend
  • Onderhoud buiten Goed tot uitstekend
  • Permanente bewoning Ja
  • Huidig gebruik Woonruimte
  • Huidige bestemming Woonruimte

Indeling

  • Woonoppervlakte ± 92 m2
  • Inhoud ± 324 m3
  • Aantal kamers 4 kamers
  • Aantal slaapkamers 3 slaapkamers
  • Aantal badkamers 1 badkamer
  • Badkamervoorzieningen Toilet, wastafel, wastafelmeubel, inloopdouche
  • Aantal woonlagen 2 woonlagen
  • Externe bergruimte ± 4 m2

Buitenruimte

  • Hoofdtuin Voortuin
  • Tuintype Voortuin, patio atrium
  • Oppervlakte hoofdtuin 26 m2
  • Ligging hoofdtuin Zuid
  • Kwaliteit tuin Fraai aangelegd

Energie

  • Energielabel A
  • Isolatie Dakisolatie, muurisolatie, vloerisolatie, volledig geisoleerd
  • Verwarming Cv ketel, vloerverwarming gedeeltelijk
  • Warm water Cv ketel
  • C.V.-ketel type Gas
  • C.V.-ketel bouwjaar 2017
  • Energie einddatum 21 okt 2032

Voorzieningen

  • Voorzieningen Mechanische ventilatie, glasvezel kabel, natuurlijke ventilatie

Kadastrale gegevens

  • Gemeente Arnhem
  • Sectie N
  • Eigendom Volle eigendom
  • Perceeloppervlakte 89 m2

Dak

  • Soort dak Plat dak

Media

Informatie over de buurt

Burgerlijke staat

Gehuwd
Ongehuwd
Gescheiden
Verweduwd
  • Gehuwd
  • Ongehuwd
  • Gescheiden
  • Verweduwd

Leeftijd in gemeente

0 - 15 jaar
15 - 25 jaar
25-45 jaar
45 - 65 jaar
65+ jaar
  • 0 - 15 jaar
  • 15 - 25 jaar
  • 25 - 45 jaar
  • 45 - 65 jaar
  • 65+ jaar

Leeftijd buurtbewoners

0 - 15 jaar
15 - 25 jaar
25-45 jaar
45 - 65 jaar
65+ jaar
  • 0 - 15 jaar
  • 15 - 25 jaar
  • 25 - 45 jaar
  • 45 - 65 jaar
  • 65+ jaar

In de buurt

Filter

      Downloads

      Download hier de brochure van deze woning.

      Dit veld is bedoeld voor validatiedoeleinden en moet niet worden gewijzigd.
      bolletjes

      WILLEMSEN MAKELAARS ZOEKT VOOR U

      Maak een zoekopdracht aan

      makelaar Martijn Joyce