Stoer en veelzijdig. Deze kenmerken komen samen in dit karakteristieke vrijstaande huis midden in het dorp Rheden. Het huis heeft een rijke historie. Het werd in 1904 gebouwd als pension en was meer dan 40 jaar in gebruik als doktershuis, met praktijk aan huis. In 2009 is het praktijkdeel omgetoverd tot een instapklaar en zelfstandig te bewonen appartement, ideaal voor zorgbehoevende ouders, kinderen op zoek naar woonruimte, B&B of voor een bedrijf aan huis.
 Dankzij de woon/werk bestemming zijn er vele mogelijkheden.
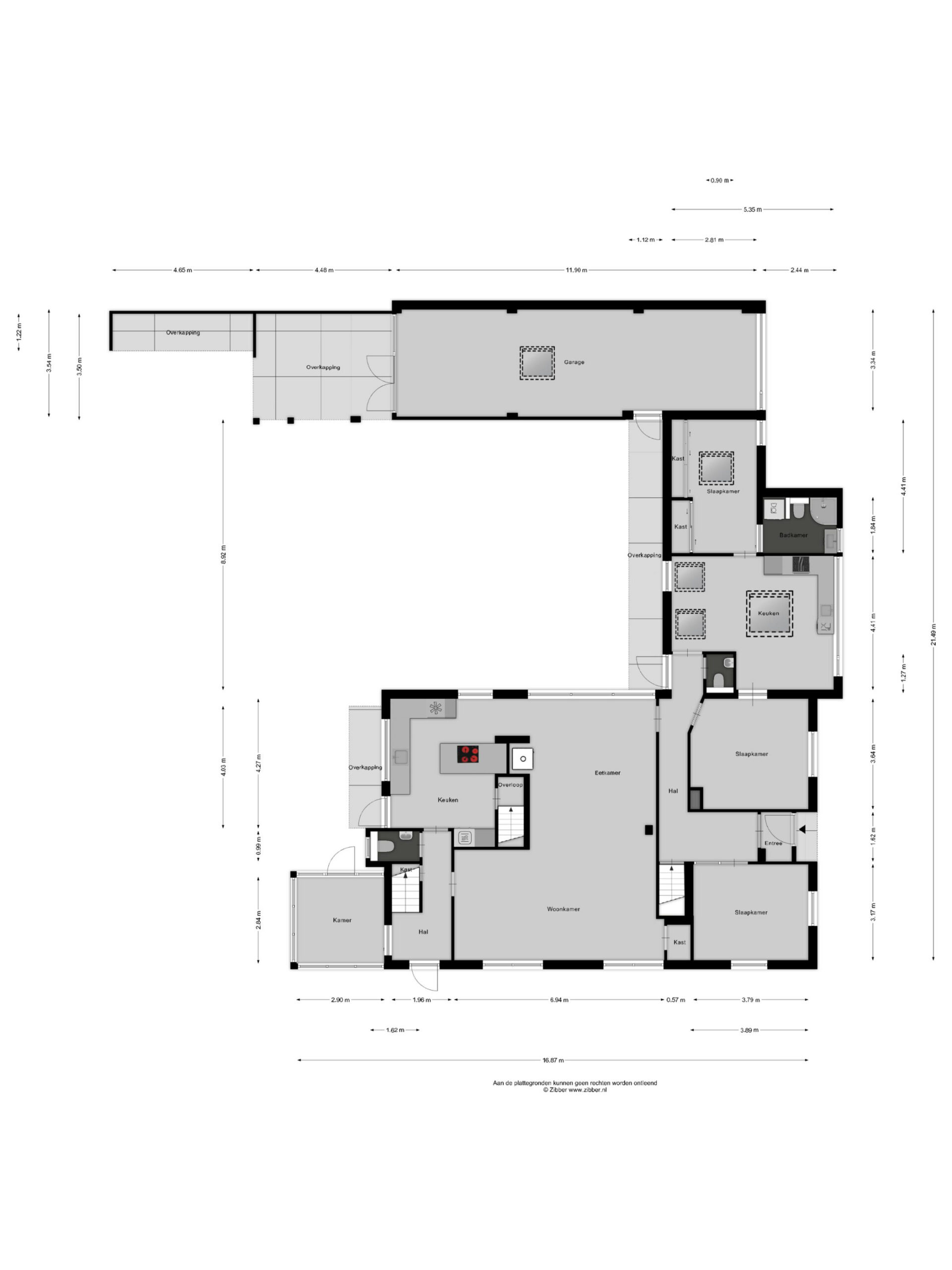
Woonoppervlakte: 314m2. Inhoud: 1450m3. Perceel: 571m2.
Bijzonderheden:
 - Royale vrijstaande woning met diverse mogelijkheden door…
Stoer en veelzijdig. Deze kenmerken komen samen in dit karakteristieke vrijstaande huis midden in het dorp Rheden. Het huis heeft een rijke historie. Het werd in 1904 gebouwd als pension en was meer dan 40 jaar in gebruik als doktershuis, met praktijk aan huis. In 2009 is het praktijkdeel omgetoverd tot een instapklaar en zelfstandig te bewonen appartement, ideaal voor zorgbehoevende ouders, kinderen op zoek naar woonruimte, B&B of voor een bedrijf aan huis.
Dankzij de woon/werk bestemming zijn er vele mogelijkheden.
Woonoppervlakte: 314m2. Inhoud: 1450m3. Perceel: 571m2.
Bijzonderheden:
- Royale vrijstaande woning met diverse mogelijkheden door het zelfstandige appartement;
- 8 (slaap)kamers;
- 3 badkamers;
- Dubbele garage voor 2 auto’s, fietsen, werkbank etc. Krachtstroom, waterkraan en elektrisch bedienbare kanteldeur;
- Besloten ruime en onderhoudsvriendelijk aangelegde tuin met waterput en pomp, een zonnig
  terras en een sfeervolle overdekte veranda;
- Geweldige locatie van het huis, met alle dagelijkse boodschappen op loopafstand.
- Ligging van Rheden tussen de Veluwezoom en de IJssel én aan de voet van de Posbank is uniek.
Indeling van het huis:
Het huis heeft haar ingang aan de Arnhemseweg. U komt binnen in de gang met links de zonnige serre. Deze is in gebruik als tuinkamer (deur naar de tuin) en biedt mogelijkheid als work-out ruimte of bijkeuken. Onder de trapopgang naar de 1e verdieping is een ruime trapkast voor alle schoonmaakspullen. In de gang zit voorts een separaat toilet. De werkelijk prachtige woonkeuken met airco, eetbar, zicht op de tuin en veel werkruimte beschikt over diverse inbouwapparatuur: inductiekookplaat met geïntegreerde afzuiging, vaatwasser, Quooker, 2 ovens (stoomoven/oven en combimagnetron), koelkast en vriezer . Hier zit ook de ingang naar de provisiekelder (stahoogte).
De keuken staat in verbinding met de zeer royale woonkamer, met grote raampartijen en openslaande deuren naar de tuin.
De woonkamer beschikt over een massieve parketvloer, houtkachel met katalysator en elektrostatisch fijnstoffilter, sfeervolle details en mooi uitzicht op de achtertuin. Door de raampartijen en de plafonds (op de hele begane grond) van meer dan 3 meter hoog is er een prachtige lichtinval. 
Eerste verdieping:
En wat een verdieping is dit! De gang van 10 meter lang geeft toegang tot 4 slaapkamers. De master slaapkamer is enorm door de samenvoeging van 2 slaapkamers (eenvoudig weer te splitsen) en heeft een vaste kastenwand, airco en veel licht. Via de hal toegang tot een separaat toilet en badkamer. De badkamer is modern uitgevoerd en bestaat uit een ligbad, badkamermeubel met spiegelkast en douche. Ten slotte bevindt zich op deze verdieping nog een extra badkamer. Deze is functioneel en heeft een wastafel en douche.
Tweede verdieping:
Royale bergzolder met originele dakconstructie. Achterin is het stookgedeelte voor de warmtepompboiler en de cv-ketel van de hybride warmtepompinstallatie. Het dak is geïsoleerd. Op het dak liggen 12 zonnepanelen . 
Het hele huis is voorzien van dubbel glas.
Indeling van het appartement (de voormalige praktijk):
Via de statige voordeur aan de Groenestraat komt u via de hal in de gang die direct links toegang geeft tot een lichte hobby/logeerkamer en een kelder (stahoogte). Wanneer u verder doorloopt ziet u rechts de deur naar de bibliotheek/zitkamer waar een knus gaskacheltje en alle boeken om u heen ervoor zorgen dat u daar ’s avonds en in de winter heerlijk zit. Naast de bibliotheek bevindt zich een separaat toilet. Vanuit de gang heeft u toegang tot de tuin en het (hoofd)huis.
Het appartement beschikt over een woonkeuken, slaapkamer en badkamer. De woonkeuken beschikt over een magnetron/ovencombinatie, een koel/vriescombinatie, gasfornuis, vaatwasser en bergruimte. Er is voldoende ruimte voor een eettafel en een gezellig zitje met zicht op de tuin. Vanuit de keuken is er toegang tot de slaapkamer en badkamer. De badkamer is voorzien van een inloopdouche, toilet, badkamermeubel en opstelplaats voor de wasmachine en droger. De slaapkamer heeft enorm veel bergruimte door de ruim 5 meter brede ingebouwde kastenwand.
Het hele appartement is voorzien van dubbel glas, heeft een zelfstandige verwarmingsinstallatie en airco in de keuken en slaapkamer. Het platte dak en de lichtkoepels van de aanbouw en de garage zijn in 2022 vernieuwd.
Tuin:
De prachtige achtertuin heeft een zonnig terras en een overdekte veranda (voorzien van terras-verwarming en een ventilator), waardoor u, ook bij wisselend weer, de hele dag kunt genieten van de tuin. De tuin is fraai aangelegd met groene borders die zorgen voor een natuurlijke uitstraling. Dankzij een aantal fraaie leilindes geniet u veel privacy in uw tuin.
Ook is er een “achterom” met afsluitbare poort.
De dubbele garage (met elektrisch bedienbare kanteldeur) is bereikbaar vanuit de tuin.
Locatie:
Rheden is per auto goed bereikbaar door de ligging aan de A348, die aansluit op verkeersplein Velperbroek (A12), op ca. 5 minuten rijafstand. De gezellige binnensteden van Arnhem, Zutphen en Nijmegen zijn daardoor snel en makkelijk bereikbaar per auto. Ook het openbaar vervoer is goed geregeld: Rheden heeft een eigen treinstation en busverbindingen met de omliggende steden. Rheden biedt een scala aan voorzieningen, zoals supermarkten, winkels, scholen, sportverenigingen en een buitenzwembad.
Maar het “Unique Selling Point” van het wonen in Rheden is de fantastische ligging van het dorp aan de Veluwezoom tussen de Posbank en de IJssel. In de bossen en op de hei kunt u eindeloos fietsen en wandelen (doordat u zo dichtbij woont kunt u het zo uitkienen dat u het gebied vrijwel voor u alleen heeft!). Ook het watersportgebied "Rhederlaag" ligt op loopafstand. Naar een strandje, zeilen, een ijsje halen of uit eten? Het kan er allemaal.
 
                         
                         
                         
                         
                         
                         
                         
                         
                         
                         
                         
                         
                         
                         
                         
                         
                         
                         
                         
                         
                         
                         
                         
                         
                         
                         
                         
                         
                         
                         
                         
                         
                         
                         
                         
                         
                         
                         
                         
                         
                         
                         
                         
                         
                         
                         
                         
                         
                         
                         
                         
                         
                         
                         
                         
                         
                         
                         
                         
                         
                         
                         
                         
                         
                         
                         
                                 
                                             
                                             
                                             
                                             
                                             
                                             
                                             
                                             
                                             
                                             
                                             
                                             
                                             
                                             
                                             
                                             
                                             
                                             
                                             
                                             
                                             
                                             
                                             
                                             
                                             
                                             
                                             
                                             
                                             
                                             
                                             
                                             
                                             
                                             
                                             
                                             
                                             
                                             
                                             
                                             
                                             
                                             
                                             
                                             
                                             
                                             
                                             
                                             
                                             
                                             
                                             
                                             
                                             
                                             
                                             
                                             
                                             
                                             
                                             
                                             
                                             
                                             
                                             
                                             
                                             
                             
                             
                             
                         
                         
                         
                                     
                    