Beschikbaar

Gelderse Rooslaan 277

Vraagprijs € 725.000 k.k.

  • 122 m2
  • 403 m3
  • 3 kamers

Omschrijving

Wonen op hoog niveau, met uitzicht over de Uiterwaarden en de stad aan je voeten. Welkom in NELSON, dé woontoren van Arnhem.

Op de 14e verdieping van deze iconische toren bevindt zich dit prachtige nieuwbouwappartement, dat direct beschikbaar is. Hier hoef je niet te wachten op bouwtijd: de woning is snel te aanvaarden en biedt de kans om het geheel naar eigen smaak af te werken, aangezien het appartement casco wordt opgeleverd in de huidige staat.

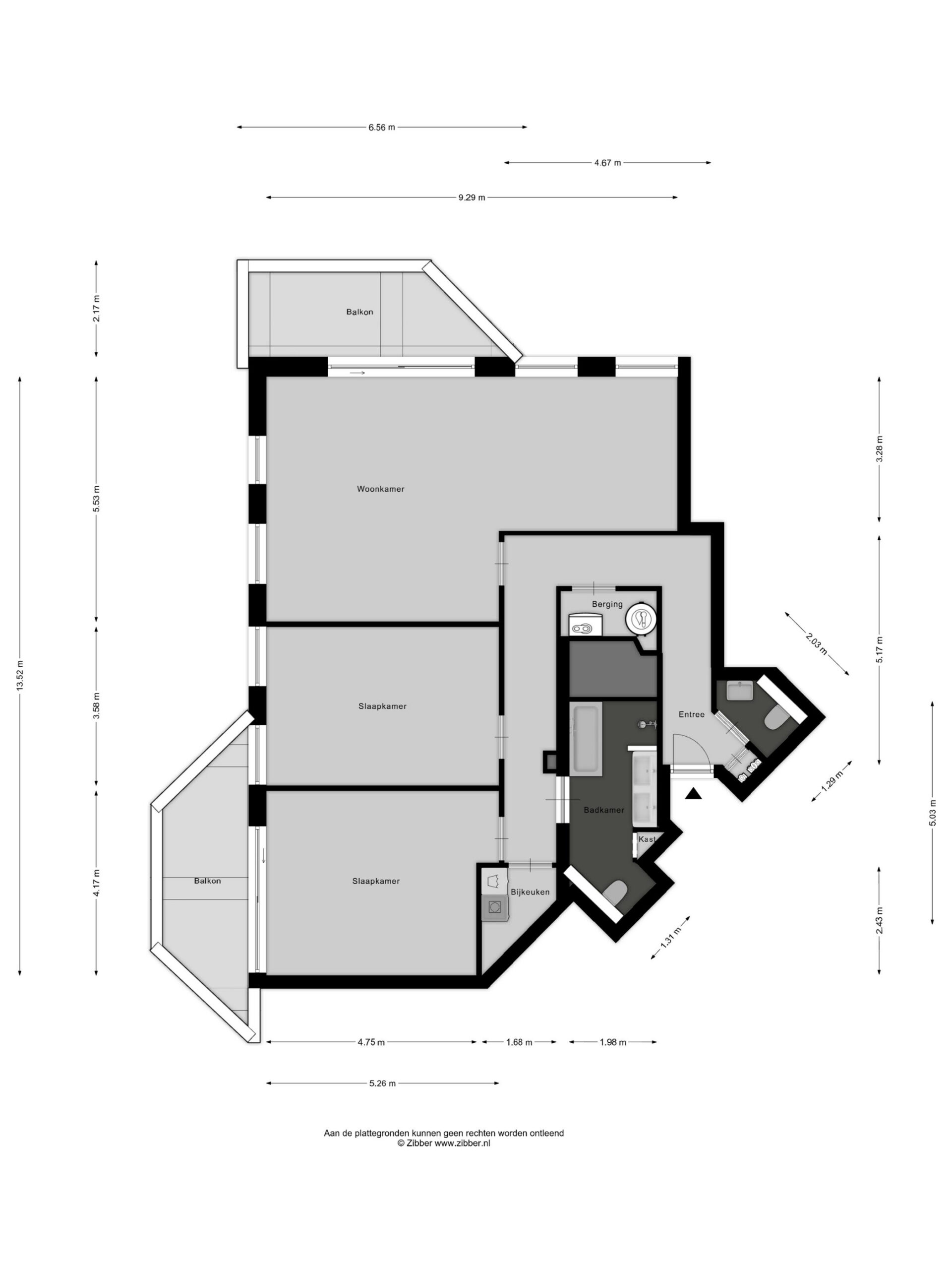
Bij binnenkomst kom je in de entree met hal, waar zich de meterkast, het separate toilet en de technische ruimte bevinden. In deze ruimte…

Wonen op hoog niveau, met uitzicht over de Uiterwaarden en de stad aan je voeten. Welkom in NELSON, dé woontoren van Arnhem.

Op de 14e verdieping van deze iconische toren bevindt zich dit prachtige nieuwbouwappartement, dat direct beschikbaar is. Hier hoef je niet te wachten op bouwtijd: de woning is snel te aanvaarden en biedt de kans om het geheel naar eigen smaak af te werken, aangezien het appartement casco wordt opgeleverd in de huidige staat.

Bij binnenkomst kom je in de entree met hal, waar zich de meterkast, het separate toilet en de technische ruimte bevinden. In deze ruimte zijn onder andere de warmtepomp en het ventilatiesysteem opgesteld. Vanuit de hal stap je de royale woonkamer binnen. Hier valt direct de hoeveelheid licht op dankzij de grote pui met schuifdeur, die zorgt voor een mooie verbinding met het balkon.

De open keuken sluit naadloos aan op de woonkamer en biedt volop mogelijkheden om deze geheel naar eigen wens in te richten. Het appartement beschikt over twee riante slaapkamers, waarvan één directe toegang heeft tot een tweede balkon. Daarnaast is er een praktische bergruimte met aansluiting voor de wasmachine.

De badkamer is ruim opgezet en biedt plaats aan een ligbad, inloopdouche, wastafel en een tweede toilet. Ook hier heb je de mogelijkheid om de afwerking volledig naar eigen smaak te realiseren.

Met maar liefst twee balkons van ieder circa 11 m² op het zuidwesten geniet je hier optimaal van de hoogte, het uitzicht en de zon. Of je nu rustig wilt wakker worden met een kop koffie of de dag afsluit met uitzicht over de stad en de uiterwaarden, dit appartement biedt het allemaal.

Het appartement is volledig voorzien van vloerverwarming, wat zorgt voor een aangenaam en gelijkmatig wooncomfort in elk seizoen. Daarnaast zijn er zonwerende screens aanwezig en beschikt de woning over een eigen parkeerplaats in de afgesloten parkeerkelder, inclusief voorbereidingen voor het opladen van een elektrische auto, en een eigen berging.

NELSON zelf is een markante verschijning in Arnhem. Stoer, statig en eigentijds rijst de toren op aan de voet van de Mandelabrug, met een ligging die moeilijk te overtreffen is. Aan de ene kant de dynamiek van de stad, aan de andere kant de rust en ruimte van de natuur. Op loopafstand liggen de uiterwaarden van Meinerswijk, een prachtig natuurgebied waar je heerlijk kunt wandelen, sporten of ontspannen.

De woontoren staat voor comfortabel en duurzaam wonen. Het appartement is gasloos, voorzien van een warmtepomp en beschikt over een energielabel A+++. De Vereniging van Eigenaren is gezond en actief, wat bijdraagt aan een zorgeloze woonervaring.

Hier woon je hoog, vrij en met alles binnen handbereik. Een plek waar stad en natuur samenkomen en waar je elke dag geniet van uitzicht, licht en comfort.

Bijzonderheden;
- Eigen parkeerplaats
- Gezonde VvE
- Gezamenlijke fietsenstalling
- Eigen berging in onderbouw
- Nabij natuurgebied Meinerswijk

Lees verder

Kenmerken

Overdracht

  • Status Beschikbaar
  • Vraagprijs € 725.000 k.k.
  • Aanvaarding In overleg

Bouwvorm & onderhoud

  • Bouwjaar 2024
  • Bouwvorm Bestaande bouw
  • Bouwtype Appartement
  • Appartement soort Portiekflat
  • Ligging In woonwijk, vrij uitzicht

Parkeergelegenheid

  • Parkeerfaciliteiten Op eigen terrein
  • Garage Parkeerkelder, parkeerplaats

Overig

  • Onderhoud binnen Uitstekend
  • Onderhoud buiten Uitstekend
  • Bijzonderheden Toegankelijk voor ouderen, toegankelijk voor minder validen
  • Permanente bewoning Ja
  • Huidig gebruik Woonruimte
  • Huidige bestemming Woonruimte

Indeling

  • Woonoppervlakte ± 122 m2
  • Inhoud ± 403 m3
  • Aantal kamers 3 kamers
  • Aantal slaapkamers 2 slaapkamers
  • Aantal badkamers 1 badkamer
  • Badkamervoorzieningen Ligbad, toilet, douche, wastafel
  • Aantal woonlagen 1 woonlagen
  • Externe bergruimte ± 7 m2

Bergruimte

  • Schuur / berging Box
  • Aantal schuren / bergingen 1
  • Voorzieningen Voorzien van elektra

Energie

  • Energielabel A+++
  • Isolatie Volledig geisoleerd
  • Verwarming Vloerverwarming geheel, warmtepomp
  • Warm water Elektrische boiler eigendom
  • Energie einddatum 31 jan 2035

Voorzieningen

  • Voorzieningen Schuifpui, balansventilatie

Kadastrale gegevens

  • Gemeente Arnhem
  • Sectie E
  • Eigendom Volle eigendom
  • Index 87

Media

Informatie over de buurt

Burgerlijke staat

Gehuwd
Ongehuwd
Gescheiden
Verweduwd
  • Gehuwd
  • Ongehuwd
  • Gescheiden
  • Verweduwd

Leeftijd in gemeente

0 - 15 jaar
15 - 25 jaar
25-45 jaar
45 - 65 jaar
65+ jaar
  • 0 - 15 jaar
  • 15 - 25 jaar
  • 25 - 45 jaar
  • 45 - 65 jaar
  • 65+ jaar

Leeftijd buurtbewoners

0 - 15 jaar
15 - 25 jaar
25-45 jaar
45 - 65 jaar
65+ jaar
  • 0 - 15 jaar
  • 15 - 25 jaar
  • 25 - 45 jaar
  • 45 - 65 jaar
  • 65+ jaar

In de buurt

Filter

      Downloads

      Download hier de brochure van deze woning.

      Dit veld is bedoeld voor validatiedoeleinden en moet niet worden gewijzigd.
      bolletjes

      WILLEMSEN MAKELAARS ZOEKT VOOR U

      Maak een zoekopdracht aan

      makelaar Martijn Joyce