Beschikbaar

Gasthuislaan 87

Vraagprijs € 298.000 k.k.

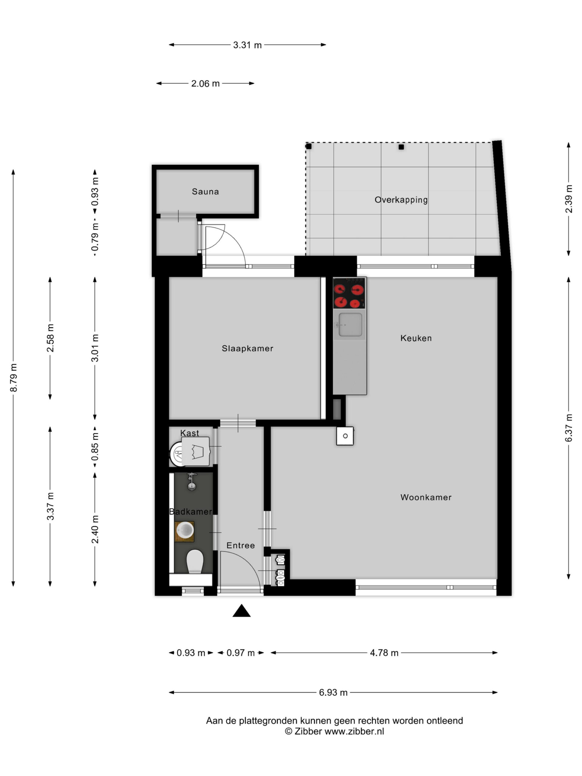
  • 45 m2
  • 158 m3
  • 2 kamers

Omschrijving

Volledig gerenoveerde, energiezuinige bungalow op toplocatie bij park Biljoen

Ben je op zoek naar een instapklare, moderne bungalow op een prachtige, rustige locatie? Dan is Gasthuislaan 87 in Velp precies wat je zoekt! Deze sfeervolle woning is recent volledig gerenoveerd en gemoderniseerd, waarbij aan alles is gedacht: comfort, duurzaamheid én een optimale indeling.

Hoogwaardige renovatie

Van binnen is deze woning tot in de puntjes aangepakt. Zo is er een nieuwe, stijlvolle keuken geplaatst, de badkamer is volledig vernieuwd, en de indeling is slim herzien voor een ruimtelijker en praktischer leefcomfort. Elk detail klopt – je hoeft alleen nog maar je…

Volledig gerenoveerde, energiezuinige bungalow op toplocatie bij park Biljoen

Ben je op zoek naar een instapklare, moderne bungalow op een prachtige, rustige locatie? Dan is Gasthuislaan 87 in Velp precies wat je zoekt! Deze sfeervolle woning is recent volledig gerenoveerd en gemoderniseerd, waarbij aan alles is gedacht: comfort, duurzaamheid én een optimale indeling.

Hoogwaardige renovatie

Van binnen is deze woning tot in de puntjes aangepakt. Zo is er een nieuwe, stijlvolle keuken geplaatst, de badkamer is volledig vernieuwd, en de indeling is slim herzien voor een ruimtelijker en praktischer leefcomfort. Elk detail klopt – je hoeft alleen nog maar je spullen te pakken.

Energiezuinig en toekomstbestendig

De woning is grondig geïsoleerd: met extra spouw- en binnenmuurisolatie, vloerisolatie, bodemisolatie, dakisolatie én dubbel glas. Dankzij de 13 zonnepanelen en de elektrische infrarood vloerverwarming is de woning bovendien volledig elektrisch en klaar voor de toekomst.

Buitenleven in het groen

De achtertuin is heerlijk privé, voorzien van een achterom, en grenst direct aan het prachtige park van Kasteel Biljoen een unieke plek om te wandelen, ontspannen of sporten, letterlijk om de hoek van je woning. De Veluwe en de rivier de IJssel zijn op loopafstand te bereiken en de prachtig glooiende Posbank, het waterrijke Lathum en het bruisende centrum van Arnhem binnen 10 minuten aan te rijden. Tevens vind je in de directe nabijheid het zwembad Biljoenbad, een winkelcentrum aan het Churchillplein een sportschool en het treinstation.

Pluspunten op een rij:

* Geheel gerenoveerd en instapklaar
* Nieuwe keuken, badkamer en aangepaste indeling
* Volledig geïsoleerd (vloer, dak, muren, glas)
* Elektrische infrarood vloerverwarming
* 13 zonnepanelen
* Achtertuin met achterom en sauna
* Direct aan park Biljoen gelegen
* Rustige en geliefde woonomgeving in Velp

Interesse? Deze unieke bungalow is zelden beschikbaar. Neem snel contact op voor een bezichtiging en ervaar zelf het comfort en de rust van Gasthuislaan 87 in Velp.

Lees verder

Kenmerken

Overdracht

  • Status Beschikbaar
  • Vraagprijs € 298.000 k.k.
  • Aanvaarding In overleg

Bouwvorm & onderhoud

  • Soort object Tussenwoning
  • Soort woning Bungalow
  • Bouwjaar 1967
  • Bouwvorm Bestaande bouw
  • Bouwtype Woonhuis
  • Ligging Vrij uitzicht, in bosrijke omgeving

Parkeergelegenheid

  • Parkeerfaciliteiten Openbaar parkeren
  • Garage Geen garage

Overig

  • Onderhoud binnen Goed
  • Onderhoud buiten Goed
  • Bijzonderheden Toegankelijk voor ouderen, toegankelijk voor minder validen
  • Permanente bewoning Ja
  • Huidig gebruik Woonruimte
  • Huidige bestemming Woonruimte

Indeling

  • Woonoppervlakte ± 45 m2
  • Inhoud ± 158 m3
  • Aantal kamers 2 kamers
  • Aantal slaapkamers 1 slaapkamer
  • Aantal badkamers 1 badkamer
  • Badkamervoorzieningen Toilet, douche, wastafel, wastafelmeubel
  • Aantal woonlagen 1 woonlagen
  • Externe bergruimte ± 3 m2

Bergruimte

  • Schuur / berging Vrijstaand hout
  • Aantal schuren / bergingen 1

Energie

  • Energielabel C
  • Isolatie Dakisolatie, muurisolatie, vloerisolatie, dubbel glas, volledig geisoleerd
  • Verwarming Vloerverwarming gedeeltelijk
  • Warm water Elektrische boiler eigendom
  • Energie einddatum 13 aug 2035

Voorzieningen

  • Voorzieningen Mechanische ventilatie, tv kabel, glasvezel kabel, zonnepanelen, natuurlijke ventilatie

Kadastrale gegevens

  • Gemeente Velp gelderland
  • Sectie C
  • Eigendom Volle eigendom
  • Perceeloppervlakte 131 m2

Dak

  • Soort dak Plat dak
  • Soort materiaal Bitumineuze dakbedekking

Media

Informatie over de buurt

Burgerlijke staat

Gehuwd
Ongehuwd
Gescheiden
Verweduwd
  • Gehuwd
  • Ongehuwd
  • Gescheiden
  • Verweduwd

Leeftijd in gemeente

0 - 15 jaar
15 - 25 jaar
25-45 jaar
45 - 65 jaar
65+ jaar
  • 0 - 15 jaar
  • 15 - 25 jaar
  • 25 - 45 jaar
  • 45 - 65 jaar
  • 65+ jaar

Leeftijd buurtbewoners

0 - 15 jaar
15 - 25 jaar
25-45 jaar
45 - 65 jaar
65+ jaar
  • 0 - 15 jaar
  • 15 - 25 jaar
  • 25 - 45 jaar
  • 45 - 65 jaar
  • 65+ jaar

In de buurt

Filter

      Downloads

      Download hier de brochure van deze woning.

      Dit veld is bedoeld voor validatiedoeleinden en moet niet worden gewijzigd.
      bolletjes

      WILLEMSEN MAKELAARS ZOEKT VOOR U

      Maak een zoekopdracht aan

      makelaar Martijn Joyce