Verkocht onder voorbehoud

De Wiltstraat 3

Vraagprijs € 360.000 k.k.

  • 81 m2
  • 294 m3
  • 3 kamers

Omschrijving

Sfeervolle bovenwoning met karakter, licht en ruimte Wiltstraat 3, Arnhem

Ben je op zoek naar een charmante en lichte bovenwoning met een fijne indeling en een heerlijk balkon? Dan is deze woning aan de Wiltstraat 3 in Arnhem precies wat je zoekt! Verdeeld over twee verdiepingen en met een ruime zolder biedt deze woning verrassend veel leefruimte, een prettige lichtinval én een fijne ligging in een gezellige straat.

Indeling

Begane grond:
Via de eigen entree op de begane grond bereik je via de trap het centrale halletje op de eerste verdieping. Hier vind je het toilet en de toegang…

Sfeervolle bovenwoning met karakter, licht en ruimte Wiltstraat 3, Arnhem

Ben je op zoek naar een charmante en lichte bovenwoning met een fijne indeling en een heerlijk balkon? Dan is deze woning aan de Wiltstraat 3 in Arnhem precies wat je zoekt! Verdeeld over twee verdiepingen en met een ruime zolder biedt deze woning verrassend veel leefruimte, een prettige lichtinval én een fijne ligging in een gezellige straat.

Indeling

Begane grond:
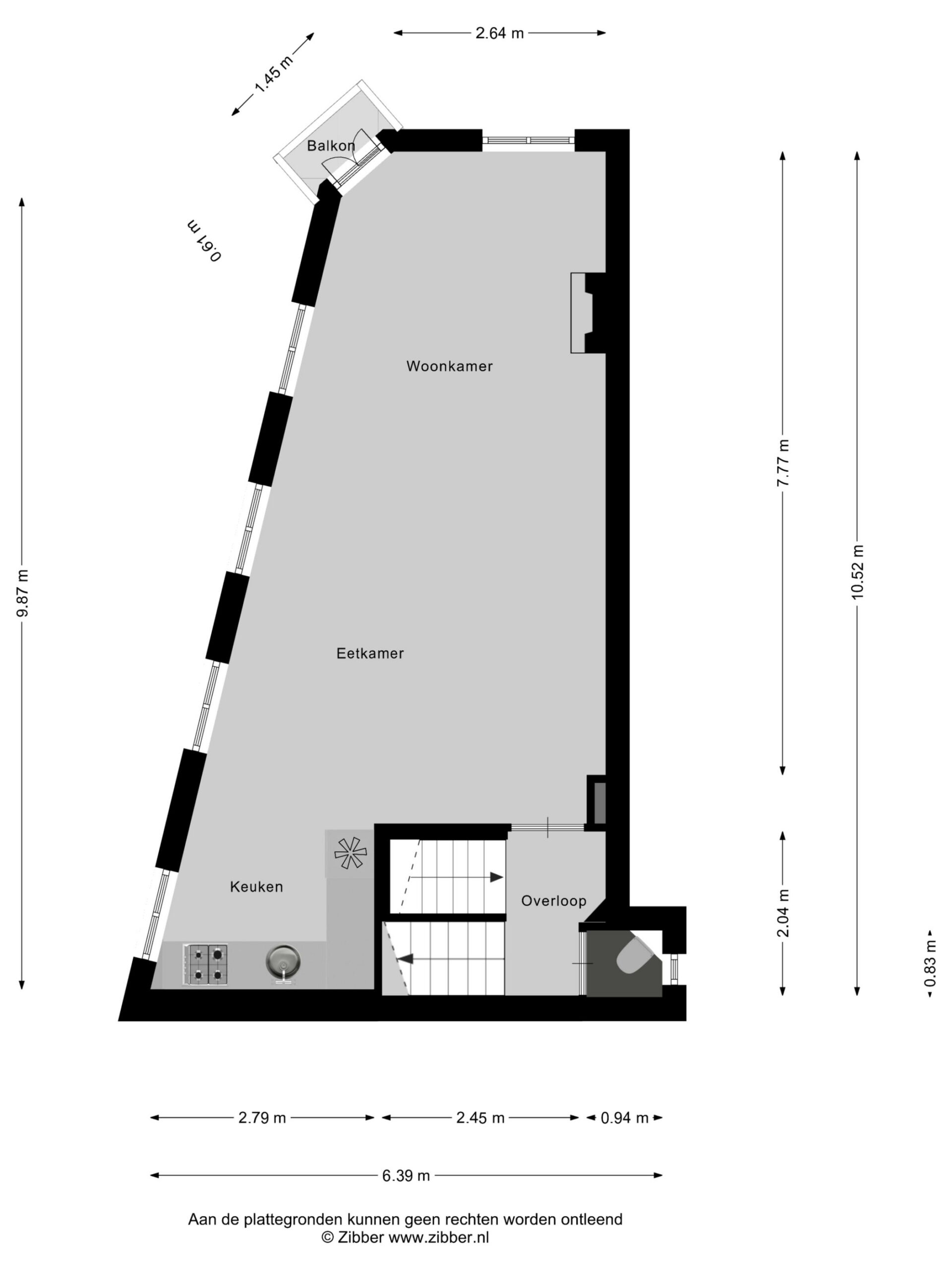
Via de eigen entree op de begane grond bereik je via de trap het centrale halletje op de eerste verdieping. Hier vind je het toilet en de toegang tot het woongedeelte.

Eerste verdieping:
De royale woonkamer is een echte eyecatcher: groot, licht en met mooie raampartijen waardoor het daglicht rijkelijk binnenvalt. Vanuit hier loop je zo het balkon op, waar je heerlijk kunt genieten van de karakteristieke straatjes in de omgeving. De L-vormige keuken sluit direct aan op de woonkamer en biedt voldoende werk- en opbergruimte.

Tweede verdieping:
Op deze verdieping bevinden zich twee goed bemeten slaapkamers, een overloop met wasmachineaansluiting en een verzorgde badkamer. Deze is voorzien van een wastafel met meubel, douche en een raam voor natuurlijke ventilatie en daglicht.

Zolderverdieping:
De bovenste verdieping biedt een ruime opbergzolder, ideaal voor al je seizoensspullen, koffers of als extra bergruimte.

Kelder:
Achter de voordeur bevindt zich onder een luik een opbergkelder van ca. 5 m2.

In 2013 heeft er een renovatie plaats gevonden, hierbij is de woning volledig geïsoleerd, er is nog enkel glas aanwezig waarbij een voorzetraam is geplaatst.
Pluspunten op een rij:

* Ruime en lichte woonkamer met balkon
* Twee volwaardige slaapkamers
* Verzorgde badkamer en apart toilet
* Praktische opbergzolder
* Gelegen in een gezellige straat nabij voorzieningen
* Veel lichtinval en prettige leefindeling

Deze woning combineert comfort, licht en ruimte op een fijne locatie in Arnhem. Perfect voor starters, stellen of kleine gezinnen die nét wat meer willen!

Lees verder

Kenmerken

Overdracht

  • Status Verkocht onder voorbehoud
  • Vraagprijs € 360.000 k.k.
  • Aanvaarding In overleg

Bouwvorm & onderhoud

  • Bouwjaar 1896
  • Bouwvorm Bestaande bouw
  • Bouwtype Appartement
  • Appartement soort Bovenwoning
  • Ligging Aan rustige weg, in woonwijk, beschutte ligging

Parkeergelegenheid

  • Parkeerfaciliteiten Openbaar parkeren, betaald parkeren, parkeervergunningen
  • Garage Geen garage

Overig

  • Onderhoud binnen Goed
  • Onderhoud buiten Goed
  • VVE Bijdrage € 81
  • Permanente bewoning Ja
  • Huidig gebruik Woonruimte
  • Huidige bestemming Woonruimte
  • VVE kosten 81

Indeling

  • Woonoppervlakte ± 81 m2
  • Inhoud ± 294 m3
  • Aantal kamers 3 kamers
  • Aantal slaapkamers 2 slaapkamers
  • Aantal badkamers 1 badkamer
  • Badkamervoorzieningen Douche, wastafel, wastafelmeubel
  • Aantal woonlagen 4 woonlagen
  • Overige inpandige ruimte ± 8 m2

Energie

  • Energielabel C
  • Isolatie Dakisolatie, muurisolatie, vloerisolatie, dubbel glas, voorzetramen
  • Verwarming Cv ketel
  • Warm water Cv ketel
  • C.V.-ketel type Gas
  • Energie einddatum 04 sep 2035

Voorzieningen

  • Voorzieningen Tv kabel, glasvezel kabel, natuurlijke ventilatie

Kadastrale gegevens

  • Gemeente Arnhem
  • Sectie N
  • Eigendom Volle eigendom
  • Index 2

Dak

  • Soort dak Samengesteld dak
  • Soort materiaal Pannen

Media

Informatie over de buurt

Burgerlijke staat

Gehuwd
Ongehuwd
Gescheiden
Verweduwd
  • Gehuwd
  • Ongehuwd
  • Gescheiden
  • Verweduwd

Leeftijd in gemeente

0 - 15 jaar
15 - 25 jaar
25-45 jaar
45 - 65 jaar
65+ jaar
  • 0 - 15 jaar
  • 15 - 25 jaar
  • 25 - 45 jaar
  • 45 - 65 jaar
  • 65+ jaar

Leeftijd buurtbewoners

0 - 15 jaar
15 - 25 jaar
25-45 jaar
45 - 65 jaar
65+ jaar
  • 0 - 15 jaar
  • 15 - 25 jaar
  • 25 - 45 jaar
  • 45 - 65 jaar
  • 65+ jaar

In de buurt

Filter

      Downloads

      Download hier de brochure van deze woning.

      Dit veld is bedoeld voor validatiedoeleinden en moet niet worden gewijzigd.
      bolletjes

      WILLEMSEN MAKELAARS ZOEKT VOOR U

      Maak een zoekopdracht aan

      makelaar Martijn Joyce