Beschikbaar

Burnierlaan 20

Vraagprijs € 950.000 k.k.

  • 169 m2
  • 682 m3
  • 5 kamers

Omschrijving

Prachtig wonen in Rozendaal: Luxe, comfort en duurzaamheid aan de Burnierlaan 20

Aan een van de rustigste lanen van het zeer geliefde en groene Rozendaal, bevindt zich deze in 2024 volledig gemoderniseerde villa. Deze woning is de perfecte balans tussen de degelijkheid van de bouw uit 2000 en het comfort van vandaag de dag. Met een kersvers energielabel A+, een splinternieuwe warmtepomp en een interieur dat in 2024 tot in de kleinste details is ondergedompeld in hotel-chique weelde, is dit een huis voor de fijnproever die direct wil genieten.

DUURZAAM EN GASLOOS WONEN
Met de recente installatie van een…

Prachtig wonen in Rozendaal: Luxe, comfort en duurzaamheid aan de Burnierlaan 20

Aan een van de rustigste lanen van het zeer geliefde en groene Rozendaal, bevindt zich deze in 2024 volledig gemoderniseerde villa. Deze woning is de perfecte balans tussen de degelijkheid van de bouw uit 2000 en het comfort van vandaag de dag. Met een kersvers energielabel A+, een splinternieuwe warmtepomp en een interieur dat in 2024 tot in de kleinste details is ondergedompeld in hotel-chique weelde, is dit een huis voor de fijnproever die direct wil genieten.

DUURZAAM EN GASLOOS WONEN
Met de recente installatie van een hybride warmtepomp in 2025 en de aanwezigheid van 17 zonnepanelen (2021) is deze woning volledig voorbereid op een gasloze toekomst. De volledige isolatie, gecombineerd met twee airco's (die zowel koelen als verwarmen) en elektrische vloerverwarming in de badkamer, zorgt voor een optimale klimaatbeheersing in elk seizoen.

INDELING
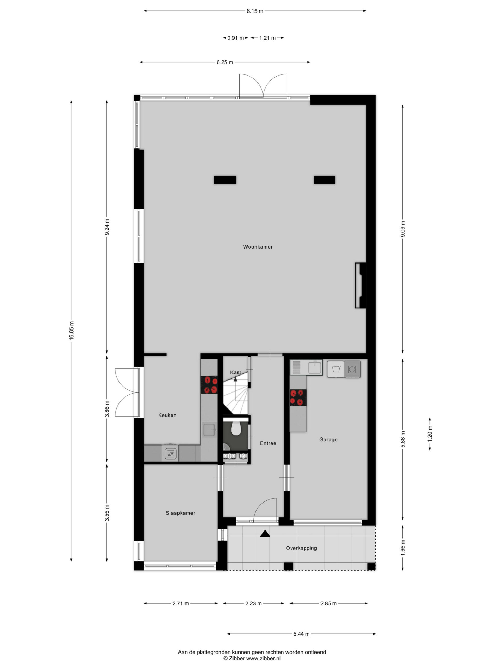
Begane grond
Bij binnenkomst in de representatieve hal met vernieuwde meterkast valt direct het hoogwaardige afwerkingsniveau op. Het schilderwerk is in 2024 volledig uitgevoerd en de bestaande eikenhouten vloer van topkwaliteit is professioneel behandeld en opnieuw gelakt, dit zorgt voor een natuurlijke, warme uitstraling.

Aan de linkerzijde treft u een rustig gelegen kantoorruimte: de ideale plek voor de veeleisende thuiswerker (voorzien van glasvezel). De royale woonkamer is een baken van licht en beschikt over een sfeervolle open haard. De slimme indeling biedt een aparte tv-hoek; een fijne plek waar de kinderen zich kunnen terugtrekken zonder het contact met de rest van het gezin te verliezen.

Het eetgedeelte vormt het hart van de woning en staat in open verbinding met zowel de living als de tuin. De in 2024 geplaatste keuken is een droom voor elke thuiskok. Deze zeer modern uitgevoerde ruimte beschikt over een inductiekookplaat en geïntegreerde afzuiging, een Quooker, een combi-magnetron/oven én een extra oven. Via de openslaande deuren vloeit binnen naadloos over in buiten.

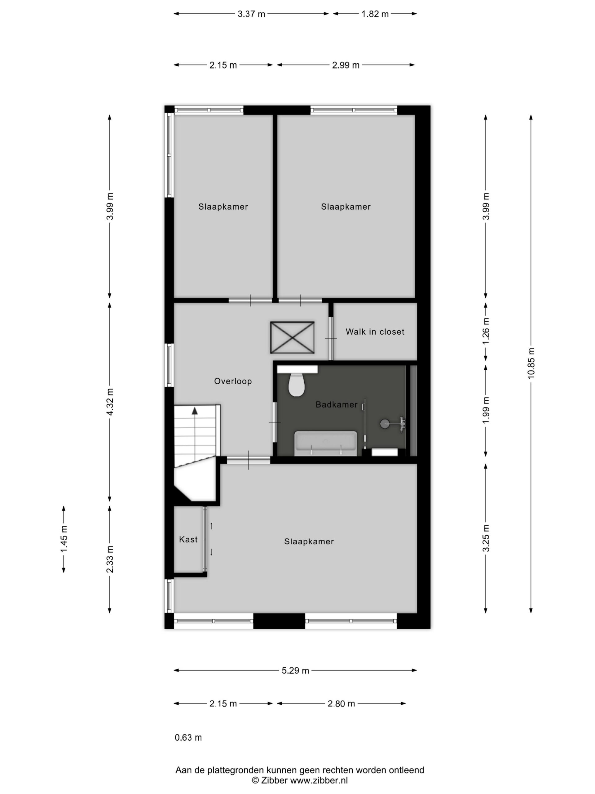
Hotel-chique op de verdieping
De nieuwe trap leidt naar de eerste verdieping, waar de luxueuze afwerking wordt voortgezet met nieuw behandelde vloeren. Hier bevinden zich drie ruime slaapkamers en de badkamer die werkelijk prachtig is. Deze ruimte is uitgevoerd in een hotel-chique stijl met prachtig tegelwerk, een royale inloopdouche, toilet, dubbele wastafel en het comfort van elektrische vloerverwarming.

Via een vlizotrap is de praktische bergzolder bereikbaar, die zich uitstrekt over de gehele oppervlakte van de verdieping.

LEVENSLOOPBESTENDIG
De inpandige garage biedt, in samenhang met de kantoorruimte, de unieke mogelijkheid om eenvoudig een slaapkamer en badkamer op de begane grond te realiseren. Hiermee is de woning in een handomdraai volledig levensloopbestendig te maken.

BUITENRUIMTE
De fraai aangelegde, onderhoudsvriendelijke tuin omsluit de woning en begint al bij de statige voorzijde. De achtertuin op het zuidwesten biedt diverse terrassen en optimale privacy. Een bijzonder detail is de stenen berging met daaronder een kelderruimte, oorspronkelijk aangelegd als wijnkelder; de perfecte plek voor het rijpen van uw collectie.

LIGGING
Wonen in Rozendaal betekent wonen in de kleinste en wellicht mooiste gemeente van Nederland. Op korte afstand wandelt u in de bosrijke omgeving van de Veluwezoom en de Posbank of brengt u een bezoek aan Kasteel Rosendael. De uitvalswegen en de gezelligheid van Velp en Arnhem liggen letterlijk binnen handbereik.

BIJZONDERHEDEN:
- Circa 169 m²
- Perceel 417 m²
- Nieuwe keuken (2024)
- Zeer luxe badkamer (2024)
- Warmtepomp (2025)
- 17 zonnepanelen (2021)
- 2 airco's (zowel koelen als verwarmen)
- 3 slaapkamers
- Kantoor op begane grond
- Inpandige garage
- Eigen oprit voor 2 auto's
- Fraai aangelegde onderhoudsvriendelijke tuin
- Berging met kelder (voormalige wijnkelder)

Lees verder

Kenmerken

Overdracht

  • Status Beschikbaar
  • Vraagprijs € 950.000 k.k.
  • Aanvaarding In overleg

Bouwvorm & onderhoud

  • Soort object Twee onder een kapwoning
  • Soort woning Eengezinswoning
  • Bouwjaar 2000
  • Bouwvorm Bestaande bouw
  • Bouwtype Woonhuis
  • Tuin kwaliteit Verzorgd
  • Ligging Aan rustige weg, in woonwijk, in bosrijke omgeving

Parkeergelegenheid

  • Parkeerfaciliteiten Openbaar parkeren, op eigen terrein
  • Garage Inpandig

Overig

  • Onderhoud binnen Uitstekend
  • Onderhoud buiten Uitstekend
  • Bijzonderheden Gedeeltelijk gestoffeerd
  • Permanente bewoning Ja
  • Huidig gebruik Woonruimte
  • Huidige bestemming Woonruimte

Indeling

  • Woonoppervlakte ± 169 m2
  • Inhoud ± 682 m3
  • Aantal kamers 5 kamers
  • Aantal slaapkamers 4 slaapkamers
  • Aantal badkamers 1 badkamer
  • Badkamervoorzieningen Toilet, dubbele wastafel, wastafelmeubel, inloopdouche, vloerverwarming
  • Aantal woonlagen 3 woonlagen
  • Externe bergruimte ± 16 m2
  • Overige inpandige ruimte ± 24 m2

Buitenruimte

  • Hoofdtuin Achtertuin
  • Tuintype Achtertuin, voortuin, zijtuin
  • Oppervlakte hoofdtuin 109 m2
  • Ligging hoofdtuin West
  • Kwaliteit tuin Verzorgd

Bergruimte

  • Schuur / berging Vrijstaand steen
  • Aantal schuren / bergingen 1
  • Voorzieningen Voorzien van elektra

Energie

  • Energielabel A+
  • Isolatie Volledig geisoleerd
  • Verwarming Cv ketel, warmtepomp
  • Warm water Cv ketel
  • C.V.-ketel type Gas
  • C.V.-ketel bouwjaar 2010
  • Energie einddatum 13 mrt 2036

Voorzieningen

  • Voorzieningen Mechanische ventilatie, tv kabel, airconditioning, zonnepanelen

Kadastrale gegevens

  • Gemeente Rozendaal
  • Sectie C
  • Eigendom Volle eigendom
  • Perceeloppervlakte 417 m2

Dak

  • Soort dak Samengesteld dak
  • Soort materiaal Pannen

Media

Informatie over de buurt

Burgerlijke staat

Gehuwd
Ongehuwd
Gescheiden
Verweduwd
  • Gehuwd
  • Ongehuwd
  • Gescheiden
  • Verweduwd

Leeftijd in gemeente

0 - 15 jaar
15 - 25 jaar
25-45 jaar
45 - 65 jaar
65+ jaar
  • 0 - 15 jaar
  • 15 - 25 jaar
  • 25 - 45 jaar
  • 45 - 65 jaar
  • 65+ jaar

Leeftijd buurtbewoners

0 - 15 jaar
15 - 25 jaar
25-45 jaar
45 - 65 jaar
65+ jaar
  • 0 - 15 jaar
  • 15 - 25 jaar
  • 25 - 45 jaar
  • 45 - 65 jaar
  • 65+ jaar

In de buurt

Filter

      Downloads

      Download hier de brochure van deze woning.

      Dit veld is bedoeld voor validatiedoeleinden en moet niet worden gewijzigd.
      bolletjes

      WILLEMSEN MAKELAARS ZOEKT VOOR U

      Maak een zoekopdracht aan

      makelaar Martijn Joyce