Beschikbaar

Boulevard Heuvelink 173

Vraagprijs € 1.100.000 k.k.

  • 264 m2
  • 936 m3
  • 11 kamers

Omschrijving

Statige stadsvilla aan de Boulevard Heuvelink – karakter, ruimte en privacy

Aan de statige en ruim opgezette Boulevard Heuvelink, in het geliefde Boulevardkwartier – onderdeel van het Rijks beschermde stads- en dorpsgezicht van Arnhem – staat deze bijzondere stadsvilla uit circa 1898. Een huis vol karakter, sfeer en authentieke details, ideaal voor wie comfortabel wil wonen in een stijlvolle, historische omgeving met het stadcentrum binnen handbereik.

Karakter en klasse

De entree maakt direct indruk: een vestibule met beschilderde ramen van kunstenaar W. Reijenga, originele marmeren lambrisering en sierlijk stucwerk. Binnen vind je nog talloze oorspronkelijke details zoals hoge plafonds met…

Statige stadsvilla aan de Boulevard Heuvelink – karakter, ruimte en privacy

Aan de statige en ruim opgezette Boulevard Heuvelink, in het geliefde Boulevardkwartier – onderdeel van het Rijks beschermde stads- en dorpsgezicht van Arnhem – staat deze bijzondere stadsvilla uit circa 1898. Een huis vol karakter, sfeer en authentieke details, ideaal voor wie comfortabel wil wonen in een stijlvolle, historische omgeving met het stadcentrum binnen handbereik.

Karakter en klasse

De entree maakt direct indruk: een vestibule met beschilderde ramen van kunstenaar W. Reijenga, originele marmeren lambrisering en sierlijk stucwerk. Binnen vind je nog talloze oorspronkelijke details zoals hoge plafonds met ornamenten, drie zwart marmeren schouwen, fraai houtwerk en klassieke paneeldeuren. De combinatie van authenticiteit en royale ruimtes geeft de villa een unieke uitstraling.

Indeling

Souterrain
Ruim souterrain met hal, provisiekelder, kantoor, hobbyruimte en bergruimte. Dankzij de droge constructie en originele estrikenvloer is dit een volwaardige extra woonlaag. Het achterom is uitsluitend toegankelijk voor deze woning, wat optimale privacy waarborgt.

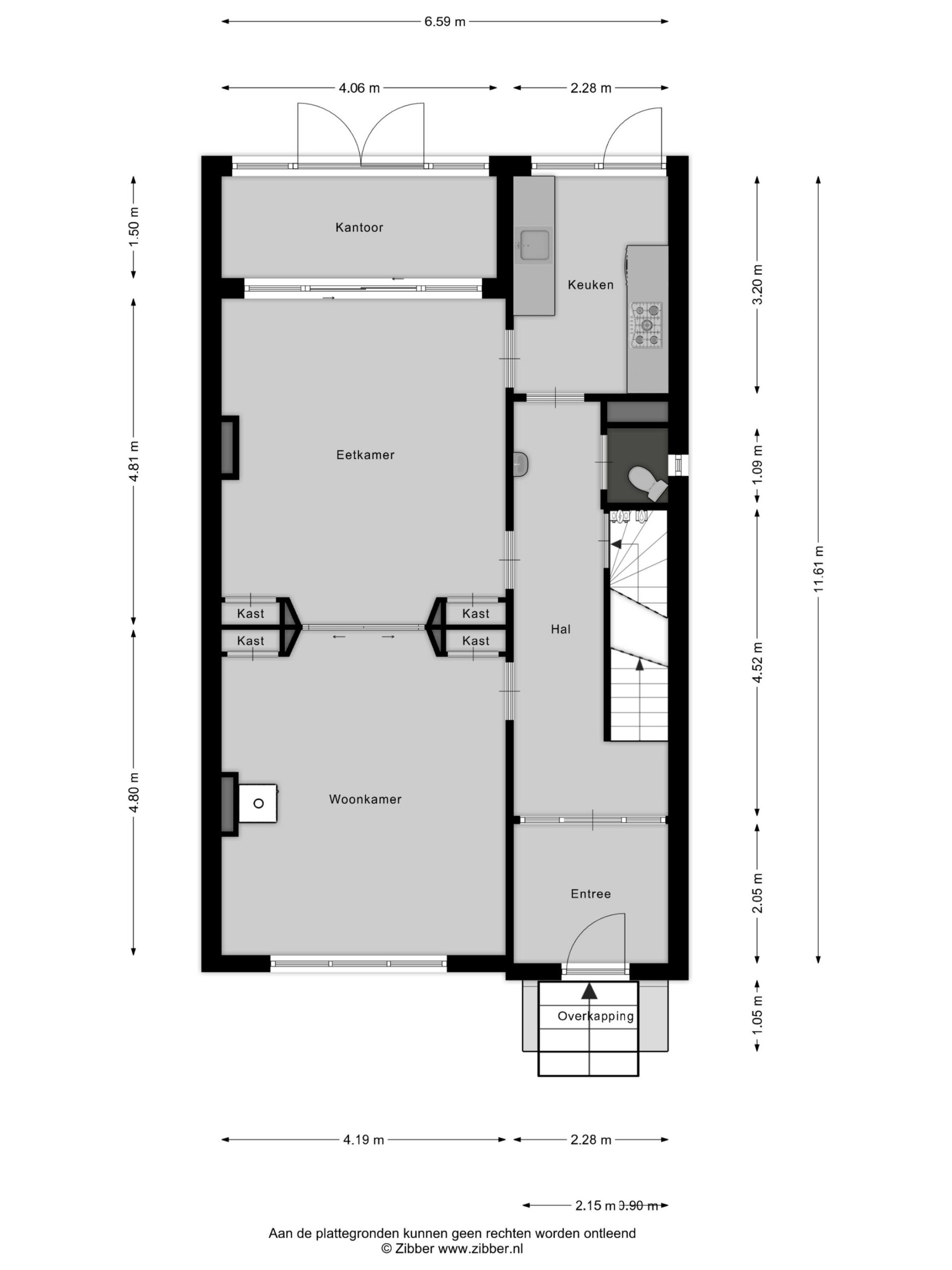
Begane grond
Prachtige hal met ornamentenplafond, origineel fonteintje en fraaie trapopgang. Kamer en suite met vier vaste kasten, schuifdeuren en twee zwart marmeren schouwen. Aansluitend een lichte serre met openslaande deuren naar de ommuurde binnentuin, die direct grenst aan de gezamenlijke ecologische watertuin – een groene, rustige oase zonder directe achterburen. Voor- en achtertuin zijn aangelegd volgens een stijlvast ontwerp van tuinarchitect Miek Versteegh. De keuken is praktisch ingericht en grenst aan de eetkamer.

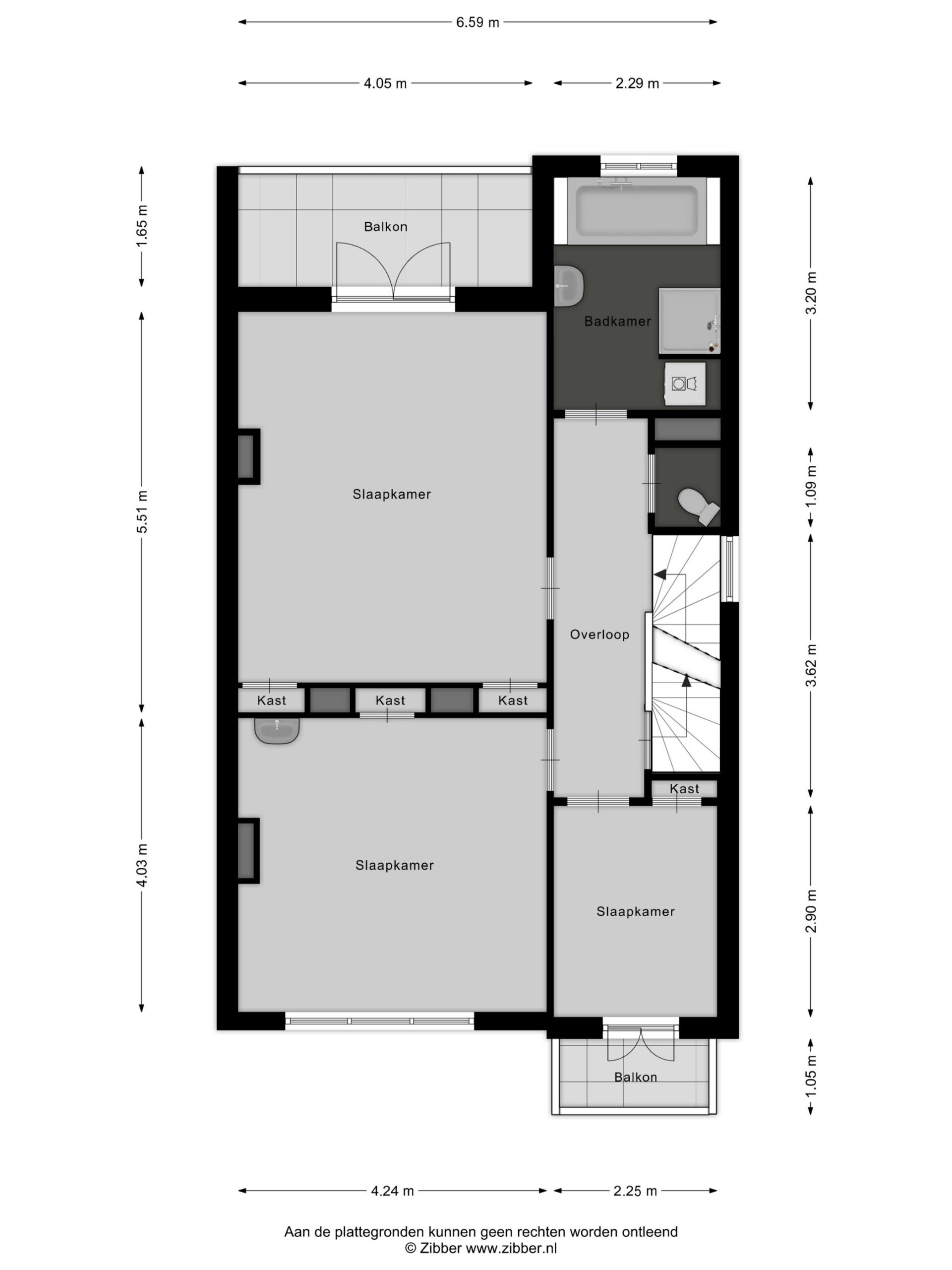
Eerste verdieping
Overloop, separaat toilet en badkamer in zwart-witte stijl met ligbad, wastafel en douche. Aan de voorzijde twee slaapkamers (waarvan één met balkon), en aan de achterzijde een ruime slaapkamer met veranda en uitzicht op de tuin en watertuin.

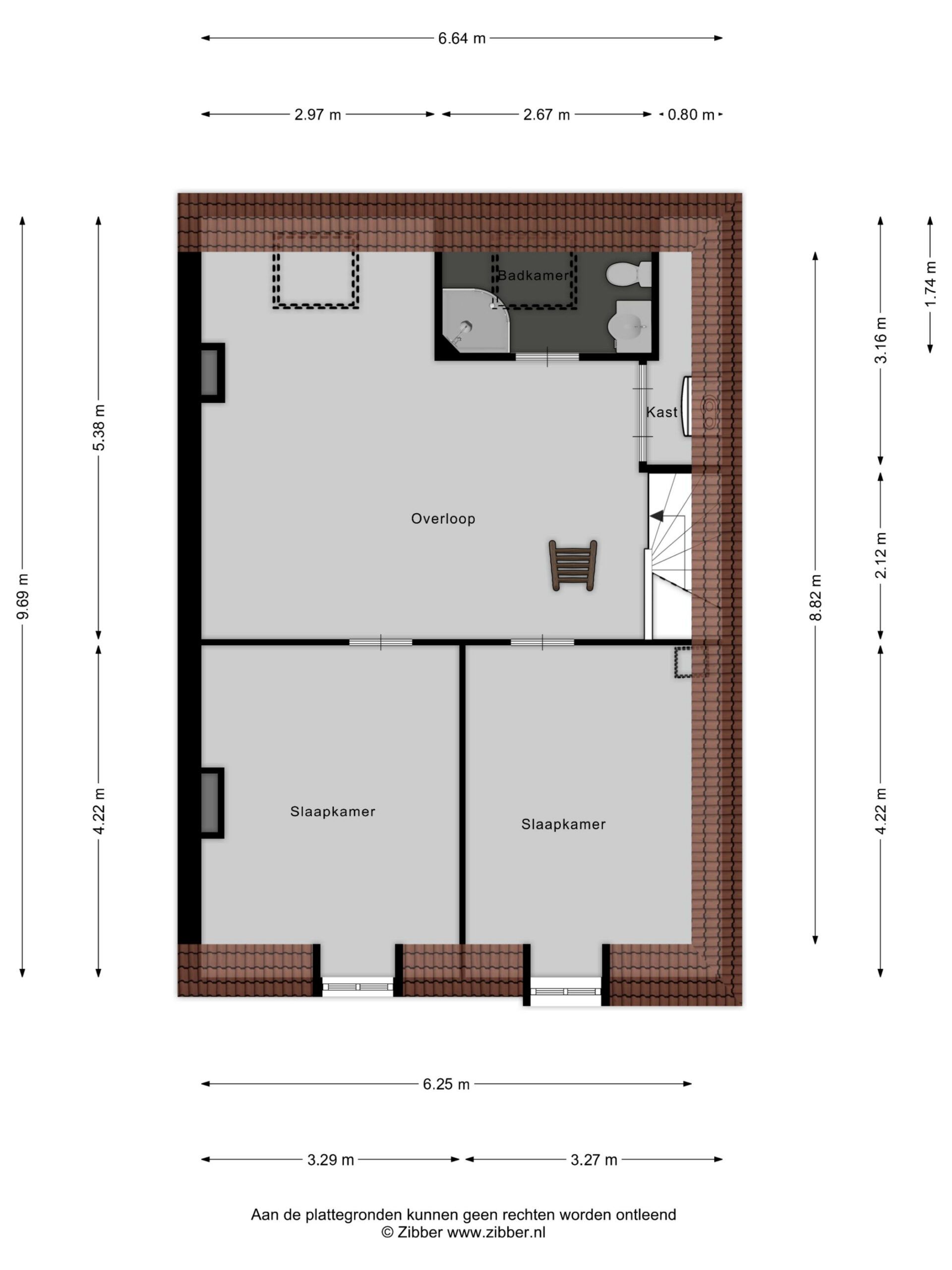
Tweede verdieping
Grote open ruimte met zichtbare kapconstructie, twee slaapkamers, tweede badkamer met douche en toilet, en vaste kast met cv-installatie. Boven de slaapkamers bevindt zich een praktische vliering.

Kenmerken
• Inhoud: circa 936 m³
• Gebruiksoppervlakte: circa 264 m²
• Perceeloppervlakte: 255 m²
• Bouwjaar: circa 1898
• CV-ketel vernieuwd in 2012
• Gelegen in Rijks beschermd stads- en dorpsgezicht
• Parkeren met vergunning voor bewoners in het Spijkerkwartier

Ligging

De Boulevard Heuvelink is een van de mooiste lanen van Arnhem: breed, groen en statig. De ligging is ideaal – rustig en beschut, maar op loopafstand van de binnenstad. Scholen, kinderopvang, parken, buurtwinkels en gezellige horeca liggen in de directe omgeving. Station Arnhem is snel bereikbaar per fiets en de uitvalswegen liggen dichtbij.

Hier woon je royaal, stijlvol en in volledige privacy, midden in het karaktervolle hart van Arnhem.

Lees verder

Kenmerken

Overdracht

  • Status Beschikbaar
  • Vraagprijs € 1.100.000 k.k.
  • Aanvaarding In overleg

Bouwvorm & onderhoud

  • Soort object Twee onder een kapwoning
  • Soort woning Herenhuis
  • Bouwjaar 1898
  • Bouwvorm Bestaande bouw
  • Bouwtype Woonhuis
  • Tuin kwaliteit Normaal
  • Tuin achterom 1
  • Ligging In woonwijk

Parkeergelegenheid

  • Parkeerfaciliteiten Parkeervergunningen
  • Garage Geen garage

Overig

  • Onderhoud binnen Goed
  • Onderhoud buiten Goed
  • Bijzonderheden Gedeeltelijk gestoffeerd, beschermd stads of dorpsgezicht
  • Permanente bewoning Ja
  • Huidig gebruik Woonruimte
  • Huidige bestemming Woonruimte

Indeling

  • Woonoppervlakte ± 264 m2
  • Inhoud ± 936 m3
  • Aantal kamers 11 kamers
  • Aantal slaapkamers 5 slaapkamers
  • Aantal badkamers 2 badkamers
  • Badkamervoorzieningen Toilet, douche, wastafel, ligbad, douche, wastafel, wasmachineaansluiting
  • Aantal woonlagen 5 woonlagen

Buitenruimte

  • Hoofdtuin Achtertuin
  • Tuintype Achtertuin, voortuin
  • Oppervlakte hoofdtuin 104 m2
  • Ligging hoofdtuin Noordwest
  • Kwaliteit tuin Normaal

Bergruimte

  • Schuur / berging Inpandig
  • Aantal schuren / bergingen 1
  • Voorzieningen Voorzien van elektra

Energie

  • Energielabel E
  • Isolatie Gedeeltelijk dubbel glas
  • Verwarming Cv ketel, houtkachel
  • Warm water Cv ketel, elektrische boiler eigendom
  • C.V.-ketel type Gas
  • C.V.-ketel bouwjaar 2012
  • Energie einddatum 13 okt 2035

Voorzieningen

  • Voorzieningen Mechanische ventilatie, tv kabel, schuifpui, dakraam, glasvezel kabel, natuurlijke ventilatie

Kadastrale gegevens

  • Gemeente Arnhem
  • Sectie Q
  • Eigendom Volle eigendom
  • Perceeloppervlakte 255 m2

Dak

  • Soort dak Samengesteld dak
  • Soort materiaal Pannen, bitumineuze dakbedekking

Media

Informatie over de buurt

Burgerlijke staat

Gehuwd
Ongehuwd
Gescheiden
Verweduwd
  • Gehuwd
  • Ongehuwd
  • Gescheiden
  • Verweduwd

Leeftijd in gemeente

0 - 15 jaar
15 - 25 jaar
25-45 jaar
45 - 65 jaar
65+ jaar
  • 0 - 15 jaar
  • 15 - 25 jaar
  • 25 - 45 jaar
  • 45 - 65 jaar
  • 65+ jaar

Leeftijd buurtbewoners

0 - 15 jaar
15 - 25 jaar
25-45 jaar
45 - 65 jaar
65+ jaar
  • 0 - 15 jaar
  • 15 - 25 jaar
  • 25 - 45 jaar
  • 45 - 65 jaar
  • 65+ jaar

In de buurt

Filter

      Downloads

      Download hier de brochure van deze woning.

      Dit veld is bedoeld voor validatiedoeleinden en moet niet worden gewijzigd.
      bolletjes

      WILLEMSEN MAKELAARS ZOEKT VOOR U

      Maak een zoekopdracht aan

      makelaar Martijn Joyce