Beschikbaar

Bereklauwstraat 1

Vraagprijs € 300.000 k.k.

  • 81 m2
  • 302 m3
  • 4 kamers

Omschrijving

Deze goed onderhouden eindwoning uit 1949 is gelegen in een rustige en geliefde woonomgeving in Malburgen, bekend om haar groene karakter, prettige woonklimaat en gunstige ligging ten opzichte van voorzieningen, scholen en uitvalswegen.
De wijk kenmerkt zich door een fijne mix van gezinnen en starters en biedt volop parkeergelegenheid en speelruimte in de directe omgeving.

Bouwjaar: 1949. Woonoppervlakte: 81m2.

Indeling:
Begane grond:
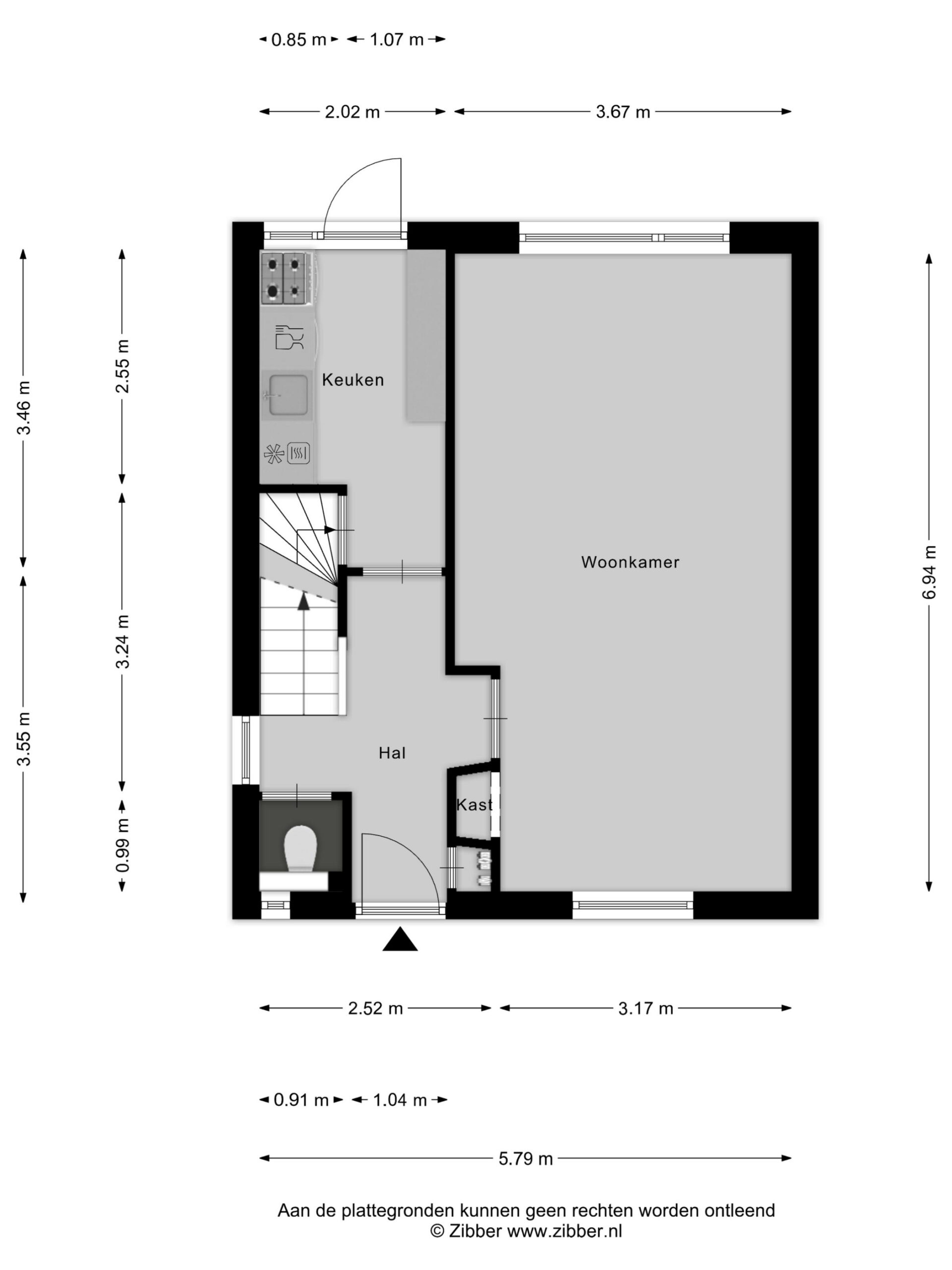
Bij binnenkomst treft u een nette hal met toilet en toegang tot de dichte keuken, die is voorzien van diverse inbouwapparatuur. De lichte en gezellige woonkamer aan de voorzijde biedt een fijne leefruimte met een…

Deze goed onderhouden eindwoning uit 1949 is gelegen in een rustige en geliefde woonomgeving in Malburgen, bekend om haar groene karakter, prettige woonklimaat en gunstige ligging ten opzichte van voorzieningen, scholen en uitvalswegen.
De wijk kenmerkt zich door een fijne mix van gezinnen en starters en biedt volop parkeergelegenheid en speelruimte in de directe omgeving.

Bouwjaar: 1949. Woonoppervlakte: 81m2.

Indeling:
Begane grond:
Bij binnenkomst treft u een nette hal met toilet en toegang tot de dichte keuken, die is voorzien van diverse inbouwapparatuur. De lichte en gezellige woonkamer aan de voorzijde biedt een fijne leefruimte met een prettig uitzicht op de straat.

De woning is door de jaren heen zorgvuldig verbeterd en verduurzaamd. Zo is er sprake van dakisolatie (waarbij het dak zelfs recent is vernieuwd), muurisolatie en grotendeels kunststof kozijnen met HR++ beglazing. Dit zorgt niet alleen voor extra comfort, maar ook voor lagere energielasten. Het geheel staat op een perceel van 170 m² en beschikt over een praktische stenen berging in de achtertuin.

Op de eerste verdieping bevindt zich de overloop met een handig wasmachineplateau. Daarnaast zijn er drie slaapkamers aanwezig. De vergrote en gemoderniseerde badkamer is compleet uitgevoerd met een ligbad, douche en wastafel en biedt daarmee alle comfort voor een gezin. Vanaf de overloop is via een vlizotrap de bergzolder bereikbaar, waar zich tevens de CV-installatie bevindt (Remeha, 2005).

Kortom: een comfortabele, energiezuinig verbeterde woning met een praktische indeling en volop mogelijkheden, gelegen op een fijne locatie in Arnhem. Een ideale kans voor wie op zoek is naar een instapklare gezinswoning met karakter en comfort!

Lees verder

Kenmerken

Overdracht

  • Status Beschikbaar
  • Vraagprijs € 300.000 k.k.
  • Aanvaarding In overleg

Bouwvorm & onderhoud

  • Soort object Eindwoning
  • Soort woning Eengezinswoning
  • Bouwjaar 1949
  • Bouwvorm Bestaande bouw
  • Bouwtype Woonhuis
  • Tuin kwaliteit Normaal
  • Tuin achterom 1
  • Ligging In woonwijk

Parkeergelegenheid

  • Parkeerfaciliteiten Openbaar parkeren
  • Garage Geen garage

Overig

  • Onderhoud binnen Goed
  • Onderhoud buiten Goed
  • Permanente bewoning Ja
  • Huidig gebruik Woonruimte
  • Huidige bestemming Woonruimte

Indeling

  • Woonoppervlakte ± 81 m2
  • Inhoud ± 302 m3
  • Aantal kamers 4 kamers
  • Aantal slaapkamers 3 slaapkamers
  • Aantal badkamers 1 badkamer
  • Badkamervoorzieningen Ligbad, douche, wastafel
  • Aantal woonlagen 3 woonlagen
  • Externe bergruimte ± 6 m2
  • Overige inpandige ruimte ± 5 m2

Buitenruimte

  • Hoofdtuin Achtertuin
  • Tuintype Achtertuin
  • Oppervlakte hoofdtuin 60 m2
  • Ligging hoofdtuin Zuidoost
  • Kwaliteit tuin Normaal

Bergruimte

  • Schuur / berging Vrijstaand steen
  • Aantal schuren / bergingen 1

Energie

  • Energielabel A
  • Isolatie Dakisolatie, muurisolatie
  • Verwarming Cv ketel
  • Warm water Cv ketel
  • C.V.-ketel type Gas
  • C.V.-ketel bouwjaar 2005
  • Energie einddatum 07 okt 2035

Voorzieningen

  • Voorzieningen Natuurlijke ventilatie

Kadastrale gegevens

  • Gemeente Arnhem
  • Sectie E
  • Eigendom Volle eigendom
  • Perceeloppervlakte 170 m2

Dak

  • Soort dak Zadeldak
  • Soort materiaal Pannen

Media

Informatie over de buurt

Burgerlijke staat

Gehuwd
Ongehuwd
Gescheiden
Verweduwd
  • Gehuwd
  • Ongehuwd
  • Gescheiden
  • Verweduwd

Leeftijd in gemeente

0 - 15 jaar
15 - 25 jaar
25-45 jaar
45 - 65 jaar
65+ jaar
  • 0 - 15 jaar
  • 15 - 25 jaar
  • 25 - 45 jaar
  • 45 - 65 jaar
  • 65+ jaar

Leeftijd buurtbewoners

0 - 15 jaar
15 - 25 jaar
25-45 jaar
45 - 65 jaar
65+ jaar
  • 0 - 15 jaar
  • 15 - 25 jaar
  • 25 - 45 jaar
  • 45 - 65 jaar
  • 65+ jaar

In de buurt

Filter

      Downloads

      Download hier de brochure van deze woning.

      Dit veld is bedoeld voor validatiedoeleinden en moet niet worden gewijzigd.
      bolletjes

      WILLEMSEN MAKELAARS ZOEKT VOOR U

      Maak een zoekopdracht aan

      makelaar Martijn Joyce