Beschikbaar

Agnietenstraat 101

Vraagprijs € 440.000 k.k.

  • 119 m2
  • 393 m3
  • 6 kamers

Omschrijving

Verrassend ruime benedenwoning met vier slaapkamers en zonnige tuin in Arnhem

Aan de Agnietenstraat 101 in Arnhem vind je deze verrassend ruime en speels ingedeelde benedenwoning met maar liefst vier slaapkamers, een moderne afwerking en een fijne zonnige tuin met achterom. De woning ligt op een centrale locatie met supermarkten en andere voorzieningen op steenworp afstand.

Indeling

Begane grond
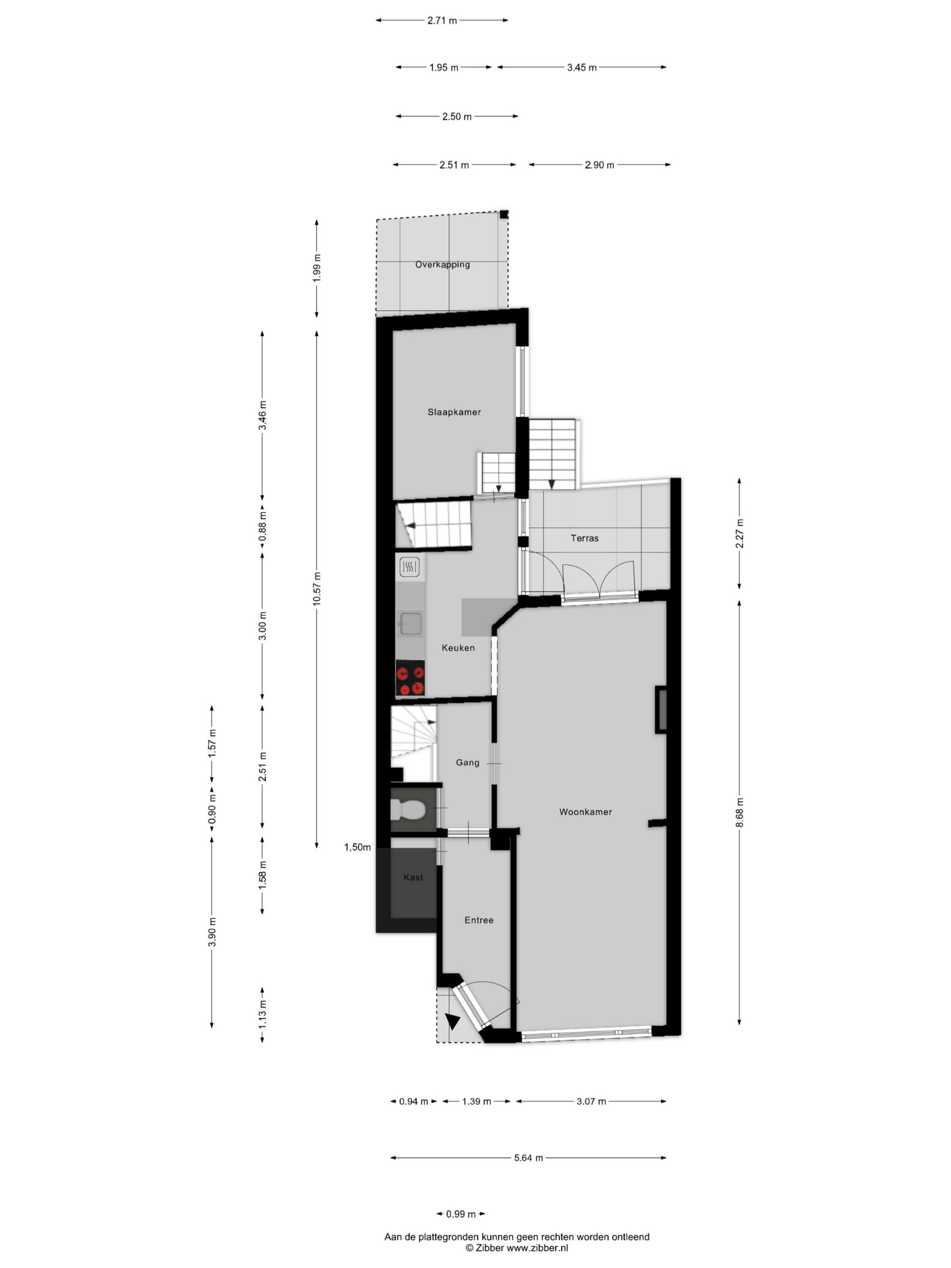
Via de hal met toilet kom je in de lichte woonkamer, waar openslaande deuren zorgen voor een prettige verbinding met het terras en de tuin. De halfopen keuken is geplaatst in 2016 en in 2025 voorzien van een nieuwe inductiekookplaat,…

Verrassend ruime benedenwoning met vier slaapkamers en zonnige tuin in Arnhem

Aan de Agnietenstraat 101 in Arnhem vind je deze verrassend ruime en speels ingedeelde benedenwoning met maar liefst vier slaapkamers, een moderne afwerking en een fijne zonnige tuin met achterom. De woning ligt op een centrale locatie met supermarkten en andere voorzieningen op steenworp afstand.

Indeling

Begane grond
Via de hal met toilet kom je in de lichte woonkamer, waar openslaande deuren zorgen voor een prettige verbinding met het terras en de tuin. De halfopen keuken is geplaatst in 2016 en in 2025 voorzien van een nieuwe inductiekookplaat, granieten werkblad en vaatwasser.

Achter de keuken bevindt zich een speelse split level indeling met twee extra kamers. Eén kamer is momenteel ingericht als slaapkamer en de andere als werkkamer, maar beide ruimtes zijn flexibel in te delen naar wens.

Souterrain
Het souterrain biedt verrassend veel extra ruimte. Hier bevinden zich twee slaapkamers, een moderne badkamer uit 2021 met inloopdouche, tweede toilet, afzuiging en een breed wastafelmeubel. Daarnaast is er een aparte ruimte voor wasmachine en droger en een royale berging die uitstekend kan dienen als inloopkast.

Buitenruimte
De zonnige tuin met achterom biedt volop privacy en is een fijne plek om te ontspannen of gezellig buiten te zitten.

Bijzonderheden

- Bouwjaar 1926
- Gebruiksoppervlakte circa 119 m²
- De woning heeft een gebruiksoppervlakte van 119m2, conform meetrapport. Hoogte van het souterrain varieert van ca. 1.90 m tot ca. 2.00 m
- Vier slaapkamers waarvan één momenteel in gebruik als werkkamer
- Moderne badkamer uit 2021
- Keuken uit 2016, vernieuwd in 2025 met inductiekookplaat, granieten werkblad en vaatwasser
- CV installatie uit 2013
- Zonnige tuin met achterom
- Supermarkten en voorzieningen op loopafstand

Een verrassend ruime en veelzijdige woning op een centrale locatie in Arnhem. Maak snel een afspraak voor een bezichtiging en ervaar zelf de ruimte en mogelijkheden.

Lees verder

Kenmerken

Overdracht

  • Status Beschikbaar
  • Vraagprijs € 440.000 k.k.
  • Aanvaarding In overleg

Bouwvorm & onderhoud

  • Bouwjaar 1926
  • Bouwvorm Bestaande bouw
  • Bouwtype Appartement
  • Appartement soort Benedenwoning
  • Tuin kwaliteit Verzorgd
  • Tuin achterom 1
  • Ligging Aan rustige weg, in woonwijk

Parkeergelegenheid

  • Parkeerfaciliteiten Openbaar parkeren
  • Garage Geen garage

Overig

  • Onderhoud binnen Goed
  • Onderhoud buiten Goed
  • VVE Bijdrage € 200
  • Bijzonderheden Gedeeltelijk gestoffeerd
  • Permanente bewoning Ja
  • Huidig gebruik Woonruimte
  • Huidige bestemming Woonruimte
  • VVE kosten 200

Indeling

  • Woonoppervlakte ± 119 m2
  • Inhoud ± 393 m3
  • Aantal kamers 6 kamers
  • Aantal slaapkamers 4 slaapkamers
  • Aantal badkamers 1 badkamer
  • Badkamervoorzieningen Toilet, wastafel, wastafelmeubel, inloopdouche
  • Aantal woonlagen 2 woonlagen

Buitenruimte

  • Hoofdtuin Achtertuin
  • Tuintype Achtertuin
  • Oppervlakte hoofdtuin 50 m2
  • Ligging hoofdtuin Zuidoost
  • Kwaliteit tuin Verzorgd

Energie

  • Energielabel C
  • Isolatie Muurisolatie, vloerisolatie, grotendeels dubbelglas
  • Verwarming Cv ketel
  • Warm water Cv ketel
  • C.V.-ketel type Gas
  • C.V.-ketel bouwjaar 2013
  • Energie einddatum 19 feb 2036

Voorzieningen

  • Voorzieningen Mechanische ventilatie, tv kabel, glasvezel kabel, natuurlijke ventilatie

Kadastrale gegevens

  • Gemeente Arnhem
  • Sectie R
  • Eigendom Volle eigendom
  • Index 1

Dak

  • Soort dak Schilddak
  • Soort materiaal Pannen

Media

Informatie over de buurt

Burgerlijke staat

Gehuwd
Ongehuwd
Gescheiden
Verweduwd
  • Gehuwd
  • Ongehuwd
  • Gescheiden
  • Verweduwd

Leeftijd in gemeente

0 - 15 jaar
15 - 25 jaar
25-45 jaar
45 - 65 jaar
65+ jaar
  • 0 - 15 jaar
  • 15 - 25 jaar
  • 25 - 45 jaar
  • 45 - 65 jaar
  • 65+ jaar

Leeftijd buurtbewoners

0 - 15 jaar
15 - 25 jaar
25-45 jaar
45 - 65 jaar
65+ jaar
  • 0 - 15 jaar
  • 15 - 25 jaar
  • 25 - 45 jaar
  • 45 - 65 jaar
  • 65+ jaar

In de buurt

Filter

      Downloads

      Download hier de brochure van deze woning.

      Dit veld is bedoeld voor validatiedoeleinden en moet niet worden gewijzigd.
      bolletjes

      WILLEMSEN MAKELAARS ZOEKT VOOR U

      Maak een zoekopdracht aan

      makelaar Martijn Joyce