Bouwnummer 76, 2-kamer appartement, Arnhem

Scandinavische rust en ruimte in Arnhem

Willemsen makelaars

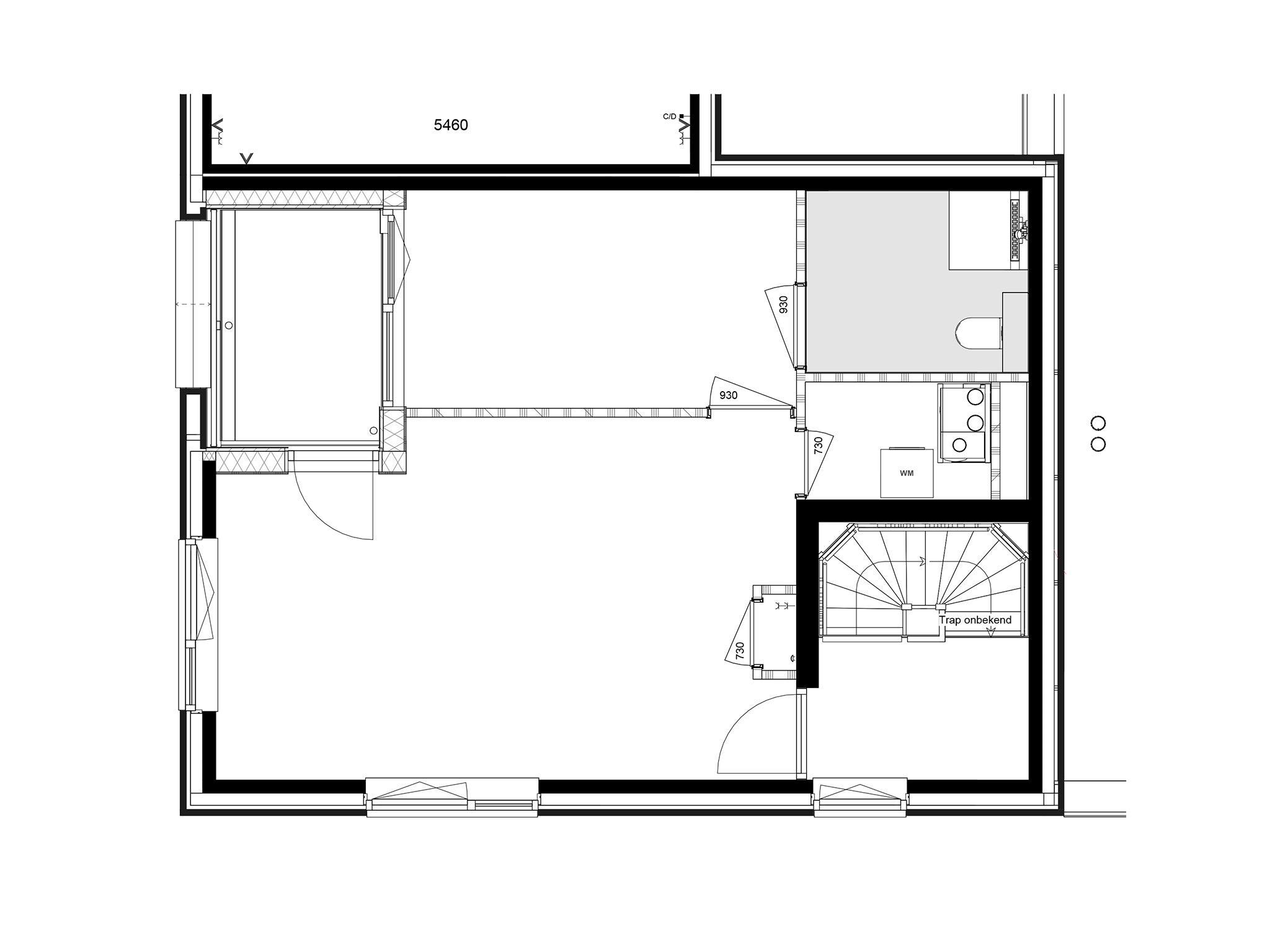
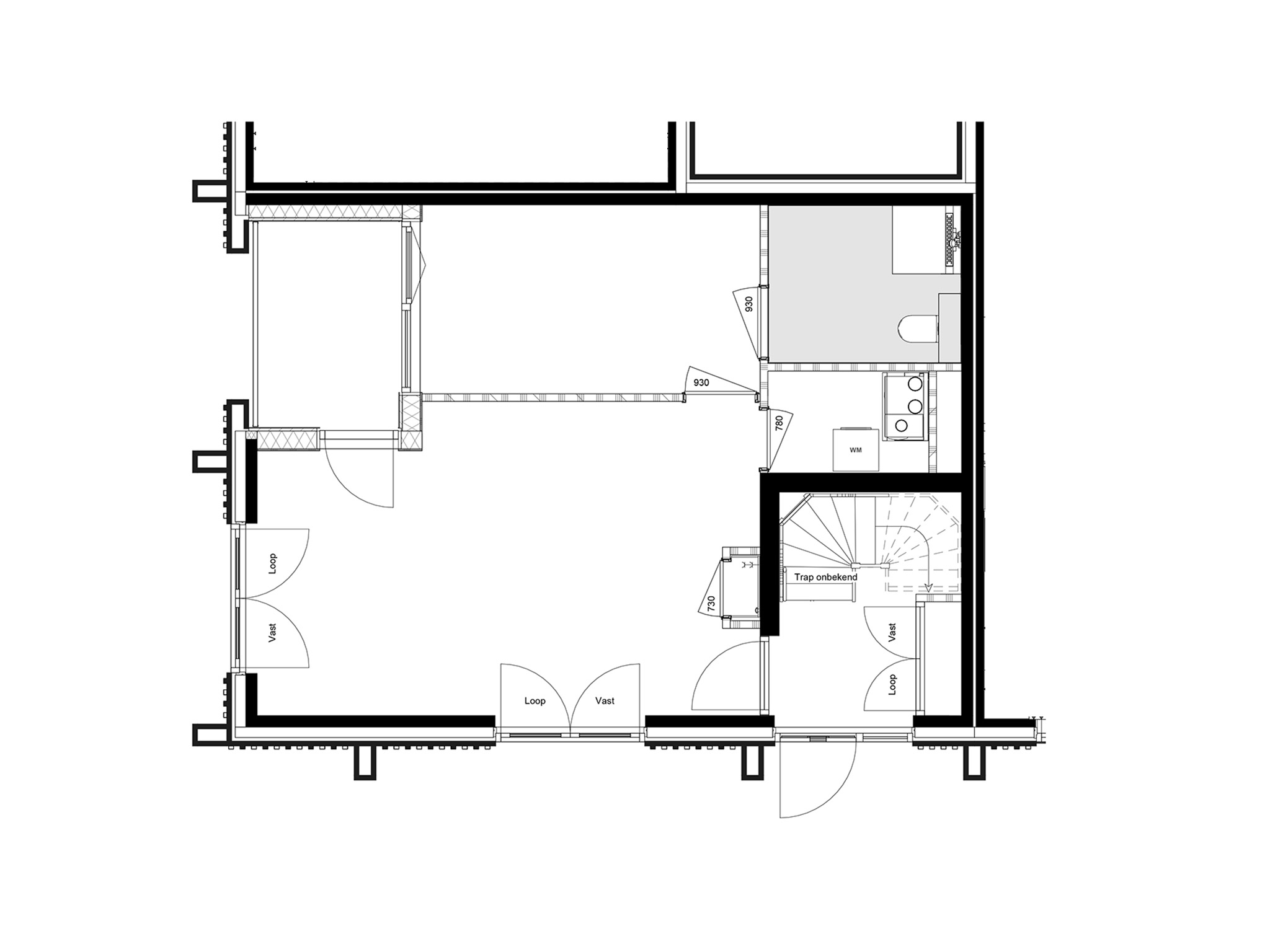
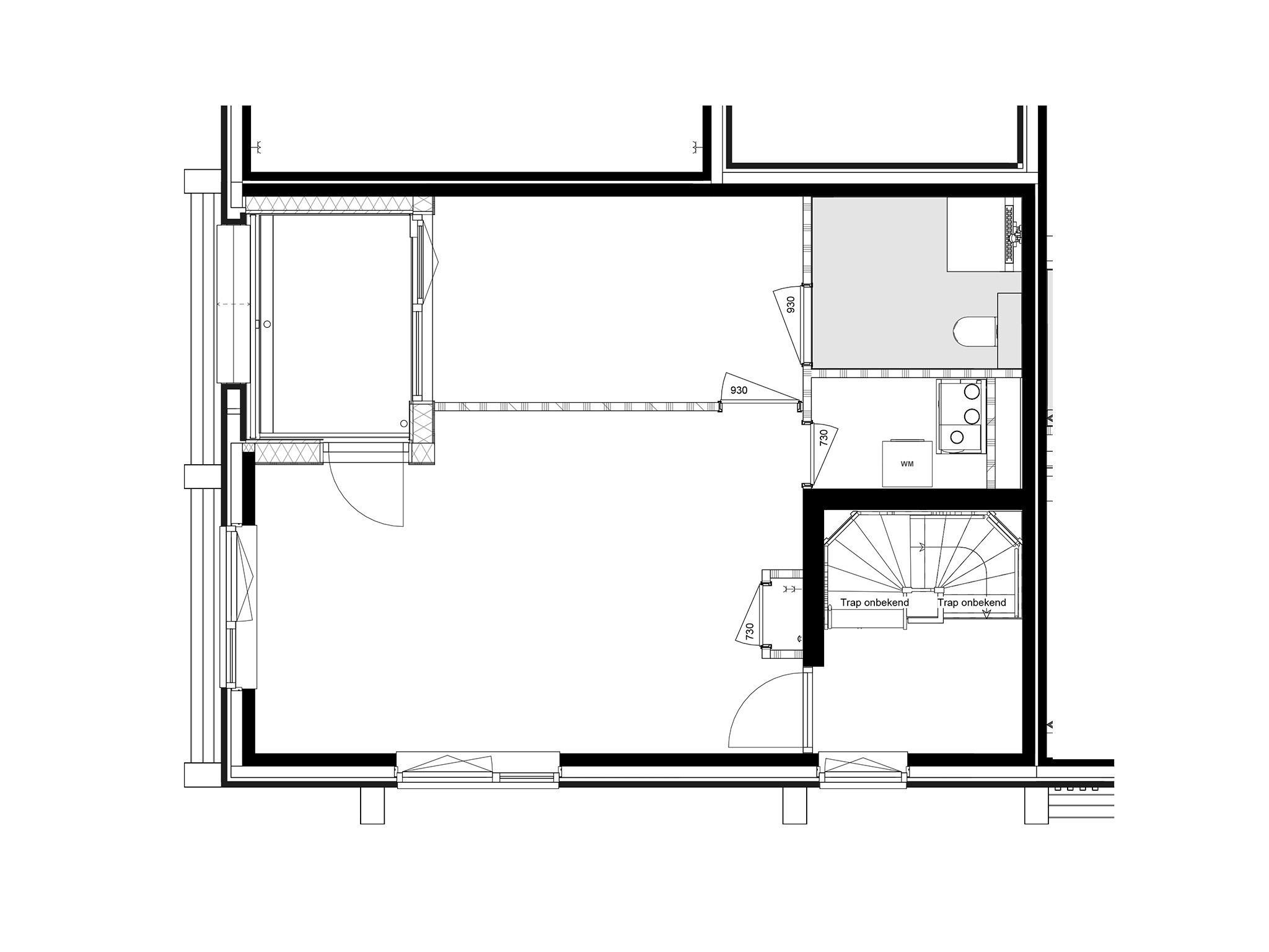
2-kamer appartement - bouwnummer 76

De stad Arnhem ligt om de hoek, maar de natuur is altijd dichtbij. Allemaal dankzij de fijne parksfeer. De hele wijk is een mooi geheel door de lichte bakstenen. Bouwnummer 076 verwelkomt je met het typische metselwerk van uitstekende bakstenen bij de voordeur, kenmerkend voor alle woningen van dit noordelijke woningblok. Die mooie voordeur gaat open in een heerlijk appartement op de derde verdieping. Kom je binnen?

*let op: de prijs is indicatief. definitieve prijzen worden bekend gemaakt tijdens start verkoop en kunnen nog afwijken van indicatieve prijs
*let op: energielabel betreft voorlopig energielabel.

2-kamer appartement - bouwnummer 76

De stad Arnhem ligt om de hoek, maar de natuur is altijd dichtbij. Allemaal dankzij de fijne parksfeer. De hele wijk is een mooi geheel door de lichte bakstenen. Bouwnummer 076 verwelkomt je met het typische metselwerk van uitstekende bakstenen bij de voordeur, kenmerkend voor alle woningen van dit noordelijke woningblok. Die mooie voordeur gaat open in een heerlijk appartement op de derde verdieping. Kom je binnen?

*let op: de prijs is indicatief. definitieve prijzen worden bekend gemaakt tijdens start verkoop en kunnen nog afwijken van indicatieve prijs
*let op: energielabel betreft voorlopig energielabel.

Heeft u vragen? Neem gerust contact op met een van de verkopend makelaars!

BMV Makelaars
026 355 21 00
nieuwbouw@bmvmakelaars.nl

Willemsen Makelaars
026 445 27 51
nieuwbouw@willemsen.nl

Lees verder

Kenmerken

Overdracht

  • Koopsom € 320.000 v.o.n.
  • Status Ingetrokken

Indeling

  • Gebruikersoppervlakte 51 m2
  • Inhoud 236 m3

Overig

Media

In de buurt

Filter

      bolletjes

      WILLEMSEN MAKELAARS ZOEKT VOOR U

      Maak een zoekopdracht aan

      makelaar Martijn Joyce