Bouwnummer 48, Topappartement, Duiven

Scandinavische rust en ruimte in Arnhem

Willemsen makelaars

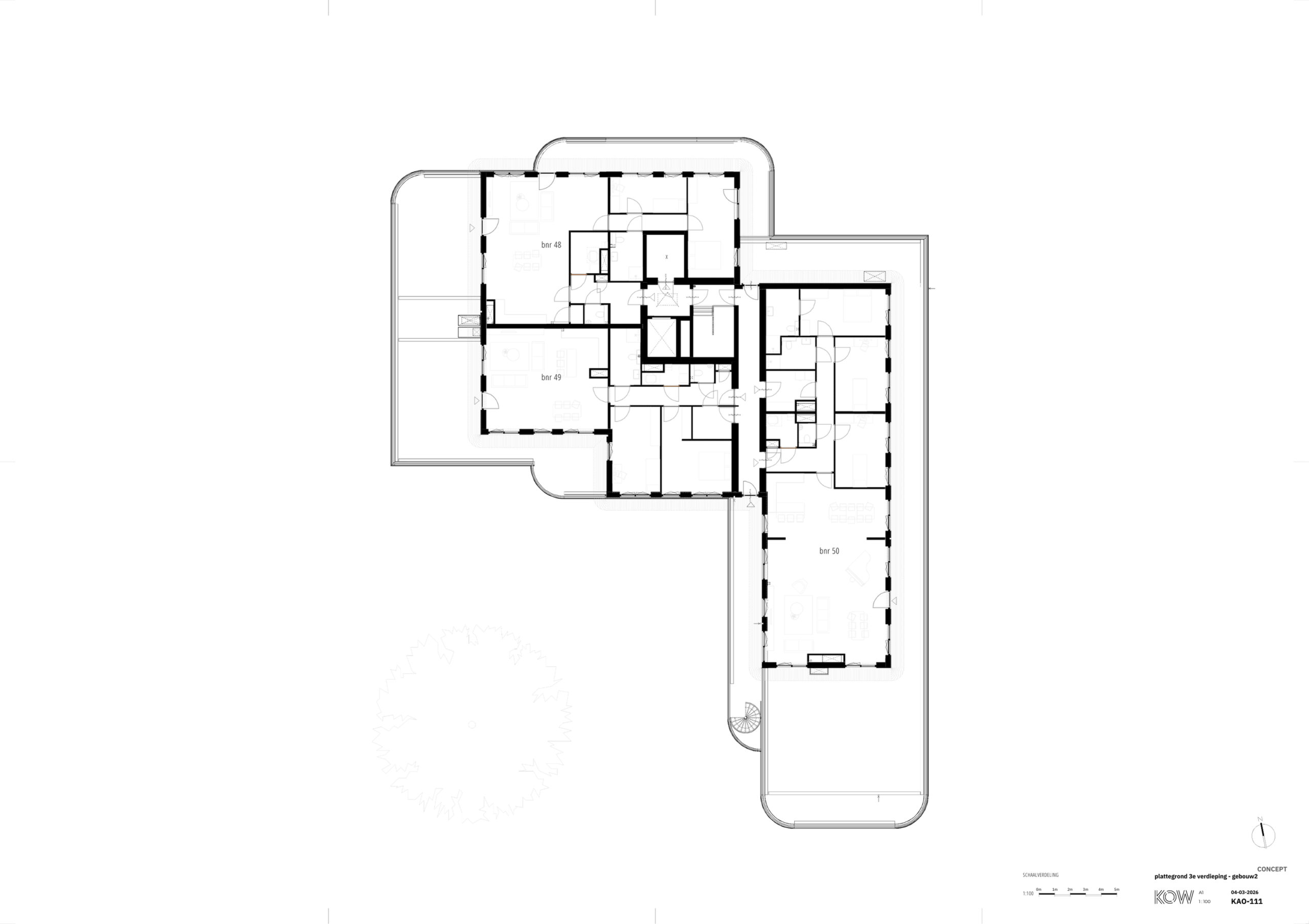
Top appartement - bouwnummer 48

Wonen tussen de boomtoppen met een weids uitzicht. Wat een buitenkans. De topappartementen hebben riante leefruimtes met veel glas en een fijne indeling. Elke variant heeft een groot dakterras; de plattegronden verschillen in aantal kamers en oriƫntaties.

De living is royaal en licht, de keuken uitnodigend voor uitgebreid koken en lang natafelen. Je kiest uit twee of drie slaapkamers en hebt ruimte voor werken of gasten. De terrassen lopen vaak breed door, zodat binnen en buiten ƩƩn geheel vormen. Comfort is vanzelfsprekend: uitstekende isolatie, lage energielasten en veel privacy. Kies het appartement dat past bij…

Top appartement - bouwnummer 48

Wonen tussen de boomtoppen met een weids uitzicht. Wat een buitenkans. De topappartementen hebben riante leefruimtes met veel glas en een fijne indeling. Elke variant heeft een groot dakterras; de plattegronden verschillen in aantal kamers en oriƫntaties.

De living is royaal en licht, de keuken uitnodigend voor uitgebreid koken en lang natafelen. Je kiest uit twee of drie slaapkamers en hebt ruimte voor werken of gasten. De terrassen lopen vaak breed door, zodat binnen en buiten ƩƩn geheel vormen. Comfort is vanzelfsprekend: uitstekende isolatie, lage energielasten en veel privacy. Kies het appartement dat past bij jouw uitzicht en leefstijl.

bijzonderheden;
-royaal dakterras van 64 m2;
- voorlopig/verwacht energielabel A+++;
- incl. sanitair en tegelwerk;
- externe berging;
- 2 eigen parkeerplaatsen in de parkeerkelder (zie omschrijving);
- voorzien van eigen zonnepanelen;
- gelegen aan een groene oase, terwijl winkels en voorzieningen binnen handbereik liggen.

Parkeerplaats
Voor elk penthouse (topappartement) zijn twee privĆ© parkeerplaatsen gereserveerd in de parkeerkelder. Deze worden separaat met het penthouse mee verkocht en de kosten daarvan zijn niet in de koopsom inbegrepen. De koopsom bedraagt € 25.000 v.o.n. per parkeerplaats. Het afnemen van twee parkeerplaatsen per topappartement is verplicht.

Berging
Dit topappartement is voorzien van ƩƩn externe berging.

Lees verder

Kenmerken

Overdracht

  • Koopsom € 800.000 v.o.n.
  • Status Beschikbaar

Indeling

  • Gebruikersoppervlakte 95 m2
  • Inhoud 285 m3

Overig

Media

Informatie over de buurt

Burgerlijke staat

Gehuwd
Ongehuwd
Gescheiden
Verweduwd
  • Gehuwd
  • Ongehuwd
  • Gescheiden
  • Verweduwd

Leeftijd in gemeente

0 - 15 jaar
15 - 25 jaar
25-45 jaar
45 - 65 jaar
65+ jaar
  • 0 - 15 jaar
  • 15 - 25 jaar
  • 25 - 45 jaar
  • 45 - 65 jaar
  • 65+ jaar

Leeftijd buurtbewoners

0 - 15 jaar
15 - 25 jaar
25-45 jaar
45 - 65 jaar
65+ jaar
  • 0 - 15 jaar
  • 15 - 25 jaar
  • 25 - 45 jaar
  • 45 - 65 jaar
  • 65+ jaar

In de buurt

Filter

      bolletjes

      WILLEMSEN MAKELAARS ZOEKT VOOR U

      Maak een zoekopdracht aan

      makelaar Martijn Joyce