Beschikbaar

Beekstraat 86

Vraagprijs € 472.500 k.k.

  • 1898

Omschrijving

Winkelpand met woonruimte op 1e verdieping gelegen op een HOEK zichtlocatie in het centrum van Arnhem. Gelegen op een belangrijke aanlooproute naar de binnenstad van Arnhem. De winkelruimte bevindt zich op korte afstand van parkeergarage Musis en overige parkeerfaciliteiten en bevinden zich op slechts enkele meters van het stadscentrum.

Ligging
Deze winkel met bovenwoning is gelegen in één van de sfeervolle zijstraten van het kernwinkelgebied die Arnhem rijk is en in de nabijheid van parkeergarage Musis. Uitvalswegen zijn vanaf de winkel gemakkelijk te bereiken.

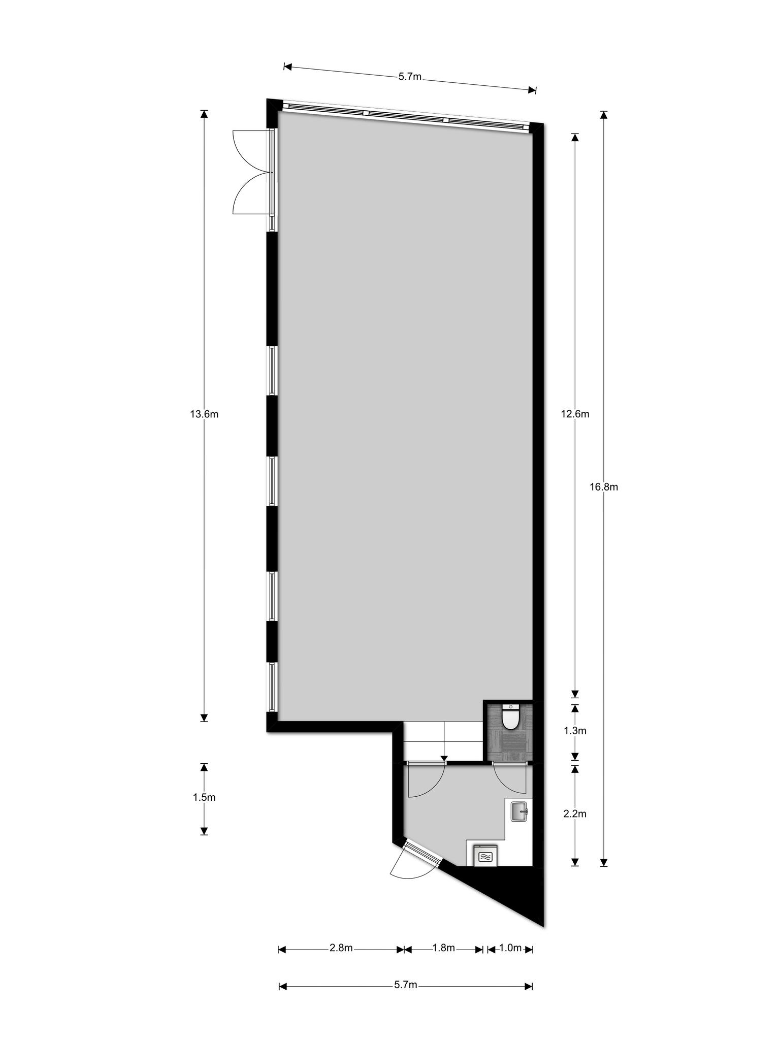
Vloeroppervlakte:
De winkelruimte heeft een totale oppervlakte van circa 97m², verdeeld over de verkoopbare…

Winkelpand met woonruimte op 1e verdieping gelegen op een HOEK zichtlocatie in het centrum van Arnhem. Gelegen op een belangrijke aanlooproute naar de binnenstad van Arnhem. De winkelruimte bevindt zich op korte afstand van parkeergarage Musis en overige parkeerfaciliteiten en bevinden zich op slechts enkele meters van het stadscentrum.

Ligging
Deze winkel met bovenwoning is gelegen in één van de sfeervolle zijstraten van het kernwinkelgebied die Arnhem rijk is en in de nabijheid van parkeergarage Musis. Uitvalswegen zijn vanaf de winkel gemakkelijk te bereiken.

Vloeroppervlakte:
De winkelruimte heeft een totale oppervlakte van circa 97m², verdeeld over de verkoopbare vloeroppervlakte circa 75m², pantry en toilet circa 9m² en opslag circa 13m².
Woning eerste verdieping: circa 136 m² met opslag circa 5 m².
Zolder (alleen toegankelijk voor huurder 1e verdieping).

Huursituatie:
De winkel is ingaande 28 januari 2023 voor een periode van 5 + 5 jaar
De actuele huuropbrengst bedraagt € 1.423,76 ex BTW per maand.
De bovenwoning is voor onbepaalde tijd verhuurd. De actuele huuropbrengst bedraagt € 1.118,03 per maand.

De totale huuropbrengst bedraagt € 30.501,48 per jaar.

Vraagprijs:
€ 472.500,– kosten koper.

Bijzonderheden:
Het object wordt “as is, where is” verkocht, dus zonder enige verklaringen of garanties met betrekking tot de huidige juridische, milieu-, technische en/of fiscale aspecten en zonder garanties over de afwezigheid van gebreken, lasten en/of beperkingen. Koper aanvaardt uitdrukkelijk het risico voortvloeiende uit de ‘as is, where is’ koop en levering.

Bereikbaarheid:
Het object is goed bereikbaar met eigen- en openbaar vervoer. Het trein- en busstation Arnhem Centraal ligt op loopafstand evenals diverse openbare parkeerterreinen en parkeergarages.

Bestemming
Aan de hand van het vigerende bestemmingsplan ´Binnenstad en Singels´ heeft het onderhavige perceel de bestemming Centrumdoeleinden – I , dit maakt o.a. gebruik voor onderstaande doeleinden mogelijk:
• Detailhandel;
• Horeca –A (daghoreca);
• Dienstverlenende bedrijven.

Aanvaarding
In overleg.

Lees verder

Kenmerken

Overdracht

  • Status Beschikbaar
  • Koopprijs € 472.500,- kosten koper
  • Servicekosten -
  • BTW van toepassing Ja

Bouwvorm & onderhoud

  • Hoofdfunctie Winkelruimte
  • Soort bouw Bestaande bouw
  • Bouwjaar 1898
  • Frontbreedte 570 cm

Indeling

  • Oppervlakte winkel ca. 97 m2

Overig

  • Onderhoud binnen Goed
  • Onderhoud buiten Goed

Media

Informatie over de buurt

Burgerlijke staat

Gehuwd
Ongehuwd
Gescheiden
Verweduwd
  • Gehuwd
  • Ongehuwd
  • Gescheiden
  • Verweduwd

Leeftijd in gemeente

0 - 15 jaar
15 - 25 jaar
25-45 jaar
45 - 65 jaar
65+ jaar
  • 0 - 15 jaar
  • 15 - 25 jaar
  • 25 - 45 jaar
  • 45 - 65 jaar
  • 65+ jaar

Leeftijd buurtbewoners

0 - 15 jaar
15 - 25 jaar
25-45 jaar
45 - 65 jaar
65+ jaar
  • 0 - 15 jaar
  • 15 - 25 jaar
  • 25 - 45 jaar
  • 45 - 65 jaar
  • 65+ jaar

In de buurt

Filter

      bolletjes

      WILLEMSEN MAKELAARS ZOEKT VOOR U

      Maak een zoekopdracht aan

      makelaar Martijn Joyce